Wentwood Road, Caerleon, Newport, NP18
By M2 Estate Agents
£ 375,000
Reviews
3 out of 5 stars
M2 Estate Agents says ..
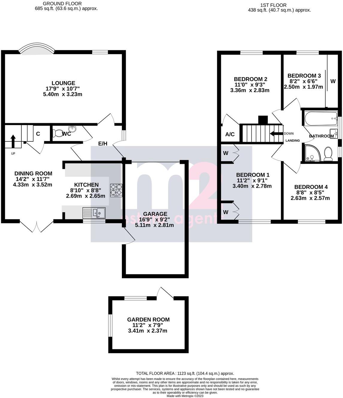
Exceptional, modernised family home on this sought after development. The immaculately presented accommodation includes 4 bedrooms, bathroom, downstairs w/c, spacious lounge and open plan kitchen/dining room. Outside the sunny aspect rear garden features a detached home office with driveway pa...
Property Oracle says ..
This property is a 4-bedroom, 1-bathroom detached house located in Caerleon, Newport, with a list price of £375,000. The property has a total area of 1,123 sqft and is situated on a plot of 0.00 sqft. The average price for similar properties in the area is £400,449, with an average price per sqft of £354. The property appears to be in good condition, with modern updates to the kitchen and bathrooms. It benefits from a garden and a detached garage. The location is desirable, being close to local schools and transportation links. Considering the condition, location, and amenities, the list price appears to be slightly below the average for the area, making it potentially good value for money.
Therefore, we give this property 7 / 10. *Disclaimer: This is our option and does constitute a recommendation or financial advice. Do your own research. *
- Price
- 8
- Condition
- 9
- Location
- 8
- Land
- 6
- Bedrooms
- 4
- Bathrooms
- 1
- Sqft (est)
- 1,123.00
The heatmap indicates the level of crime in the area. The color of the heatmap indicates the crime severity and recency.
Metrics Year-on-Year
- Average area value
- 360,833.00 £Decreased by 13.57 %
- Est sale value
- 394,173.00 £Decreased by 9.07 %
- Average area rental value
- 1,178.00 £/moIncreased by 8.17 %
- Est letting value
- 1,123.00 £/moUnchanged by 0.00 %
- Est rental Yield
- 3.92 %Increased by 25.24 %
- Crime Rate
- 3.00 %Unchanged by 0.00 %
Agent Activity
M2 Estate Agents marked this listing as sold.
M2 Estate Agents created the listing.
Nearby Schools
| Name | Type | Ofsted | Distance |
|---|---|---|---|
| St Julian'S School | Welsh Establishment | 1.10 KM | |
| Ysgol Gymraeg Nant Gwenlli | Welsh Establishment | 1.30 KM | |
| St Joseph'S R.C. Primary School | Welsh Establishment | 2.07 KM | |
| Newport Nursery School | Welsh Establishment | 2.11 KM | |
| Caerleon Comprehensive School | Welsh Establishment | 2.12 KM |
Images
Nearby Streets
| Name | Average Price | Average Sqft | Distance |
|---|---|---|---|
| Walnut Drive | £ 325,000 | 0 | 0.00 KM |
| Abbot Close | £ 0 | 0 | 0.00 KM |
| Priory Close | £ 0 | 0 | 0.00 KM |
| Oakdale Close | £ 0 | 0 | 0.00 KM |
| Haisbro' Avenue | £ 0 | 0 | 0.00 KM |
Nearby Transport
| Name | NLC | TLC | Distance |
|---|---|---|---|
| Newport (South Wales) | 3674 | NWP | 3.51 KM |
| Cwmbran | 3738 | CWM | 6.61 KM |
| Pye Corner | 1663 | PYE | 7.46 KM |
| Rogerstone | 9921 | ROR | 9.95 KM |
Nearby Listings
| Address | Price | Type | Score | Distance |
|---|---|---|---|---|
| Wentwood Road, Caerleon, Newport, NP18 | £ 375,000 | BUY | 7 / 10 | 0.00 KM |
| Roman Reach, Caerleon, Newport, NP18 | £ 400,000 | BUY | 7 / 10 | 0.13 KM |
| Roman Reach, Caerleon, Newport, NP18 | £ 300,000 | BUY | 6 / 10 | 0.13 KM |
| Redwood Close, Caerleon, NP18 | £ 300,000 | BUY | 7 / 10 | 0.17 KM |
| Walnut Drive, Caerleon, NP18 | £ 325,000 | BUY | 6 / 10 | 0.18 KM |
Nearby Properties
| Address | Price | Distance |
|---|---|---|
| 3 Conifer Close | £ 256,000 | 0.07 KM |
| 9 Conifer Close | £ 385,000 | 0.07 KM |
| 6 Conifer Close | £ 270,000 | 0.08 KM |
| 9 Bay Tree Close | £ 224,000 | 0.08 KM |
| 7 Bay Tree Close | £ 249,995 | 0.08 KM |