Hunters says ..
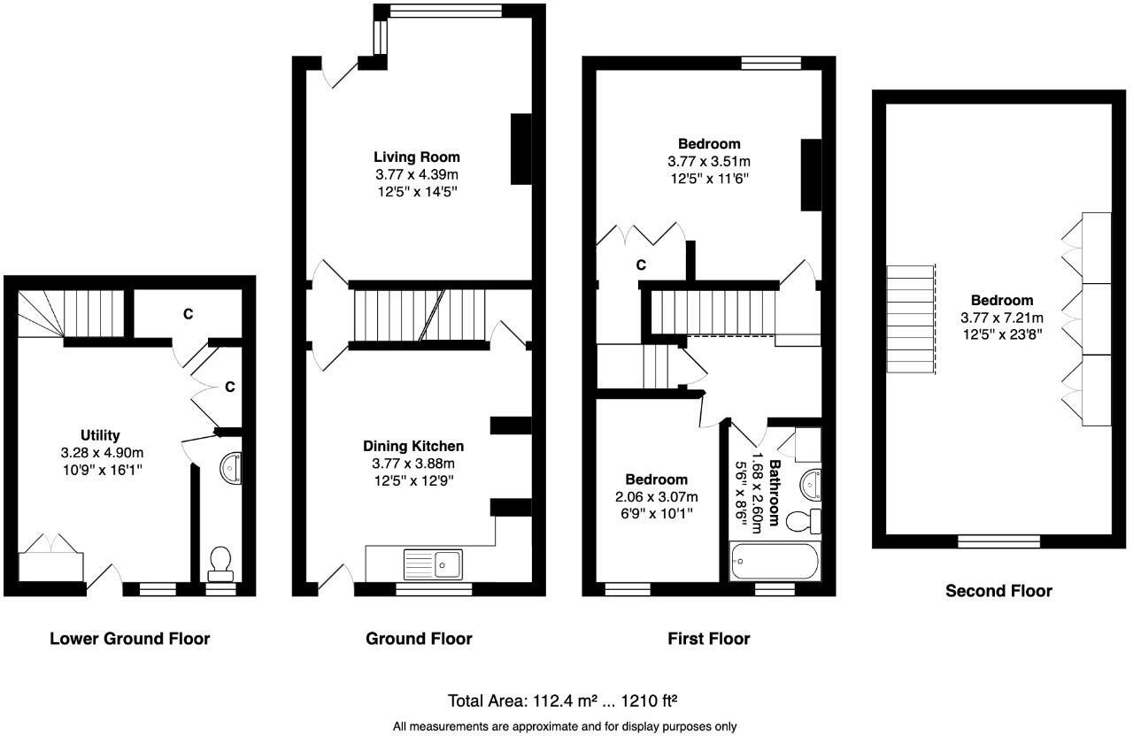
This charming and well-maintained three-bedroom terraced house offers spacious, light-filled living areas, a stylish kitchen/diner, walk-out basement utility, modern bathroom, and a private rear yard garden, all set in a sought-after location close to schools, parks, and excellent transport links...
Property Oracle says ..
Therefore, we give this property 7 / 10. *Disclaimer: This is our option and does constitute a recommendation or financial advice. Do your own research. *
- Price
- 8
- Condition
- 8
- Location
- 8
- Land
- 6
- Bedrooms
- 3
- Bathrooms
- 1
- Sqft (est)
- 1,058.27
The heatmap indicates the level of crime in the area. The color of the heatmap indicates the crime severity and recency.
Metrics Year-on-Year
- Average area value
- 303,941.00 £Increased by 18.76 %
- Est sale value
- 405,317.41 £Increased by 82.38 %
- Average area rental value
- 896.00 £/moDecreased by 14.42 %
- Est letting value
- 1,058.27 £/mo
- Est rental Yield
- 3.54 %Decreased by 27.90 %
- Crime Rate
- 7.00 %Unchanged by 0.00 %
from 255,922.00 £
from 222,236.70 £
from 1,047.00 £/mo
from 0.00 £/mo
from 4.91 %
from 7.00 %
Agent Activity
Hunters created the listing.
Nearby Schools
| Name | Type | Ofsted | Distance |
|---|---|---|---|
| Greenside Primary School | Community School | Good | 0.20 KM |
| Southroyd Primary And Nursery School | Foundation School | Good | 0.50 KM |
| Pudsey Children'S Centre | Children's Centre | 0.58 KM | |
| Pudsey Grammar School | Foundation School | Good | 0.89 KM |
| Fulneck School | Other Independent School | 0.91 KM |
Images
Nearby Streets
| Name | Average Price | Average Sqft | Distance |
|---|---|---|---|
| Ash Grove | £ 0 | 0 | 0.00 KM |
| Grove Avenue | £ 0 | 0 | 0.00 KM |
| Parkfield Mount | £ 0 | 0 | 0.00 KM |
| Carlisle Drive | £ 0 | 0 | 0.00 KM |
| Northrop's Yard | £ 0 | 0 | 0.00 KM |
Nearby Transport
| Name | NLC | TLC | Distance |
|---|---|---|---|
| New Pudsey | 8506 | NPD | 2.16 KM |
| Bramley (West Yorkshire) | 8496 | BLE | 3.56 KM |
| Kirkstall Forge | 6544 | KLF | 6.01 KM |
| Apperley Bridge | 8562 | APY | 7.09 KM |
| Horsforth | 8499 | HRS | 7.41 KM |
Nearby Listings
| Address | Price | Type | Score | Distance |
|---|---|---|---|---|
| Glebe Street, Pudsey, LS28 | £ 275,000 | BUY | 7 / 10 | 0.00 KM |
| Glebe Street, Pudsey | £ 300,000 | BUY | 6 / 10 | 0.01 KM |
| Ash Grove, Pudsey, West Yorkshire, UK, LS28 | £ 215,500 | BUY | 6 / 10 | 0.07 KM |
| New Street, Pudsey, West Yorkshire | £ 599,950 | BUY | Unknown | 0.07 KM |
| Flat 5, Yeadon House, Glebe Mount, Off New Street, Pudsey | £ 195,000 | BUY | 6 / 10 | 0.08 KM |
Nearby Properties
| Address | Price | Distance |
|---|---|---|
| 22 Glebe Street | £ 195,750 | 0.01 KM |
| 4 Glebe Street | £ 255,000 | 0.01 KM |
| 20 Glebe Street | £ 269,950 | 0.01 KM |
| 6 Glebe Street | £ 225,000 | 0.01 KM |
| 2 Glebe Street | £ 177,000 | 0.01 KM |