Seabrook Avenue, Exeter
EA

Seabrook Avenue, Exeter

By East of Exe Ltd

£ 330,000

Reviews

3 out of 5 stars

East of Exe Ltd says ..

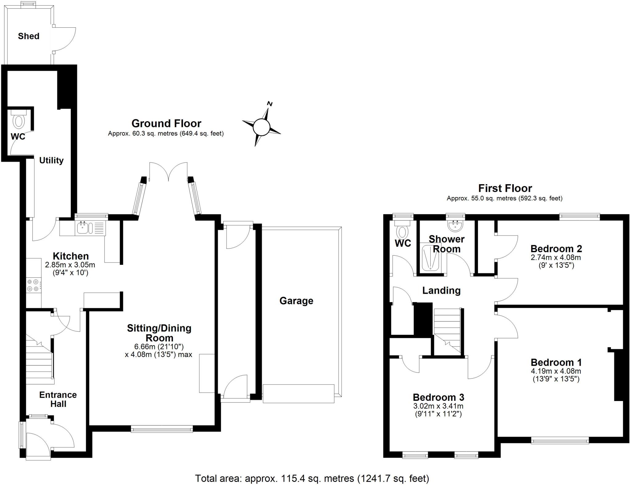
Situated in a highly sought-after residential area on the eastern outskirts of Exeter is this wonderful very spacious three double bedroom end of terrace house - offering exceptional potential for a growing family or those looking to invest and extend (subject to planning consents). The property ...

Property Oracle says ..

This is a 3-bedroom end-of-terrace house in Exeter, specifically Topsham. The property features a garden with a greenhouse and patio. While the property is in reasonable condition, some modernisation could enhance its appeal. The location is convenient, with nearby schools and transportation links. The asking price of £330,000 appears fair considering the location and features.

Therefore, we give this property 6 / 10. *Disclaimer: This is our option and does constitute a recommendation or financial advice. Do your own research. *

Price
7
Condition
6
Location
7
Land
7
Bedrooms
3
Bathrooms
1

The heatmap indicates the level of crime in the area. The color of the heatmap indicates the crime severity and recency.

Metrics Year-on-Year

Average area value
528,231.00 £
Increased by 3.23 %
from 511,722.00 £
Average area rental value
1,833.00 £/mo
Increased by 1.05 %
from 1,814.00 £/mo
Est rental Yield
4.16 %
Decreased by 2.12 %
from 4.25 %
Crime Rate
34.00 %
Unchanged by 0.00 %
from 34.00 %

Agent Activity

  • East of Exe Ltd created the listing.

Nearby Schools

NameTypeOfstedDistance
Countess Wear ExeterChildren's Centre0.79 KM
Countess Wear Community SchoolCommunity SchoolRequires improvement0.90 KM
Trinity Church Of England Voluntary Aided Primary And Nursery SchoolVoluntary Aided School1.39 KM
Infocus SchoolNon-maintained Special SchoolSpecial Measures1.40 KM
Infocus CollegeSpecial Post 16 InstitutionRequires improvement1.40 KM

Images

A01 - 21 Seabrook... A08 - 21 Seabrook... A13 - 21 Seabrook... A12 - 21 Seabrook... A11 - 21 Seabrook... A10 - 21 Seabrook... A18 - 21 Seabrook... A17 - 21 Seabrook... A20 - 21 Seabrook... A22 - 21 Seabrook... A21 - 21 Seabrook... A05 - 21 Seabrook... A09 - 21 Seabrook... A15 - 21 Seabrook... A07 - 21 Seabrook...

Nearby Streets

NameAverage PriceAverage SqftDistance
Riverside Meadow £ 302,50000.00 KM
Sleepy Hollow £ 200,00000.00 KM
Central Avenue £ 260,00000.00 KM
The Chase £ 250,00000.00 KM
Berkeley Park £ 000.00 KM

Nearby Transport

NameNLCTLCDistance
Newcourt9589NCO1.83 KM
Topsham5758TOP2.46 KM
Digby And Sowton5753DIG2.55 KM
Polsloe Bridge3422POL4.53 KM
Pinhoe5757PIN5.16 KM

Nearby Listings

AddressPriceTypeScoreDistance
Seabrook Avenue, Exeter £ 330,000BUY6 / 100.00 KM
Seabrook Avenue, Exeter £ 330,000BUY7 / 100.00 KM
Newport Road, Countess Wear, Exeter, EX2 £ 325,000BUY6 / 100.07 KM
Seabrook Mews, Exeter £ 190,000BUY7 / 100.20 KM
Seabrook Mews, Exeter £ 350,000BUY7 / 100.22 KM

Nearby Properties

AddressPriceDistance
13 Seabrook Avenue £ 230,0000.01 KM
23 Seabrook Avenue £ 169,9500.01 KM
21 Seabrook Avenue £ 197,0000.01 KM
11 Seabrook Avenue £ 205,0000.01 KM
8 Seabrook Avenue £ 178,0000.01 KM