Harcourt Road, Thornton Heath, CR7
By Foxtons
£ 465,000
Reviews
2 out of 5 stars
Foxtons says ..
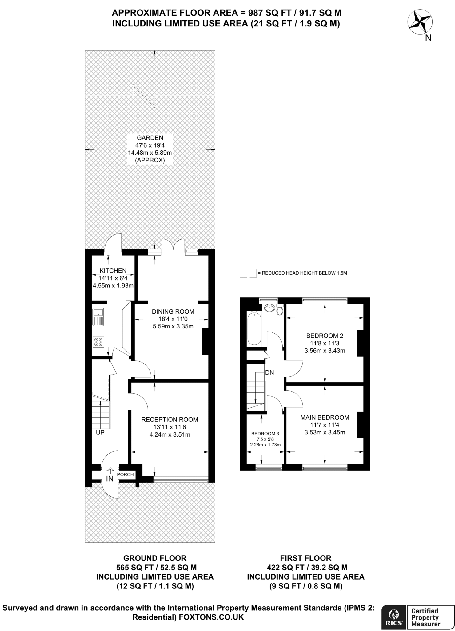
Offering a superb 3 bedroom house that boasts 2 large reception rooms, separate fitted kitchen with access to a private garden and 3 well proportioned bedrooms.
Property Oracle says ..
This three-bedroom terraced house on Harcourt Road, Thornton Heath, Croydon, is listed at £465,000. The property is located in an area with a mix of positive and negative attributes. It is near several schools including Gonville Academy (rated ‘Good’ by Ofsted), and transportation links are relatively convenient, with West Croydon station within a reasonable distance. However, the overall area of Thornton Heath has a somewhat mixed reputation. The property itself is dated and requires modernization. The interior shows noticeable wear and tear, especially in the kitchen and bathroom areas. The wooden flooring is somewhat generic. The garden is a notable feature, although it needs some maintenance. The asking price aligns with properties in the same street, yet it’s not exceptionally high or low, given the state of repair and current market conditions. Overall, the house represents a reasonably priced property in need of significant improvements and offers an opportunity for potential buyers to add their own style and potentially increase its value over time. Before purchasing any property always ensure that all details are checked and validated and that your survey reflects this information.
Therefore, we give this property 5 / 10. *Disclaimer: This is our option and does constitute a recommendation or financial advice. Do your own research. *
- Price
- 7
- Condition
- 4
- Location
- 6
- Land
- 5
- Bedrooms
- 3
- Bathrooms
- 1
- Sqft (est)
- 987.00
The heatmap indicates the level of crime in the area. The color of the heatmap indicates the crime severity and recency.
Metrics Year-on-Year
- Average area value
- 1,268,750.00 £Increased by 29.81 %
- Est sale value
- 1,564,395.00 £Increased by 115.35 %
- Average area rental value
- 2,317.00 £/moIncreased by 19.00 %
- Est letting value
- 1,974.00 £/moIncreased by 100.00 %
- Est rental Yield
- 2.19 %Decreased by 8.37 %
- Crime Rate
- 6.00 %Unchanged by 0.00 %
Agent Activity
Foxtons created the listing.
Nearby Schools
| Name | Type | Ofsted | Distance |
|---|---|---|---|
| West Thornton Primary School | Academy Sponsor Led | 0.36 KM | |
| Broad Green Sure Start | Children's Centre Linked Site | 0.61 KM | |
| Gonville Academy | Academy Converter | Good | 0.62 KM |
| Addington Valley Academy | Free Schools Special | 0.67 KM | |
| Paxton Academy Sports And Science | Free Schools | Serious Weaknesses | 0.76 KM |
Images
Nearby Streets
| Name | Average Price | Average Sqft | Distance |
|---|---|---|---|
| Drake Road | £ 0 | 0 | 0.00 KM |
| York Road | £ 0 | 0 | 0.00 KM |
| York Road | £ 0 | 0 | 0.00 KM |
| Fairmead Road | £ 0 | 0 | 0.00 KM |
| Kingswood Avenue | £ 475,000 | 0 | 0.00 KM |
Nearby Transport
| Name | NLC | TLC | Distance |
|---|---|---|---|
| West Croydon | 5411 | WCY | 2.32 KM |
| Thornton Heath | 5388 | TTH | 2.39 KM |
| Norbury | 5428 | NRB | 2.39 KM |
| Waddon | 5392 | WDO | 2.54 KM |
| East Croydon | 5355 | ECR | 3.42 KM |
Nearby Listings
| Address | Price | Type | Score | Distance |
|---|---|---|---|---|
| Harcourt Road, Thornton Heath, CR7 | £ 465,000 | BUY | 5 / 10 | 0.00 KM |
| Harcourt Road, Thornton Heath | £ 425,000 | BUY | 5 / 10 | 0.02 KM |
| Harcourt Road, Thornton Heath | £ 425,000 | BUY | 5 / 10 | 0.02 KM |
| Harcourt Road, Thornton Heath, CR7 | £ 450,000 | BUY | 6 / 10 | 0.08 KM |
| Thornton Road, Croydon, London, CR7 | £ 340,000 | BUY | 5 / 10 | 0.09 KM |
Nearby Properties
| Address | Price | Distance |
|---|---|---|
| 34 Harcourt Road | £ 330,000 | 0.07 KM |
| 18 Harcourt Road | £ 332,000 | 0.07 KM |
| 42 Harcourt Road | £ 116,000 | 0.07 KM |
| 30 Harcourt Road | £ 250,000 | 0.07 KM |
| 46 Harcourt Road | £ 131,000 | 0.07 KM |