Sandwich Road, Eastry, Kent
ST

Sandwich Road, Eastry, Kent

By Strutt & Parker

£ 2,250,000

Reviews

3 out of 5 stars

Strutt & Parker says ..

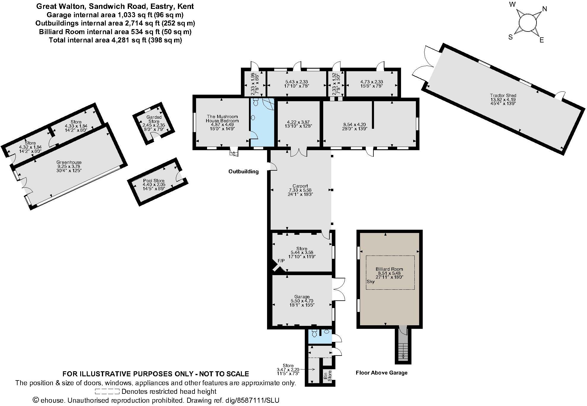
An exquisite Georgian home set in mature gardens with outbuildings, swimming pool and tennis court

Property Oracle says ..

This seven-bedroom, five-bathroom Georgian home located on Sandwich Road, Eastry, Kent, is presented as an exceptional property. The listing highlights its exquisite features, including mature gardens, outbuildings, a swimming pool, and a tennis court (although this last isn’t clearly visible in the photos). The property itself appears to be in excellent condition based on the images provided, showcasing well-maintained interiors and a tasteful design. The interior photos reveal spacious rooms, high ceilings, and attractive architectural details characteristic of a Georgian home. The kitchen appears modern and well-equipped. The property’s extensive grounds are a key selling point, offering a significant amount of outdoor space and privacy, something increasingly sought after in the UK’s property market. The presence of outbuildings adds potential for various uses, such as home offices or guest accommodation. The location in the rural village of Eastry in Kent provides a balance between tranquility and access to transport links. The proximity to Sandwich and other coastal towns makes this location particularly desirable. Schools are relatively close by, although Ofsted ratings vary in quality. However, the lack of precise plot size details and limited comparable data on nearby properties makes a comprehensive assessment of value difficult without further investigation. The absence of precise square footage in nearby listings prevents a direct price-per-square-foot comparison, but given the property’s apparent condition, size, and expansive grounds, the list price of £2,250,000 appears to align with the high-end market segment in this area of Kent.

Therefore, we give this property 7 / 10. *Disclaimer: This is our option and does constitute a recommendation or financial advice. Do your own research. *

Price
7
Condition
8
Location
7
Land
9
Bedrooms
7
Bathrooms
5
Sqft (est)
5,328.14

The heatmap indicates the level of crime in the area. The color of the heatmap indicates the crime severity and recency.

Metrics Year-on-Year

Average area value
488,899.00 £
Increased by 18.65 %
from 412,055.00 £
Est sale value
2,211,178.10 £
Increased by 4.53 %
from 2,115,271.58 £
Average area rental value
1,850.00 £/mo
Increased by 36.23 %
from 1,358.00 £/mo
Est letting value
5,328.14 £/mo
Unchanged by 0.00 %
from 5,328.14 £/mo
Est rental Yield
4.54 %
Increased by 14.94 %
from 3.95 %
Crime Rate
0.00 %
from 0.00 %

Agent Activity

  • Strutt & Parker created the listing.

Nearby Schools

NameTypeOfstedDistance
The Davenport SchoolOther Independent Special SchoolRequires improvement0.53 KM
Eastry Church Of England Primary SchoolVoluntary Controlled SchoolRequires improvement0.85 KM
Northbourne Park SchoolOther Independent School2.83 KM
Sandwich Technology SchoolAcademy ConverterGood3.24 KM
Sandwich Junior SchoolCommunity SchoolOutstanding3.47 KM

Images

Great Walton Great Walton Drawing Room Drawing Room Drawing Room Drwaing Room Kitchen Kitchen/Breakfast Rm Breakfast Room Dining Room Sitting Room Conservatory Billiard Room Bathroom Bedroom Study Bedroom Bedroom Bedroom Bedroom Walkway Garden Terrace Garden Terrace Swimming Pool Garden Garden Mushroom House Outbuilding/Garage Aerial View

Nearby Streets

NameAverage PriceAverage SqftDistance
Shemara Court £ 000.00 KM
Dover Road £ 000.00 KM

Nearby Transport

NameNLCTLCDistance
Sandwich5026SDW4.18 KM
Minster5019MSR8.79 KM
Walmer5041WAM9.61 KM
Martin Mill5040MTM9.83 KM

Nearby Listings

AddressPriceTypeScoreDistance
Sandwich Road, Eastry, Kent £ 2,250,000BUY7 / 100.00 KM
Little Walton, Sandwich, CT13 £ 375,000BUY6 / 100.14 KM
Eastry Court Lane, Eastry, Kent £ 950,000BUY6 / 100.24 KM
Woodnesborough Lane, Eastry, CT13 £ 375,000BUY8 / 100.25 KM
Sandwich Road, Eastry, Kent £ 1,500,000BUY7 / 100.31 KM

Nearby Properties

AddressPriceDistance
5 Little Walton £ 290,0000.17 KM
18 Little Walton £ 347,5000.17 KM
1 Little Walton £ 353,0000.17 KM
10 Little Walton £ 395,0000.17 KM
22 Little Walton £ 282,5000.17 KM