Manor Place, Edinburgh
RE

Manor Place, Edinburgh

By Rettie & Co

£ 2,500,000

Reviews

3 out of 5 stars

Rettie & Co says ..

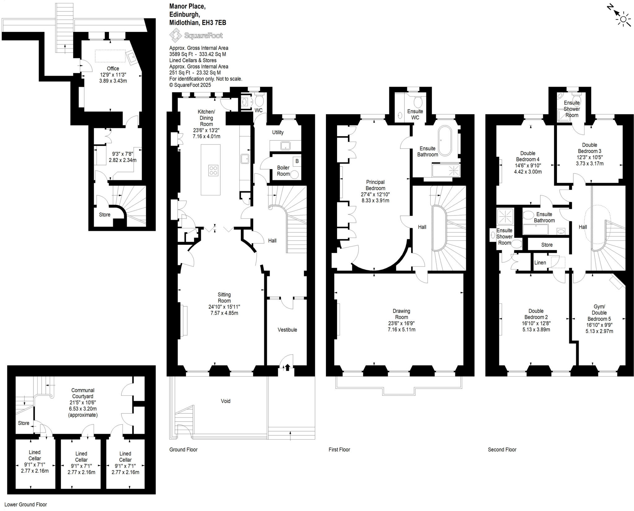
37 + 37a Manor Place together present a rare and exciting opportunity to acquire a complete, stone-built townhouse with its own self-contained lower ground floor flat, located in the heart of Edinburgh’s prestigious West End. Extending to approximately 4,482 sq ft in total, plus an addition...

Property Oracle says ..

This terraced property, located in Edinburgh’s City Centre, offers a blend of period charm and modern amenities. The interiors are well-maintained and feature high-end finishes, including updated bathrooms and a modern kitchen. The property benefits from a garden/patio area, a rare find in the city center. With 7 bedrooms and 6 bathrooms, this property is well-suited for a large family or those who enjoy ample living space. The location provides easy access to transportation, schools, and cultural attractions. The property also features a gym and study. The price is significantly above the average for the area, reflecting the size, features, and prime location of the property.

Therefore, we give this property 7 / 10. *Disclaimer: This is our option and does constitute a recommendation or financial advice. Do your own research. *

Price
6
Condition
9
Location
9
Land
7
Bedrooms
7
Bathrooms
6

The heatmap indicates the level of crime in the area. The color of the heatmap indicates the crime severity and recency.

Metrics Year-on-Year

Average area value
322,952.00 £
Decreased by 27.89 %
from 447,880.00 £
Average area rental value
1,604.00 £/mo
Decreased by 7.50 %
from 1,734.00 £/mo
Est rental Yield
5.96 %
Increased by 28.17 %
from 4.65 %
Crime Rate
0.00 %
from 0.00 %

Agent Activity

  • Rettie & Co created the listing.

Nearby Schools

NameTypeOfstedDistance
Merchiston Castle SchoolOffshore Schools5.88 KM
Cargilfield SchoolOffshore Schools9.57 KM

Images

Picture No. 13 Picture No. 20 Picture No. 47 Picture No. 14 Picture No. 17 Picture No. 39 Picture No. 40 Picture No. 42 Picture No. 24 Picture No. 51 Picture No. 44 Picture No. 49 Picture No. 48 Picture No. 04 Picture No. 02 Picture No. 03 Picture No. 06 Picture No. 05 Picture No. 07 Picture No. 23 Picture No. 08 Picture No. 09 Picture No. 10 Picture No. 22 Picture No. 11 Picture No. 15 Picture No. 19 Picture No. 16 Picture No. 18 Picture No. 30 Picture No. 31 Picture No. 32 Picture No. 34 Picture No. 25 Picture No. 27 Picture No. 26 Picture No. 50 Picture No. 36 Picture No. 37

Nearby Streets

NameAverage PriceAverage SqftDistance
Palmerston Place Lane £ 000.00 KM
Lynedoch Place Lane £ 000.00 KM
Torphichen Place Lane £ 000.00 KM
William Street North East Lane £ 000.00 KM
Mclaren Terrace £ 000.00 KM

Nearby Transport

NameNLCTLCDistance
Haymarket9419HYM0.48 KM
Edinburgh9328EDB3.09 KM
Slateford9236SLA3.95 KM
Kingsknowe9217KGE6.39 KM
Wester Hailes9231WTA8.50 KM

Nearby Listings

AddressPriceTypeScoreDistance
Manor Place, Edinburgh £ 2,500,000BUY7 / 100.00 KM
Chester Street, Edinburgh, Midlothian £ 495,000BUY7 / 100.05 KM
22 Chester Street, Edinburgh, EH3 £ 1,075,000BUY7 / 100.06 KM
Chester Street Lane, Edinburgh, EH3 £ 130,000BUYUnknown0.07 KM
Manor Place, West End, Edinburgh, EH3 £ 345,000BUYUnknown0.07 KM