Coquet, Washington, Tyne and Wear, NE38
By YOUR MOVE Chris Stonock
£ 120,000
Reviews
3 out of 5 stars
YOUR MOVE Chris Stonock says ..
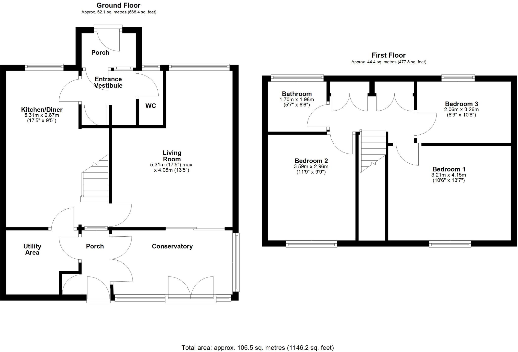
Offered to the market with no onward chain, this charming and well-proportioned three-bedroom mid-terraced property has been thoughtfully extended and benefits from a conservatory, utility room, and downstairs W/C—perfect for modern family living.
Property Oracle says ..
Therefore, we give this property 6 / 10. *Disclaimer: This is our option and does constitute a recommendation or financial advice. Do your own research. *
- Price
- 7
- Condition
- 5
- Location
- 7
- Land
- 6
- Bedrooms
- 3
- Bathrooms
- 2
- Sqft (est)
- 763.91
The heatmap indicates the level of crime in the area. The color of the heatmap indicates the crime severity and recency.
Metrics Year-on-Year
- Average area value
- 197,600.00 £Increased by 0.12 %
- Est sale value
- 191,741.41 £Increased by 18.40 %
- Average area rental value
- 1,200.00 £/moIncreased by 42.69 %
- Est letting value
- 763.91 £/mo
- Est rental Yield
- 7.29 %Increased by 42.66 %
- Crime Rate
- 23.00 %Unchanged by 0.00 %
from 197,369.00 £
from 161,948.92 £
from 841.00 £/mo
from 0.00 £/mo
from 5.11 %
from 23.00 %
Agent Activity
YOUR MOVE Chris Stonock created the listing.
Nearby Schools
| Name | Type | Ofsted | Distance |
|---|---|---|---|
| Rickleton Primary School | Community School | Good | 0.33 KM |
| Holley Park Academy | Academy Converter | Good | 1.41 KM |
| Lambton Primary School | Community School | Good | 1.57 KM |
| Oxclose Community Academy | Academy Converter | Good | 1.85 KM |
| Oxclose Nursery School | Local Authority Nursery School | Outstanding | 2.03 KM |
Images
Nearby Streets
| Name | Average Price | Average Sqft | Distance |
|---|---|---|---|
| Kingfisher Road | £ 244,988 | 0 | 0.00 KM |
| Teal Close | £ 0 | 0 | 0.00 KM |
| Sycamore Avenue | £ 0 | 0 | 0.00 KM |
| A1(M) | £ 155,000 | 0 | 0.00 KM |
| Cambrian Way | £ 0 | 0 | 0.00 KM |
Nearby Transport
| Name | NLC | TLC | Distance |
|---|---|---|---|
| Chester-Le-Street | 7736 | CLS | 4.25 KM |
| Heworth | 7766 | HEW | 7.97 KM |
Nearby Listings
| Address | Price | Type | Score | Distance |
|---|---|---|---|---|
| Coquet, Washington, Tyne and Wear, NE38 | £ 120,000 | BUY | 6 / 10 | 0.00 KM |
| Alwin, Rickleton, Washington, NE38 | £ 125,000 | BUY | 7 / 10 | 0.14 KM |
| Rickleton Village Centre, Rickleton, Washington, NE38 | £ 65,000 | BUY | 5 / 10 | 0.14 KM |
| Coquet, Rickleton, NE38 | £ 140,000 | BUY | 7 / 10 | 0.16 KM |
| Coquet, Washington, Tyne and Wear, NE38 9ER | £ 150,000 | BUY | 6 / 10 | 0.19 KM |
Nearby Properties
| Address | Price | Distance |
|---|---|---|
| 5 Winster | £ 63,950 | 0.03 KM |
| 19 Winster | £ 49,000 | 0.03 KM |
| 14 Winster | £ 48,000 | 0.03 KM |
| 11 Winster | £ 105,000 | 0.03 KM |
| 2 Winster | £ 107,950 | 0.03 KM |