Lanrigg Road, Fauldhouse
By Kirkland Estate Agents
£ 95,000
Reviews
3 out of 5 stars
Kirkland Estate Agents says ..
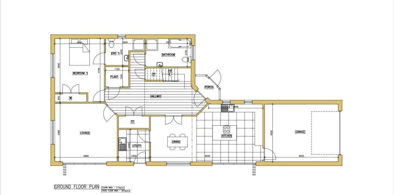
Kirkland Estate Agents are proud to present to the market this opportunity for a proposed buyer to build there very own unique three bedroom detached family home. Planning permission is accepted on this plot. Planning Reference : 0501/FUL/23 For further enquiries pleas...
Property Oracle says ..
The property is located in Fauldhouse, West Lothian, Scotland. Based on the provided aerial imagery, the property appears to be situated on a sizeable plot of land, offering potential for expansion or landscaping. The surrounding area seems to be a residential neighborhood with a mix of housing types. The proximity to the Fauldhouse ScotRail station (2.28 KM) is a positive aspect, suggesting convenient access to public transportation. However, the absence of nearby schools in the provided data limits the assessment of the property’s suitability for families with school-aged children. The list price of £95,000 requires further analysis considering comparable properties in the area and the property’s condition and size. More information on the property’s internal condition and the average price per square foot for similar properties in Fauldhouse would enable a more comprehensive evaluation.
Therefore, we give this property 7 / 10. *Disclaimer: This is our option and does constitute a recommendation or financial advice. Do your own research. *
- Price
- 7
- Condition
- 7
- Location
- 6
- Land
- 9
- Bedrooms
- 3
- Bathrooms
- 0
- Sqft (est)
- 2,163.55
- Lot (est)
- 2,163.55
The heatmap indicates the level of crime in the area. The color of the heatmap indicates the crime severity and recency.
Metrics Year-on-Year
- Average area value
- 712,500.00 £Increased by 63.65 %
- Est sale value
- 770,223.80 £Increased by 11.95 %
- Average area rental value
- 1,330.00 £/moIncreased by 17.28 %
- Est letting value
- 0.00 £/mo
- Est rental Yield
- 2.24 %Decreased by 28.43 %
- Crime Rate
- 0.00 %
Agent Activity
Kirkland Estate Agents created the listing.
Images
Nearby Streets
| Name | Average Price | Average Sqft | Distance |
|---|---|---|---|
| North Road | £ 0 | 0 | 0.00 KM |
| Victoria Park | £ 215,000 | 0 | 0.00 KM |
| Burnside Crescent | £ 0 | 0 | 0.00 KM |
| Church Place | £ 74,000 | 0 | 0.00 KM |
| Greenburn Road | £ 270,000 | 0 | 0.00 KM |
Nearby Transport
| Name | NLC | TLC | Distance |
|---|---|---|---|
| Fauldhouse | 9245 | FLD | 2.28 KM |
| Breich | 9251 | BRC | 3.88 KM |
| Armadale (West Lothian) | 990 | ARM | 5.76 KM |
| Blackridge | 991 | BKR | 7.70 KM |
Nearby Listings
| Address | Price | Type | Score | Distance |
|---|---|---|---|---|
| Lanrigg Road, Fauldhouse | £ 95,000 | BUY | 7 / 10 | 0.00 KM |
| Park View, EH47 | £ 123,000 | BUY | 7 / 10 | 0.11 KM |
| Lanrigg Avenue, Fauldhouse | £ 149,000 | BUY | 7 / 10 | 0.20 KM |
| Lanrigg Road, Fauldhouse, EH47 9JG | £ 130,000 | BUY | 5 / 10 | 0.29 KM |
| Lanrigg Road, Fauldhouse, EH47 | £ 85,000 | BUY | 6 / 10 | 0.34 KM |