Ben Rose says ..
Ben Rose Estate Agents are delighted to bring to market this charming two-bedroom mid-terraced home, beautifully situated on the much sought-after Gillibrand Walks in Chorley, Lancashire. Ideal for first-time buyers or buy-to-let investors, this well-presented property offers both comfort and con...
Property Oracle says ..
This two-bedroom terraced house in Chorley, Lancashire is listed at £119,995. The property benefits from a convenient location, close to local schools and transport links. While the images suggest the property is in reasonable condition and has a small yard, there is no information about the plot size. Compared to the average house price in the area (£515,185) and the average price per square foot (£553), this property is significantly underpriced. However, this could be due to the smaller size of the property and the lack of information regarding the plot size. More information is needed to provide a complete analysis.
Therefore, we give this property 6 / 10. *Disclaimer: This is our option and does constitute a recommendation or financial advice. Do your own research. *
- Price
- 9
- Condition
- 7
- Location
- 8
- Land
- 3
- Bedrooms
- 2
- Bathrooms
- 1
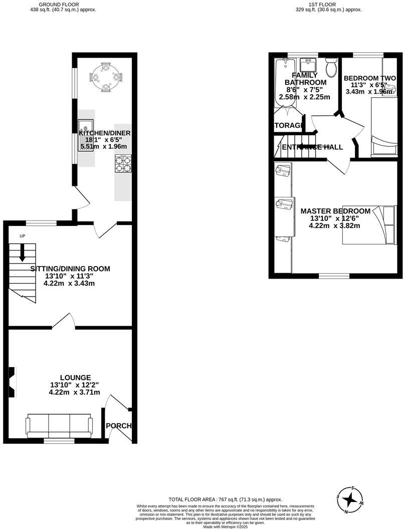
- Sqft (est)
- 767.00
The heatmap indicates the level of crime in the area. The color of the heatmap indicates the crime severity and recency.
Metrics Year-on-Year
- Average area value
- 271,777.00 £Increased by 15.25 %
- Est sale value
- 173,342.00 £Increased by 15.90 %
- Average area rental value
- 761.00 £/moDecreased by 4.04 %
- Est letting value
- 0.00 £/mo
- Est rental Yield
- 3.36 %Decreased by 16.83 %
- Crime Rate
- 10.00 %Unchanged by 0.00 %
Agent Activity
Ben Rose created the listing.
Nearby Schools
| Name | Type | Ofsted | Distance |
|---|---|---|---|
| Duke Street Primary School | Community School | Good | 0.42 KM |
| Duke Street Nursery School | Local Authority Nursery School | Outstanding | 0.49 KM |
| Duke Street Children'S Centre | Children's Centre | 0.54 KM | |
| Mayfield School | Community Special School | Good | 0.56 KM |
| Shaftesbury High School | Pupil Referral Unit | Good | 0.63 KM |
Images
Nearby Streets
| Name | Average Price | Average Sqft | Distance |
|---|---|---|---|
| Fleet Street | £ 0 | 0 | 0.00 KM |
| Westbourne Road | £ 199,995 | 0 | 0.00 KM |
| Oxford Street | £ 109,950 | 0 | 0.00 KM |
| St Georges Street | £ 0 | 0 | 0.00 KM |
| Foundry Street | £ 72,500 | 0 | 0.00 KM |
Nearby Transport
| Name | NLC | TLC | Distance |
|---|---|---|---|
| Chorley | 2745 | CRL | 0.94 KM |
| Buckshaw Parkway | 7501 | BSV | 4.03 KM |
| Euxton Balshaw Lane | 2080 | EBA | 4.38 KM |
| Adlington (Lancashire) | 2641 | ADL | 5.23 KM |
| Leyland | 2710 | LEY | 8.09 KM |
Nearby Listings
| Address | Price | Type | Score | Distance |
|---|---|---|---|---|
| Gillibrand Walks, Chorley | £ 119,995 | BUY | 6 / 10 | 0.00 KM |
| Gillibrand Walks, Chorley | £ 134,995 | BUY | 7 / 10 | 0.01 KM |
| Gillibrand Walks, Chorley, Lancashire, PR7 | £ 130,000 | BUY | 6 / 10 | 0.04 KM |
| Gillibrand Walks, Chorley | £ 260,000 | BUY | 6 / 10 | 0.04 KM |
| Gillibrand Walks, Chorley, Lancashire, PR7 | £ 100,000 | BUY | Unknown | 0.04 KM |
Nearby Properties
| Address | Price | Distance |
|---|---|---|
| 11 Bannister Street | £ 83,000 | 0.04 KM |
| 12 Bannister Street | £ 57,000 | 0.04 KM |
| 15 Bannister Street | £ 69,000 | 0.04 KM |
| 10 Bannister Street | £ 85,000 | 0.04 KM |
| 3 Bannister Street | £ 78,000 | 0.04 KM |