Pedder says ..
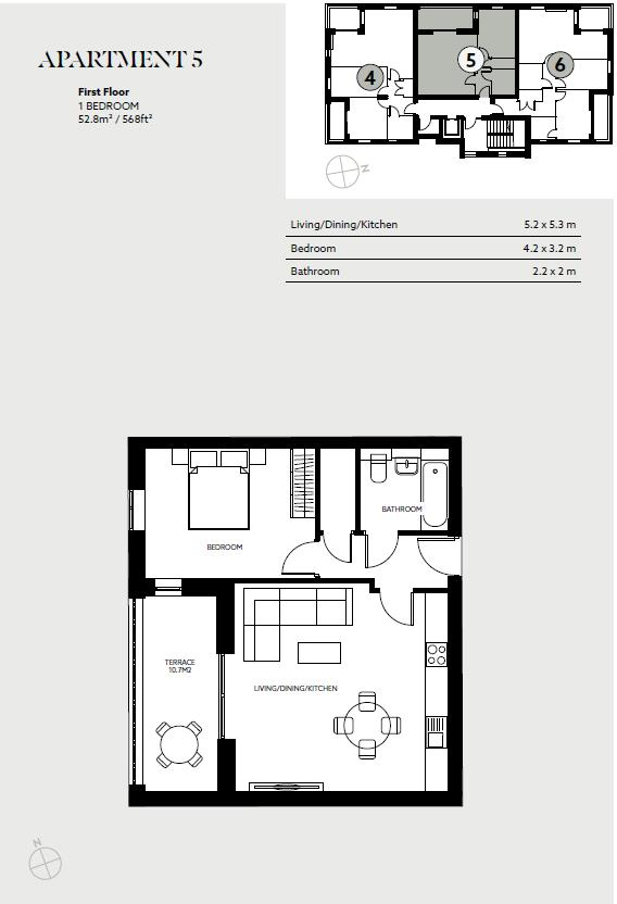
**SHOW HOME LAUNCHING 9TH AUGUST** Ashwood Gate is a stunning collection of nine 1, 2 and 3-bedroom apartments, in the heart of Herne Hill.
Property Oracle says ..
Therefore, we give this property 7 / 10. *Disclaimer: This is our option and does constitute a recommendation or financial advice. Do your own research. *
- Price
- 9
- Condition
- 9
- Location
- 8
- Land
- 3
- Bedrooms
- 1
- Bathrooms
- 1
- Sqft (est)
- 568.33
- Lot (est)
- 115.17
The heatmap indicates the level of crime in the area. The color of the heatmap indicates the crime severity and recency.
Metrics Year-on-Year
- Average area value
- 1,158,333.00 £Decreased by 5.42 %
- Est sale value
- 551,280.10 £Increased by 15.48 %
- Average area rental value
- 2,794.00 £/moDecreased by 10.39 %
- Est letting value
- 1,136.66 £/moUnchanged by 0.00 %
- Est rental Yield
- 2.89 %Decreased by 5.25 %
- Crime Rate
- 1.00 %Unchanged by 0.00 %
from 1,224,768.00 £
from 477,397.20 £
from 3,118.00 £/mo
from 1,136.66 £/mo
from 3.05 %
from 1.00 %
Agent Activity
Pedder created the listing.
Nearby Schools
| Name | Type | Ofsted | Distance |
|---|---|---|---|
| St Saviour'S Church Of England Primary School | Voluntary Aided School | Good | 0.59 KM |
| The Michael Tippett School | Community Special School | Good | 0.61 KM |
| Herne Hill School | Other Independent School | 0.64 KM | |
| Jessop Primary School & Children'S Centre | Children's Centre | 0.69 KM | |
| Jessop Primary School | Community School | Outstanding | 0.69 KM |
Images
Nearby Streets
| Name | Average Price | Average Sqft | Distance |
|---|---|---|---|
| Deepdene Road | £ 0 | 0 | 0.00 KM |
| Red Post Hill | £ 0 | 0 | 0.00 KM |
| Tram Close | £ 0 | 0 | 0.00 KM |
| Half Moon Lane | £ 0 | 0 | 0.00 KM |
| Ruskin Park House | £ 0 | 0 | 0.00 KM |
Nearby Transport
| Name | NLC | TLC | Distance |
|---|---|---|---|
| North Dulwich | 5429 | NDL | 0.96 KM |
| Herne Hill | 5066 | HNH | 1.01 KM |
| Loughborough Junction | 5082 | LGJ | 1.10 KM |
| Denmark Hill | 5421 | DMK | 1.20 KM |
| East Dulwich | 5358 | EDW | 1.64 KM |
Nearby Listings
| Address | Price | Type | Score | Distance |
|---|---|---|---|---|
| Ashwood Gate, Herne Hill, SE24 | £ 450,000 | BUY | 7 / 10 | 0.00 KM |
| Ashwood Gate, Herne Hill, SE24 | £ 585,000 | BUY | 6 / 10 | 0.00 KM |
| Ashwood Gate, Herne Hill, SE24 | £ 585,000 | BUY | 7 / 10 | 0.00 KM |
| Herne Hill Road, London, SE24 | £ 1,800,000 | BUY | Unknown | 0.10 KM |
| Ashwood Gate, Herne Hill, SE24 | £ 615,000 | BUY | 6 / 10 | 0.10 KM |
Nearby Properties
| Address | Price | Distance |
|---|---|---|
| 24b Herne Hill | £ 330,000 | 0.01 KM |
| 24c Herne Hill | £ 400,000 | 0.01 KM |
| 20a Herne Hill | £ 475,000 | 0.01 KM |
| 22a Herne Hill | £ 447,500 | 0.01 KM |
| 24a Herne Hill | £ 325,000 | 0.01 KM |