Land Adjacent to, The Hydneye, Eastbourne
By Milestone Sales & Lettings Ltd
£ 58,500
Reviews
2 out of 5 stars
Milestone Sales & Lettings Ltd says ..
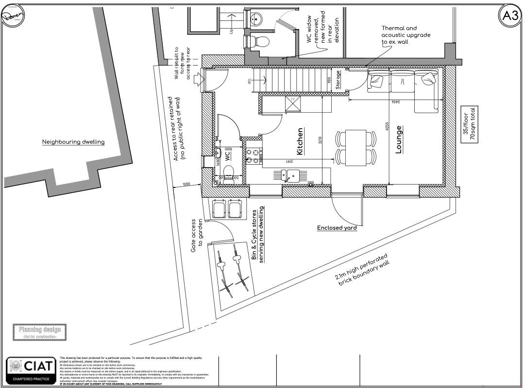
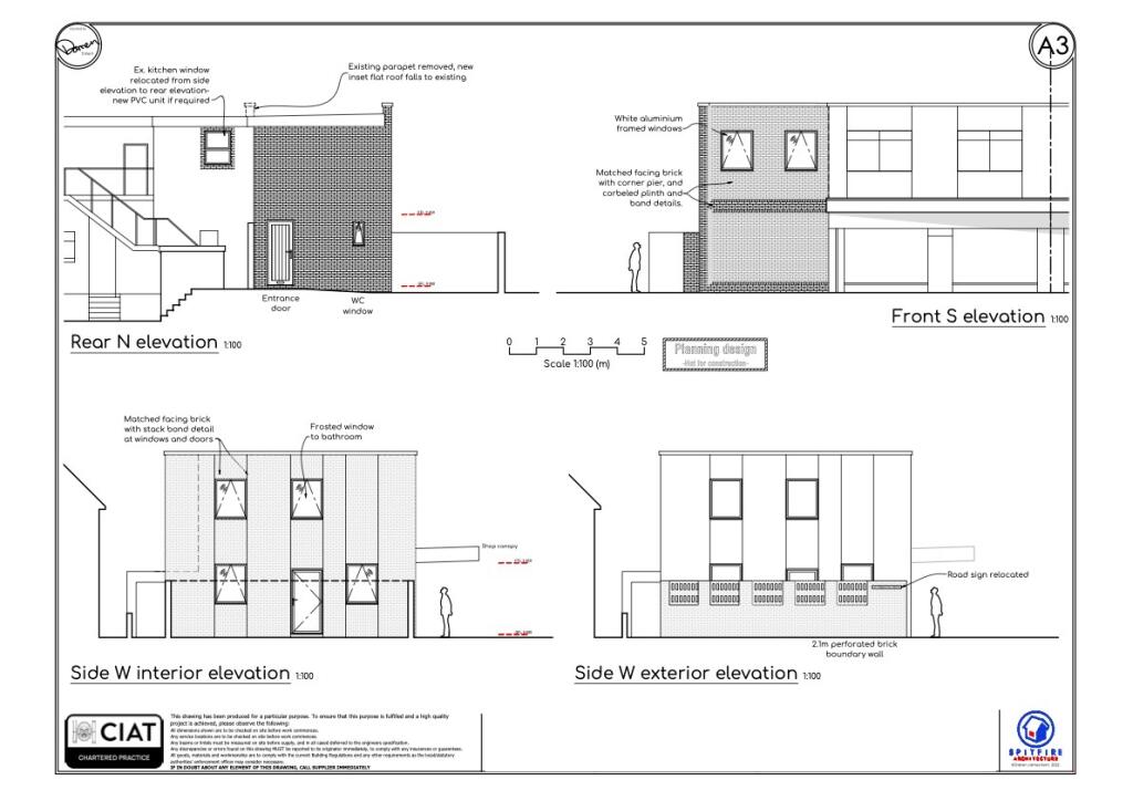
A unique opportunity to acquire a development site with full planning permission for the erection of a two-bedroom dwelling measuring approximately 85m². The site presents an excellent investment opportunity, with a Gross Development Value (GDV) of £265,000 and a Community Infrastructure Le...
Property Oracle says ..
This land is located in Hampden Park, Eastbourne, East Sussex. It benefits from being close to local amenities and transport links, including Hampden Park train station. The site has full planning permission for a two-bedroom dwelling, presenting a development opportunity. The list price of £58,500 should be considered in the context of the average house price in the area (£556,862) and the average price per sqft (£418.00). While the land itself is small, the potential return on investment from developing the property could make this a worthwhile purchase for the right buyer. However, potential buyers should conduct their own due diligence to assess the feasibility of the development project and the associated costs.
Therefore, we give this property 4 / 10. *Disclaimer: This is our option and does constitute a recommendation or financial advice. Do your own research. *
- Price
- 0
- Condition
- 0
- Location
- 8
- Land
- 1
- Bedrooms
- 2
- Bathrooms
- 1
- Sqft (est)
- 753.47
The heatmap indicates the level of crime in the area. The color of the heatmap indicates the crime severity and recency.
Metrics Year-on-Year
- Average area value
- 318,317.00 £Decreased by 11.84 %
- Est sale value
- 342,075.38 £Increased by 81.60 %
- Average area rental value
- 1,183.00 £/moDecreased by 9.00 %
- Est letting value
- 753.47 £/mo
- Est rental Yield
- 4.46 %Increased by 3.24 %
- Crime Rate
- 16.00 %Unchanged by 0.00 %
Agent Activity
Milestone Sales & Lettings Ltd created the listing.
Nearby Schools
| Name | Type | Ofsted | Distance |
|---|---|---|---|
| Heron Park Primary Academy | Academy Sponsor Led | Requires improvement | 0.26 KM |
| College Central | Academy Alternative Provision Converter | Good | 0.69 KM |
| Parkland Infant School | Academy Converter | 1.16 KM | |
| Parkland Junior School | Academy Converter | Good | 1.16 KM |
| The Eastbourne Academy | Academy Sponsor Led | Good | 1.36 KM |
Images
Nearby Streets
| Name | Average Price | Average Sqft | Distance |
|---|---|---|---|
| Brampton Road | £ 340,000 | 0 | 0.00 KM |
| The Paddock | £ 225,000 | 0 | 0.00 KM |
| Knoll Road | £ 0 | 0 | 0.00 KM |
| Manor Road | £ 0 | 0 | 0.00 KM |
| Hampden Park Drive | £ 4,000,000 | 0 | 0.00 KM |
Nearby Transport
| Name | NLC | TLC | Distance |
|---|---|---|---|
| Hampden Park (Sussex) | 5450 | HMD | 0.23 KM |
| Eastbourne | 5448 | EBN | 3.19 KM |
| Polegate | 5455 | PLG | 4.70 KM |
| Pevensey And Westham | 5461 | PEV | 5.27 KM |
| Pevensey Bay | 5462 | PEB | 7.22 KM |
Nearby Listings
| Address | Price | Type | Score | Distance |
|---|---|---|---|---|
| Land Adjacent to, The Hydneye, Eastbourne | £ 58,500 | BUY | 4 / 10 | 0.00 KM |
| Hampden Avenue, Eastbourne | £ 259,950 | BUY | 6 / 10 | 0.09 KM |
| Hampden Avenue, Eastbourne, BN22 9PH | £ 230,000 | BUY | Unknown | 0.09 KM |
| Mountfield Road, Eastbourne, East Sussex, BN22 | £ 250,000 | BUY | 6 / 10 | 0.11 KM |
| Hampden Avenue, Eastbourne, BN22 | £ 250,000 | BUY | 7 / 10 | 0.11 KM |
Nearby Properties
| Address | Price | Distance |
|---|---|---|
| 22 Mountfield Road | £ 140,000 | 0.09 KM |
| 9 Mountfield Road | £ 27,000 | 0.10 KM |
| 23 Mountfield Road | £ 130,000 | 0.10 KM |
| 21 Mountfield Road | £ 136,500 | 0.10 KM |
| 9 Hampden Avenue | £ 210,000 | 0.11 KM |