Gestingthorpe Road, Belchamp Walter, Sudbury, CO10
By Fenn Wright
£ 390,000
Reviews
3 out of 5 stars
Fenn Wright says ..
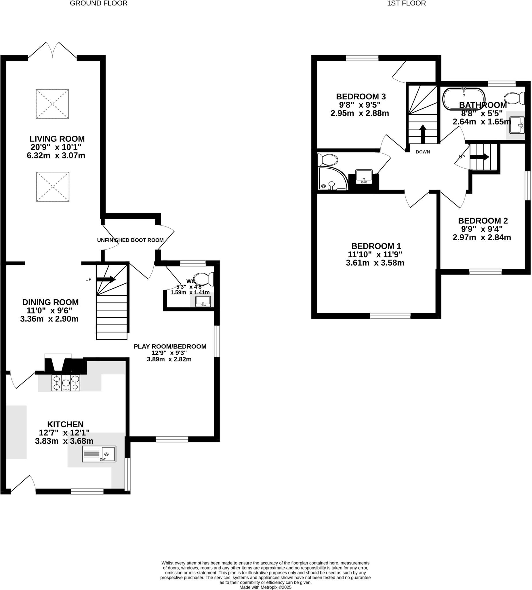
This flint fronted and extended semi-detached cottage is situated in a rural location and benefits from off-road parking, a pleasant rear garden and bedrooms on the ground and first floors.
Property Oracle says ..
Therefore, we give this property 6 / 10. *Disclaimer: This is our option and does constitute a recommendation or financial advice. Do your own research. *
- Price
- 6
- Condition
- 6
- Location
- 7
- Land
- 6
- Bedrooms
- 4
- Bathrooms
- 2
The heatmap indicates the level of crime in the area. The color of the heatmap indicates the crime severity and recency.
Metrics Year-on-Year
- Average area value
- 233,000.00 £Increased by 9.20 %
- Average area rental value
- 814.00 £/moDecreased by 17.11 %
- Est rental Yield
- 4.19 %Decreased by 24.09 %
- Crime Rate
- 52.00 %Unchanged by 0.00 %
from 213,362.00 £
from 982.00 £/mo
from 5.52 %
from 52.00 %
Agent Activity
Fenn Wright created the listing.
Nearby Schools
| Name | Type | Ofsted | Distance |
|---|---|---|---|
| Belchamp St Paul Church Of England Primary School | Academy Converter | 4.51 KM | |
| St Andrew'S Bulmer Church Of England Voluntary Controlled Primary School | Voluntary Controlled School | Good | 4.63 KM |
| St Giles' Church Of England Primary School | Voluntary Controlled School | Good | 6.23 KM |
| Cavendish Church Of England Primary School | Voluntary Controlled School | Good | 6.33 KM |
| De Vere Primary School | Academy Sponsor Led | 7.71 KM |
Images
Nearby Streets
| Name | Average Price | Average Sqft | Distance |
|---|---|---|---|
| Soft Road | £ 0 | 0 | 0.00 KM |
| North Road | £ 1,800,000 | 0 | 0.00 KM |
| Chapel Hill | £ 895,000 | 0 | 0.00 KM |
Nearby Transport
| Name | NLC | TLC | Distance |
|---|---|---|---|
| Sudbury (Suffolk) | 7098 | SUY | 9.43 KM |
Nearby Listings
| Address | Price | Type | Score | Distance |
|---|---|---|---|---|
| Gestingthorpe Road, Belchamp Walter, Sudbury, CO10 | £ 390,000 | BUY | 6 / 10 | 0.00 KM |
| Gestingthorpe Road, Belchamp Walter, Sudbury | £ 350,000 | BUY | 6 / 10 | 0.00 KM |
| Waits Farm, Belchamp Walter, Sudbury | £ 750,000 | BUY | 7 / 10 | 0.10 KM |
| Gestingthorpe Road, Belchamp Walter, Sudbury, CO10 7AX | £ 280,000 | BUY | 7 / 10 | 0.13 KM |
| Bells Road, Belchamp Walter, Sudbury, CO10 | £ 800,000 | BUY | Unknown | 0.17 KM |
Nearby Properties
| Address | Price | Distance |
|---|---|---|
| Plum Tree House | £ 375,000 | 0.01 KM |
| Forge Cottage | £ 219,000 | 0.01 KM |
| Ashcroft | £ 475,000 | 0.02 KM |
| Crossley | £ 325,000 | 0.08 KM |
| 1 North Waver Cottage | £ 155,000 | 0.08 KM |