Ocean says ..
This charming cottage located in Mangotsfield has been tastefully decorated throughout in keeping with its age. It boasts a beautiful mature south facing garden to the rear, perfect for those who enjoy relaxing and out door entertainment.
Property Oracle says ..
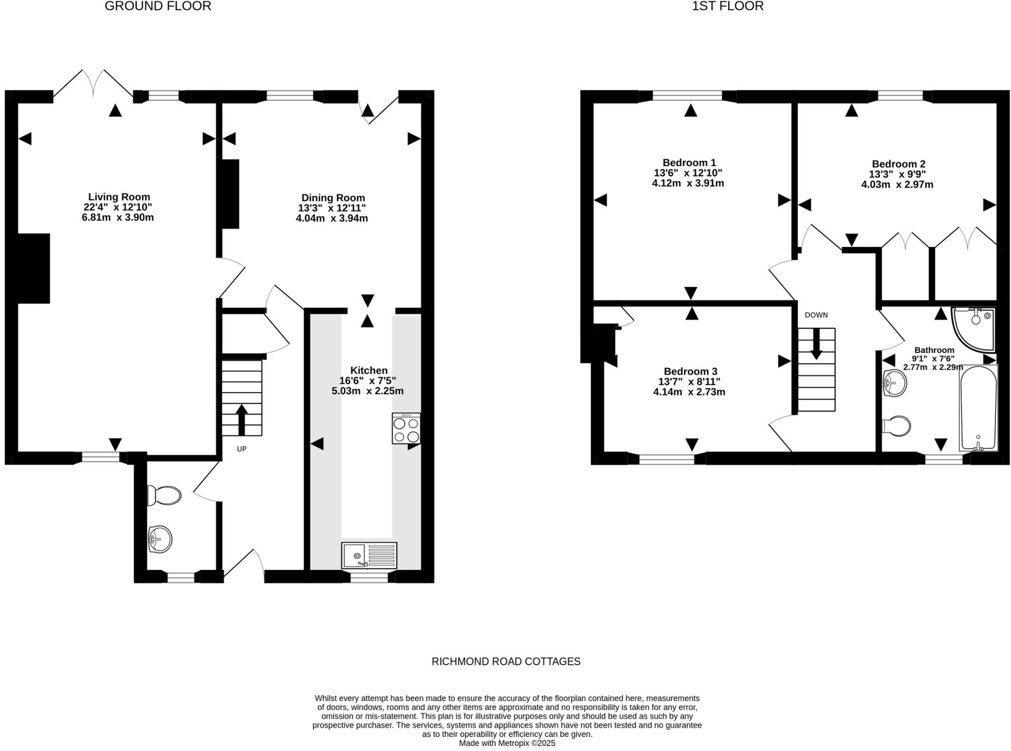
This property is a charming cottage located in Emersons Green, South Gloucestershire. The asking price of £500,000 is higher than the average price for the area (£415,379), but the property is larger than average (1,043 sqft vs 951 sqft average). The property benefits from a sizable garden, which is a desirable feature in this market. The cottage appears to be well-maintained and in good condition, with modern updates while retaining some traditional character. Its proximity to good schools and transport links adds to its appeal. However, a detailed survey would be recommended to fully assess the property’s condition and potential maintenance needs.
Therefore, we give this property 7 / 10. *Disclaimer: This is our option and does constitute a recommendation or financial advice. Do your own research. *
- Price
- 6
- Condition
- 9
- Location
- 7
- Land
- 8
- Bedrooms
- 3
- Bathrooms
- 1
- Sqft (est)
- 1,043.48
The heatmap indicates the level of crime in the area. The color of the heatmap indicates the crime severity and recency.
Metrics Year-on-Year
- Average area value
- 399,497.00 £Decreased by 1.14 %
- Est sale value
- 464,348.60 £Increased by 19.62 %
- Average area rental value
- 1,402.00 £/moDecreased by 1.61 %
- Est letting value
- 1,043.48 £/moUnchanged by 0.00 %
- Est rental Yield
- 4.21 %Decreased by 0.47 %
- Crime Rate
- 3.00 %Unchanged by 0.00 %
Agent Activity
Ocean created the listing.
Nearby Schools
| Name | Type | Ofsted | Distance |
|---|---|---|---|
| Barley Close Community Primary School | Community School | Good | 0.61 KM |
| Emersons Green Primary School | Community School | Good | 0.66 KM |
| Mangotsfield Church Of England Voluntary Controlled Primary School | Voluntary Controlled School | Outstanding | 0.66 KM |
| Mangotsfield School | Academy Sponsor Led | Requires improvement | 0.66 KM |
| Mangotsfield Children'S Centre | Children's Centre Linked Site | 0.75 KM |
Images
Nearby Streets
| Name | Average Price | Average Sqft | Distance |
|---|---|---|---|
| Oaklands Close | £ 475,000 | 0 | 0.00 KM |
| Barn Close | £ 0 | 0 | 0.00 KM |
| The Laurels | £ 300,000 | 0 | 0.00 KM |
| Wadham Grove | £ 620,000 | 0 | 0.00 KM |
| Windsor Place | £ 0 | 0 | 0.00 KM |
Nearby Transport
| Name | NLC | TLC | Distance |
|---|---|---|---|
| Bristol Parkway | 3230 | BPW | 7.15 KM |
| Keynsham | 3237 | KYN | 7.66 KM |
| Yate | 3380 | YAE | 8.33 KM |
| Filton Abbey Wood | 3235 | FIT | 8.94 KM |
| Stapleton Road | 3250 | SRD | 9.32 KM |
Nearby Listings
| Address | Price | Type | Score | Distance |
|---|---|---|---|---|
| Richmond Road Cottages | £ 500,000 | BUY | 7 / 10 | 0.00 KM |
| Oaklands Road, Mangotsfield | £ 220,000 | BUY | 7 / 10 | 0.13 KM |
| Oaklands Road, Mangotsfield | £ 230,000 | BUY | 5 / 10 | 0.13 KM |
| Richmond Road, Mangotsfield, Bristol, Gloucestershire | £ 350,000 | BUY | 6 / 10 | 0.13 KM |
| Richmond Road, Mangotsfield | £ 375,000 | BUY | 7 / 10 | 0.15 KM |
Nearby Properties
| Address | Price | Distance |
|---|---|---|
| 15 Elmleigh Close | £ 322,000 | 0.05 KM |
| 8 Elmleigh Close | £ 250,000 | 0.08 KM |
| 18 Elmleigh Close | £ 252,500 | 0.08 KM |
| 11 Elmleigh Close | £ 240,000 | 0.08 KM |
| 15a Elmleigh Road | £ 295,000 | 0.12 KM |