99 Garvock Hill, Dunfermline KY12 7RN
By Harper & Stone Limited
£ 330,000
Reviews
4 out of 5 stars
Harper & Stone Limited says ..
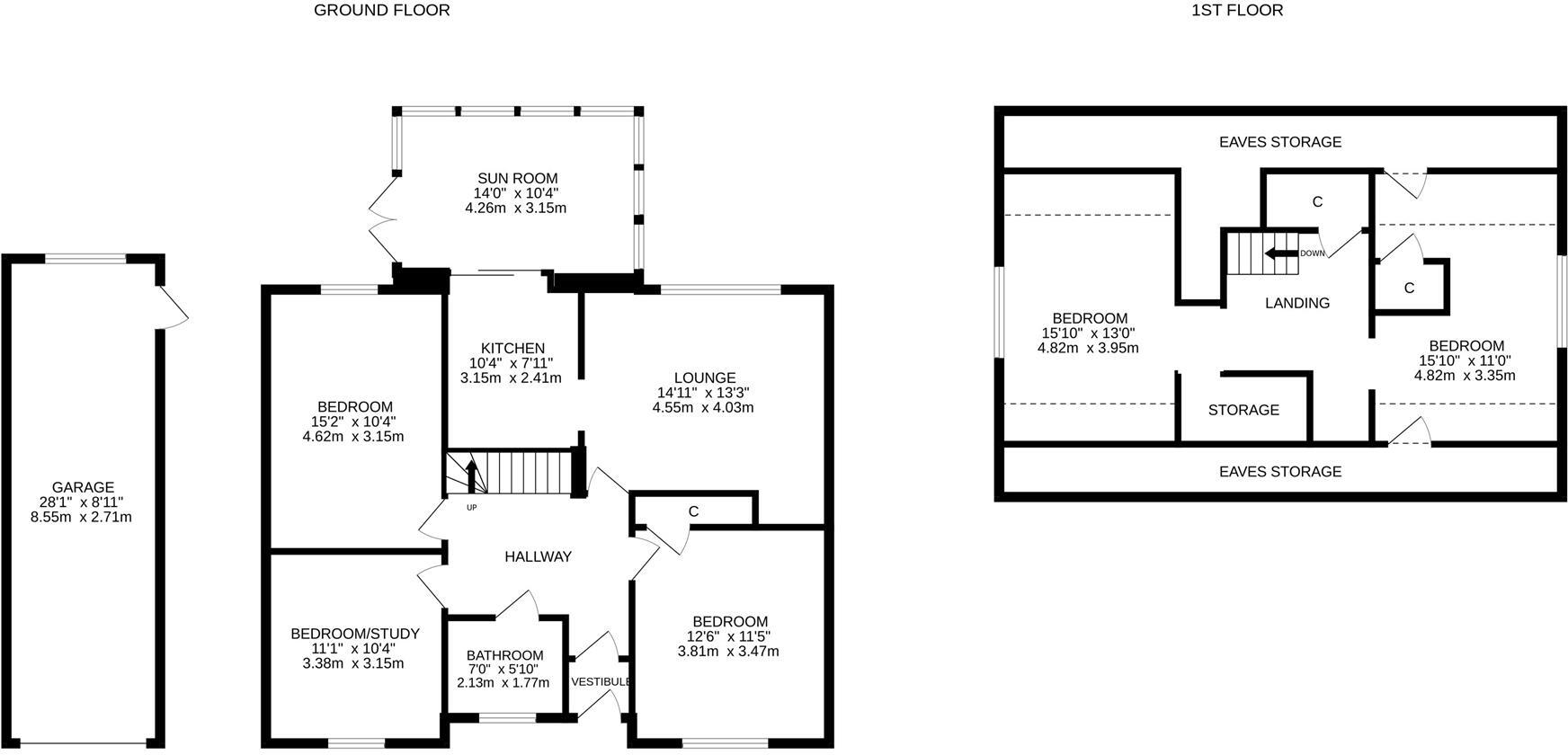
Harper & Stone are delighted to present 99 Garvock Hill to the open market. Nestled in the charming area of Garvock Hill, Dunfermline, this beautifully presented detached house offers a delightful blend of modern living and classic comfort. Spanning an impressive 126 square meters, the property ...
Property Oracle says ..
Location: Dunfermline is a desirable location in Fife, Scotland. The property’s proximity to Dunfermline Queen Margaret train station (1.35km) offers convenient access to public transportation. While information on nearby schools and shops is not available, the overall location within Dunfermline suggests a reasonable score.
Condition: The provided images showcase a property that appears to be in excellent condition. The kitchen and bathroom have been recently renovated to a high standard, and the rest of the house is well-maintained and presented. There is no evidence of needed repairs or renovations.
Land: The property includes a garden area, which is visible in the provided images. The size is not specified, but it appears to be of a reasonable size for a detached house in this location.
Price: The list price is £330,000. The average price for properties in the area is £458,408, and the average price per square foot is £303. Without the square footage of the property, a precise price-per-square-foot comparison is impossible. However, given the apparent excellent condition and the inclusion of a garden, the list price appears to be relatively reasonable compared to the average price in the area, suggesting good value.
Therefore, we give this property 8 / 10. *Disclaimer: This is our option and does constitute a recommendation or financial advice. Do your own research. *
- Price
- 8
- Condition
- 10
- Location
- 8
- Land
- 7
- Bedrooms
- 4
- Bathrooms
- 1
The heatmap indicates the level of crime in the area. The color of the heatmap indicates the crime severity and recency.
Metrics Year-on-Year
- Average area value
- 546,663.00 £Increased by 20.32 %
- Average area rental value
- 2,315.00 £/moIncreased by 58.13 %
- Est rental Yield
- 5.08 %Increased by 31.27 %
- Crime Rate
- 0.00 %
Agent Activity
Harper & Stone Limited created the listing.
Images
Nearby Streets
| Name | Average Price | Average Sqft | Distance |
|---|---|---|---|
| Old Kirk Place | £ 0 | 0 | 0.00 KM |
| Guildry Grove | £ 0 | 0 | 0.00 KM |
| Hill Court | £ 0 | 0 | 0.00 KM |
| St John's Place | £ 0 | 0 | 0.00 KM |
| Craigston Drive | £ 160,000 | 0 | 0.00 KM |
Nearby Transport
| Name | NLC | TLC | Distance |
|---|---|---|---|
| Dunfermline Queen Margaret | 9186 | DFL | 1.35 KM |
| Dunfermline Town | 9187 | DFE | 2.37 KM |
| Rosyth | 9190 | ROS | 3.29 KM |
| Inverkeithing | 9136 | INK | 5.97 KM |
| Dalgety Bay | 9135 | DAG | 8.00 KM |
Nearby Listings
| Address | Price | Type | Score | Distance |
|---|---|---|---|---|
| 90 Garvock Hill, Dunfermline, KY12 7RN | £ 350,000 | BUY | 8 / 10 | 0.05 KM |
| 26 Gowanbrae Drive, Dunfermline, KY12 7RL | £ 179,000 | BUY | 6 / 10 | 0.09 KM |
| Old Kirk Place, Dunfermline, KY12 | £ 430,000 | BUY | 7 / 10 | 0.15 KM |
| 8 Old Kirk Place, Dunfermline | £ 274,950 | BUY | Unknown | 0.16 KM |
| 2 Thimblehall Place, Dunfermline, KY12 7UF | £ 319,950 | BUY | 8 / 10 | 0.23 KM |