BU
Coxhill Gardens, River, Dover, CT17
By Burnap & Abel
£ 375,000
Reviews
4 out of 5 stars
Burnap & Abel says ..
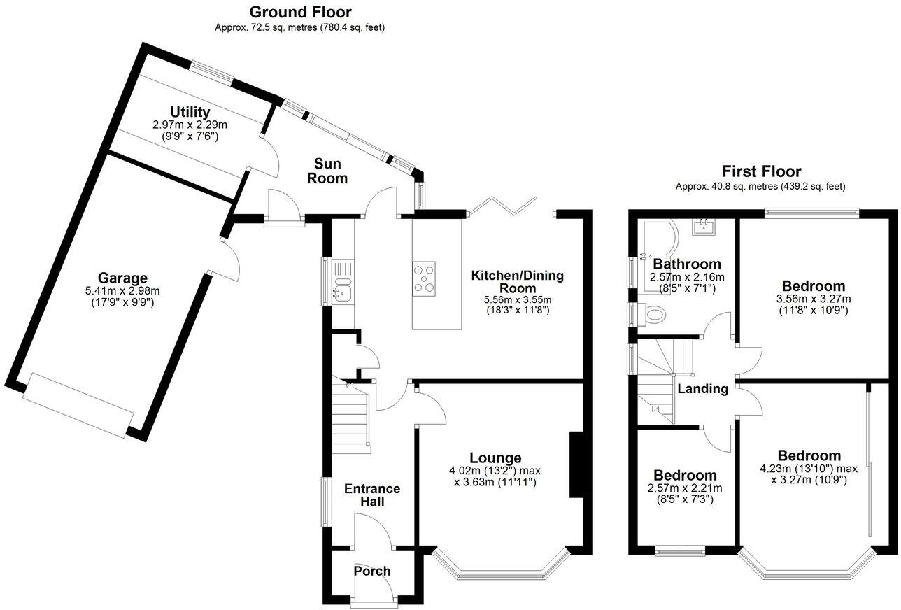
Draft Details...FOR SALE THROUGH BURNAP + ABEL...Wonderful Three-Bedroom Semi-Detached Family Home in the Heart of River, Dover. This charming three-bedroom semi-detached family home offers the perfect combination of space, comfort, and convenience. With a thoughtfully designed layout and a wa...
Property Oracle says ..
Therefore, we give this property 8 / 10. *Disclaimer: This is our option and does constitute a recommendation or financial advice. Do your own research. *
- Price
- 9
- Condition
- 8
- Location
- 8
- Land
- 7
- Bedrooms
- 3
- Bathrooms
- 1
- Sqft (est)
- 1,040.76
The heatmap indicates the level of crime in the area. The color of the heatmap indicates the crime severity and recency.
Metrics Year-on-Year
- Average area value
- 420,000.00 £Decreased by 25.30 %
- Est sale value
- 289,331.28 £Decreased by 27.23 %
- Average area rental value
- 898.00 £/moDecreased by 22.79 %
- Est letting value
- 0.00 £/mo
- Est rental Yield
- 2.57 %Increased by 3.63 %
- Crime Rate
- 46.00 %Unchanged by 0.00 %
from 562,278.00 £
from 397,570.32 £
from 1,163.00 £/mo
from 0.00 £/mo
from 2.48 %
from 46.00 %
Agent Activity
Burnap & Abel created the listing.
Nearby Schools
| Name | Type | Ofsted | Distance |
|---|---|---|---|
| River Primary School | Community School | Outstanding | 0.36 KM |
| The Sallygate School | Other Independent Special School | Good | 0.47 KM |
| Temple Ewell Church Of England Primary School | Academy Sponsor Led | Outstanding | 1.05 KM |
| The Buttercup Children'S Centre | Children's Centre | 1.72 KM | |
| Snowdrop Children'S Centre | Children's Centre | 1.72 KM |
Images
Nearby Streets
| Name | Average Price | Average Sqft | Distance |
|---|---|---|---|
| Chilton Avenue | £ 0 | 0 | 0.00 KM |
| Manor View | £ 0 | 0 | 0.00 KM |
| Laburnum Close | £ 220,000 | 0 | 0.00 KM |
| Egerton Road | £ 0 | 0 | 0.00 KM |
| High Street | £ 260,000 | 0 | 0.00 KM |
Nearby Transport
| Name | NLC | TLC | Distance |
|---|---|---|---|
| Kearsney (Kent) | 5038 | KSN | 0.57 KM |
| Dover Priory | 5033 | DVP | 4.26 KM |
| Shepherds Well | 5186 | SPH | 6.73 KM |
| Martin Mill | 5040 | MTM | 8.96 KM |
Nearby Listings
| Address | Price | Type | Score | Distance |
|---|---|---|---|---|
| Coxhill Gardens, River, Dover, CT17 | £ 375,000 | BUY | 8 / 10 | 0.00 KM |
| Coxhill Gardens, River, Dover, CT17 | £ 400,000 | BUY | 7 / 10 | 0.00 KM |
| Coxhill Gardens, Dover, Kent, CT17 | £ 400,000 | BUY | 6 / 10 | 0.01 KM |
| Chilton Way, River, Dover, Kent CT17 0QA | £ 430,000 | BUY | 6 / 10 | 0.08 KM |
| Chilton Way, River, CT17 | £ 180,000 | BUY | 7 / 10 | 0.09 KM |
Nearby Properties
| Address | Price | Distance |
|---|---|---|
| 11 Coxhill Gardens | £ 248,500 | 0.01 KM |
| 12 Coxhill Gardens | £ 277,500 | 0.01 KM |
| 19 Coxhill Gardens | £ 325,000 | 0.01 KM |
| 29 Chilton Way | £ 200,000 | 0.09 KM |
| 12b Chilton Way | £ 139,000 | 0.09 KM |