4 Overbury Street, London E5
By Felicity J Lord
£ 445,000
Reviews
3 out of 5 stars
Felicity J Lord says ..
A split level, ground and first floor purpose built apartment benefitting from a south facing garden, being offered to the market chain free and positioned in a prime Clapton location
Property Oracle says ..
This three-bedroom flat is located in Hackney, East London, and is currently listed at £445,000. The property benefits from a small, enclosed rear garden. While the flat itself appears to be in reasonable condition, requiring only minor cosmetic improvements, the overall presentation suggests a need for some modernisation. The average price per square foot in the area is £771, while this property is listed at a lower price per square foot. However, this should be considered in light of the property needing some modernisation. The location is convenient, with several primary schools within a short distance, and several overground stations within approximately a mile radius. This makes the property suitable for families and commuters.
Therefore, we give this property 6 / 10. *Disclaimer: This is our option and does constitute a recommendation or financial advice. Do your own research. *
- Price
- 7
- Condition
- 7
- Location
- 8
- Land
- 3
- Bedrooms
- 3
- Bathrooms
- 1
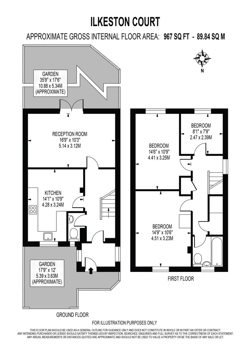
- Sqft (est)
- 967.00
The heatmap indicates the level of crime in the area. The color of the heatmap indicates the crime severity and recency.
Metrics Year-on-Year
- Average area value
- 786,667.00 £Decreased by 0.96 %
- Est sale value
- 729,118.00 £Decreased by 11.29 %
- Average area rental value
- 2,720.00 £/moDecreased by 8.48 %
- Est letting value
- 1,934.00 £/moDecreased by 33.33 %
- Est rental Yield
- 4.15 %Decreased by 7.57 %
- Crime Rate
- 7.00 %Unchanged by 0.00 %
Agent Activity
Felicity J Lord created the listing.
Nearby Schools
| Name | Type | Ofsted | Distance |
|---|---|---|---|
| Mandeville Primary School | Community School | Good | 0.27 KM |
| Daubeney Primary School | Community School | Requires improvement | 0.32 KM |
| Daubeney Children'S Centre | Children's Centre | 0.35 KM | |
| Clapton Park Children'S Centre | Children's Centre Linked Site | 0.38 KM | |
| Kingsmead Primary School | Community School | Outstanding | 0.53 KM |
Images
Nearby Streets
| Name | Average Price | Average Sqft | Distance |
|---|---|---|---|
| Chowdhury Walk | £ 625,000 | 0 | 0.00 KM |
| Thyme Walk | £ 0 | 0 | 0.00 KM |
| Fisher Close | £ 0 | 0 | 0.00 KM |
| Crozier Terrace | £ 0 | 0 | 0.00 KM |
| Fletching Road | £ 0 | 0 | 0.00 KM |
Nearby Transport
| Name | NLC | TLC | Distance |
|---|---|---|---|
| Homerton | 6979 | HMN | 0.90 KM |
| Lea Bridge | 6927 | LEB | 1.36 KM |
| Hackney Central | 6977 | HKC | 1.97 KM |
| Clapton | 6926 | CPT | 2.04 KM |
| Hackney Wick | 6978 | HKW | 2.09 KM |
Nearby Listings
| Address | Price | Type | Score | Distance |
|---|---|---|---|---|
| 4 Overbury Street, London E5 | £ 445,000 | BUY | 6 / 10 | 0.00 KM |
| Derby Court, Overbury Street, London, E5 | £ 350,000 | BUY | 5 / 10 | 0.08 KM |
| Redwald Road, E5 | £ 325,000 | BUY | 6 / 10 | 0.09 KM |
| Gilpin Road, London E5 | £ 500,000 | BUY | 5 / 10 | 0.14 KM |
| Redwald Road, London | £ 550,000 | BUY | 6 / 10 | 0.15 KM |
Nearby Properties
| Address | Price | Distance |
|---|---|---|
| 3 Blackwell Close | £ 470,000 | 0.05 KM |
| 14 Blackwell Close | £ 185,000 | 0.05 KM |
| 18 Blackwell Close | £ 240,000 | 0.05 KM |
| 1 Blackwell Close | £ 250,000 | 0.05 KM |
| 12 Blackwell Close | £ 120,000 | 0.05 KM |