CO
Chilkwell Street, Glastonbury, BA6
By Cooper & Tanner
£ 350,000
Reviews
3 out of 5 stars
Cooper & Tanner says ..
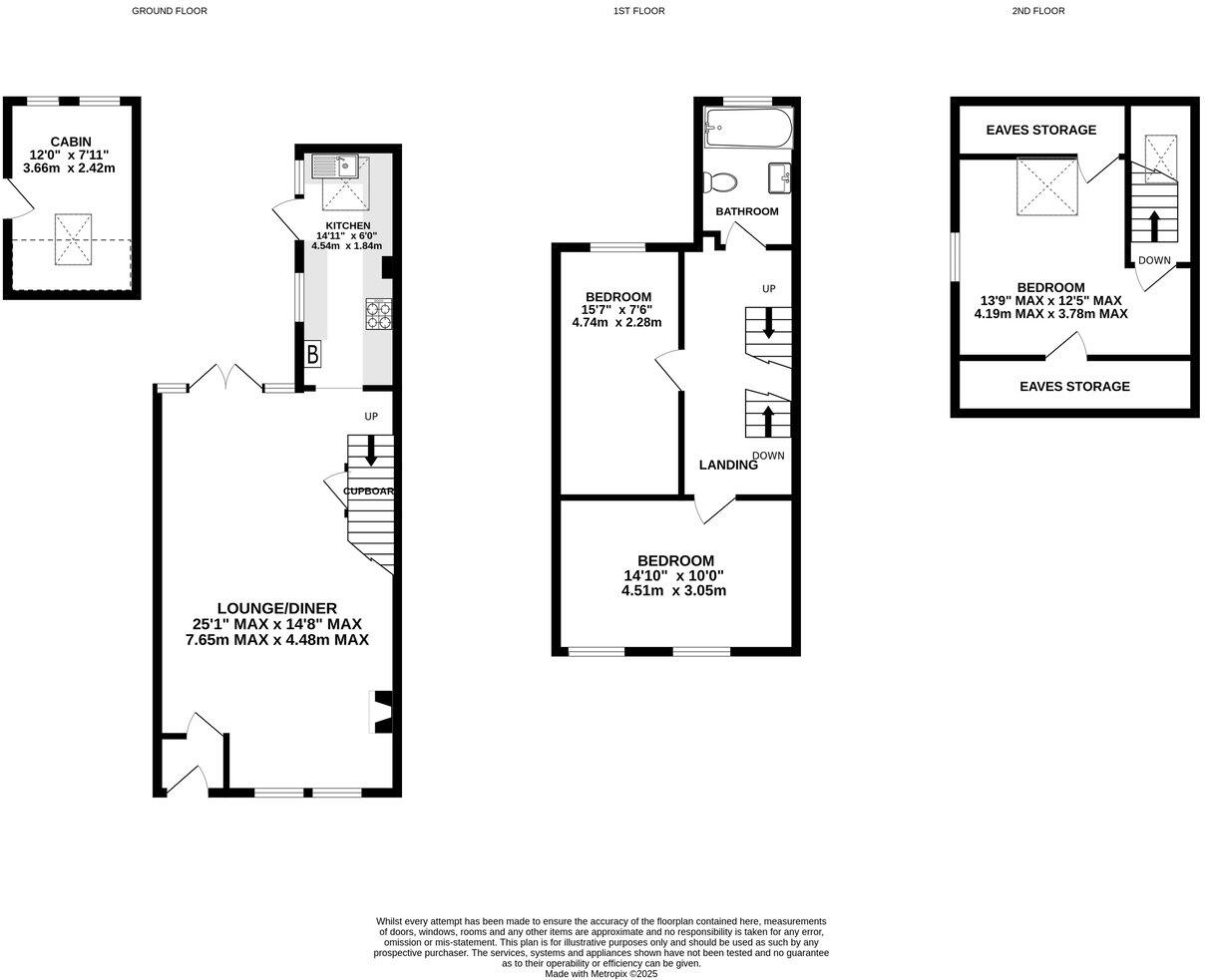
This charming three-bedroom character property is ideally located within a short walk from the iconic Glastonbury Tor and the serene Chalice Well Gardens.
Property Oracle says ..
Therefore, we give this property 6 / 10. *Disclaimer: This is our option and does constitute a recommendation or financial advice. Do your own research. *
- Price
- 6
- Condition
- 7
- Location
- 7
- Land
- 7
- Bedrooms
- 3
- Bathrooms
- 1
- Sqft (est)
- 988.99
The heatmap indicates the level of crime in the area. The color of the heatmap indicates the crime severity and recency.
Metrics Year-on-Year
- Crime Rate
- 15.00 %Unchanged by 0.00 %
from 15.00 %
Agent Activity
Cooper & Tanner created the listing.
Nearby Schools
| Name | Type | Ofsted | Distance |
|---|---|---|---|
| St John'S Church Of England Voluntary Controlled Infants School | Voluntary Controlled School | Good | 0.95 KM |
| Mendip West | Children's Centre | 1.19 KM | |
| St Benedict'S Church Of England Voluntary Aided Junior School | Voluntary Aided School | Good | 1.28 KM |
| St Dunstan'S School | Academy Converter | Good | 1.35 KM |
| Millfield Preparatory School | Other Independent School | 2.25 KM |
Images
Nearby Streets
| Name | Average Price | Average Sqft | Distance |
|---|---|---|---|
| Bilbury Lane | £ 0 | 0 | 0.00 KM |
| Cinnamon Lane | £ 0 | 0 | 0.00 KM |
| Meadow View | £ 395,000 | 0 | 0.00 KM |
| Launder Close | £ 0 | 0 | 0.00 KM |
| Breynton Road | £ 251,250 | 0 | 0.00 KM |
Nearby Listings
| Address | Price | Type | Score | Distance |
|---|---|---|---|---|
| Chilkwell Street, Glastonbury, BA6 | £ 350,000 | BUY | 6 / 10 | 0.00 KM |
| Chilkwell Street, Glastonbury | £ 345,000 | BUY | 6 / 10 | 0.07 KM |
| Cottle Close, Glastonbury, Somerset | £ 265,000 | BUY | 6 / 10 | 0.07 KM |
| Hood Close, Glastonbury, BA6 | £ 279,950 | BUY | 6 / 10 | 0.15 KM |
| Hood Close, Glastonbury, BA6 | £ 299,950 | BUY | 7 / 10 | 0.16 KM |
Nearby Properties
| Address | Price | Distance |
|---|---|---|
| 55 Chilkwell Street | £ 335,000 | 0.00 KM |
| 51 Chilkwell Street | £ 268,000 | 0.00 KM |
| 39 Chilkwell Street | £ 212,500 | 0.00 KM |
| 37 Chilkwell Street | £ 420,000 | 0.00 KM |
| 59a Chilkwell Street | £ 145,500 | 0.00 KM |