Bush says ..
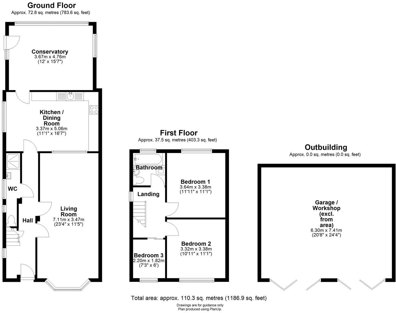
A three-bedroom semi-detached family home, in need of modernisation, with a large workshop to the rear offering enormous potential to enlarge STPP. Located just a short walk from the mainline railway station and within easy reach of the city centre, Addenbrookes Hospital Biomedical Campus and all...
Property Oracle says ..
Therefore, we give this property 6 / 10. *Disclaimer: This is our option and does constitute a recommendation or financial advice. Do your own research. *
- Price
- 7
- Condition
- 4
- Location
- 8
- Land
- 6
- Bedrooms
- 3
- Bathrooms
- 1
- Sqft (est)
- 1,435.94
The heatmap indicates the level of crime in the area. The color of the heatmap indicates the crime severity and recency.
Metrics Year-on-Year
- Average area value
- 434,999.00 £Decreased by 13.09 %
- Est sale value
- 1,018,081.46 £Increased by 35.05 %
- Average area rental value
- 1,897.00 £/moIncreased by 9.40 %
- Est letting value
- 4,307.82 £/moIncreased by 200.00 %
- Est rental Yield
- 5.23 %Increased by 25.72 %
- Crime Rate
- 3.00 %Unchanged by 0.00 %
from 500,504.00 £
from 753,868.50 £
from 1,734.00 £/mo
from 1,435.94 £/mo
from 4.16 %
from 3.00 %
Agent Activity
Bush created the listing.
Nearby Schools
| Name | Type | Ofsted | Distance |
|---|---|---|---|
| Ridgefield Primary School | Foundation School | Good | 0.89 KM |
| Coleridge Community College | Academy Converter | Good | 0.89 KM |
| Morley Memorial Primary School | Community School | Good | 1.04 KM |
| St Philip'S Cofe Aided Primary School | Voluntary Aided School | Requires improvement | 1.21 KM |
| Hills Road Sixth Form College | Further Education | Outstanding | 1.29 KM |
Images
Nearby Streets
| Name | Average Price | Average Sqft | Distance |
|---|---|---|---|
| Millcroft Court | £ 165,000 | 0 | 0.00 KM |
| Swann's Terrace | £ 0 | 0 | 0.00 KM |
| Ruth Bagnall Court | £ 0 | 0 | 0.00 KM |
| Hemingford Road | £ 0 | 0 | 0.00 KM |
| Malta Road | £ 0 | 0 | 0.00 KM |
Nearby Transport
| Name | NLC | TLC | Distance |
|---|---|---|---|
| Cambridge | 7022 | CBG | 0.78 KM |
| Cambridge North | 8001 | CMB | 3.56 KM |
| Shelford (Cambs) | 7043 | SED | 5.25 KM |
| Waterbeach | 7079 | WBC | 9.41 KM |
Nearby Listings
| Address | Price | Type | Score | Distance |
|---|---|---|---|---|
| Greville Road, Cambridge | £ 650,000 | BUY | 6 / 10 | 0.00 KM |
| Hope Street, Cambridge | £ 550,000 | BUY | Unknown | 0.12 KM |
| Corrie Road, Cambridge | £ 275,000 | BUY | 7 / 10 | 0.14 KM |
| Cockburn Street, Cambridge | £ 425,000 | BUY | 6 / 10 | 0.14 KM |
| Argyle Street, Cambridge | £ 600,000 | BUY | 6 / 10 | 0.14 KM |
Nearby Properties
| Address | Price | Distance |
|---|---|---|
| 60 Greville Road | £ 470,000 | 0.02 KM |
| 58 Greville Road | £ 300,000 | 0.02 KM |
| 24 Greville Road | £ 620,000 | 0.02 KM |
| 80 Greville Road | £ 790,000 | 0.02 KM |
| 72 Greville Road | £ 447,000 | 0.02 KM |