Edgewood Mews, Finchley Central, London, N3
By Foxtons
£ 650,000
Reviews
3 out of 5 stars
Foxtons says ..
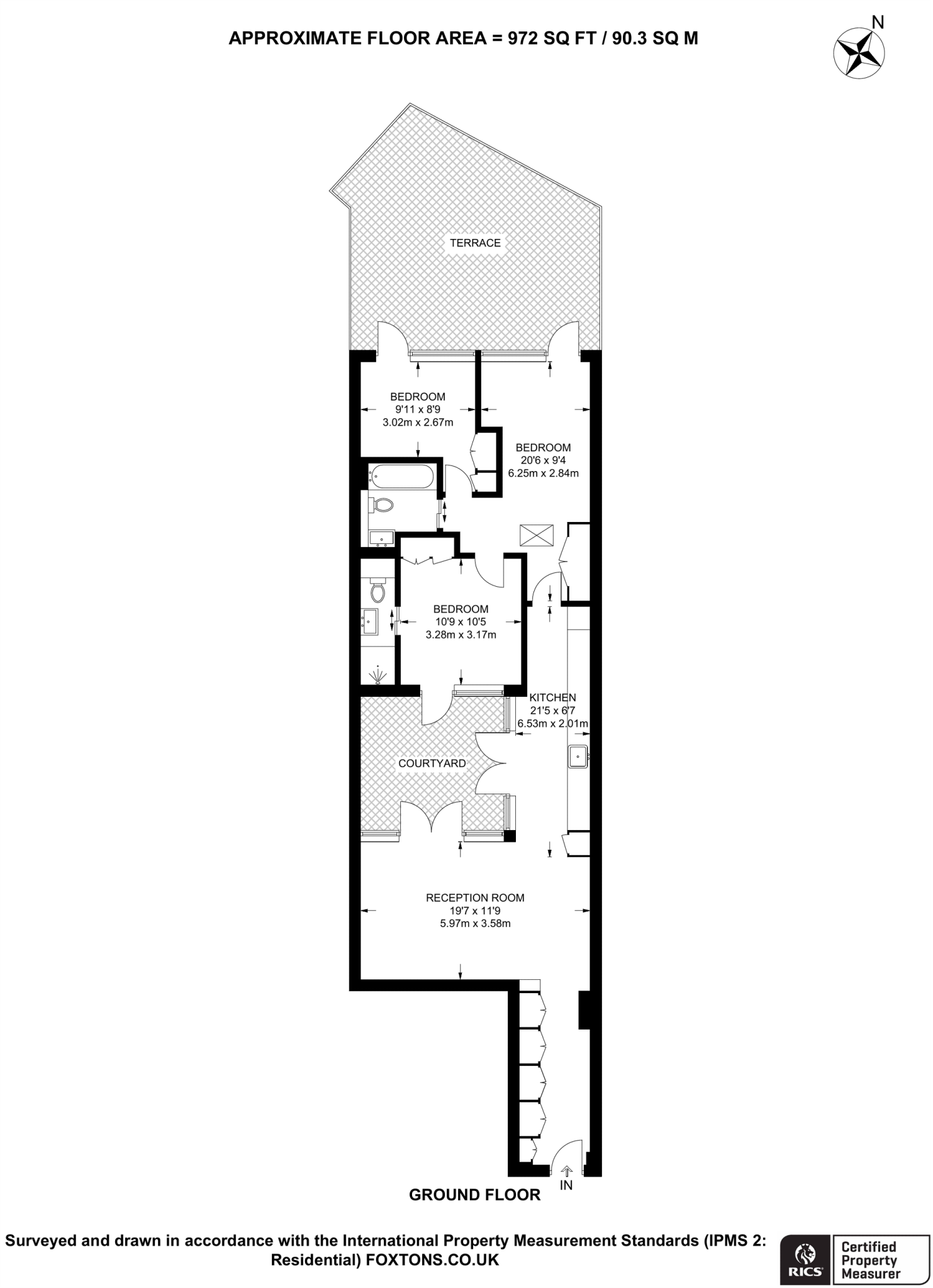
This contemporary 2 bedroom lateral flat with courtyard and private terrace is located within the striking Edgewood Mews development, a stunning brick-built neighbourhood close to Temple Fortune and Finchley.
Property Oracle says ..
This two-bedroom flat in Edgewood Mews, Finchley Central, presents as a modern and well-maintained property. The interior is finished to a high standard with a contemporary aesthetic. The images showcase a bright, spacious living area with access to a private courtyard – a valuable feature in a densely populated area like London. The kitchen and bathrooms appear modern and functional, suggesting recent upgrades. While the flat benefits from being in a desirable North London location with good schools nearby, the relatively limited outdoor space is a point to note. The property’s location, a few kilometers from various transport options, provides reasonable access to commuting routes. The price seems to be in line with comparable properties in the area, although more detailed local pricing data would be required for a conclusive assessment. In summary, this property offers a modern, comfortable living space in a convenient area, but prospective buyers should be aware of the limited outdoor space.
Therefore, we give this property 6 / 10. *Disclaimer: This is our option and does constitute a recommendation or financial advice. Do your own research. *
- Price
- 7
- Condition
- 8
- Location
- 7
- Land
- 4
- Bedrooms
- 2
- Bathrooms
- 2
- Sqft (est)
- 971.98
The heatmap indicates the level of crime in the area. The color of the heatmap indicates the crime severity and recency.
Metrics Year-on-Year
- Average area value
- 1,216,667.00 £Increased by 18.81 %
- Est sale value
- 941,848.62 £Increased by 46.37 %
- Average area rental value
- 2,646.00 £/moIncreased by 2.16 %
- Est letting value
- 1,943.96 £/moIncreased by 100.00 %
- Est rental Yield
- 2.61 %Decreased by 13.86 %
- Crime Rate
- 6.00 %Unchanged by 0.00 %
Agent Activity
Foxtons created the listing.
Nearby Schools
| Name | Type | Ofsted | Distance |
|---|---|---|---|
| Garden Suburb Infant School | Community School | Good | 0.60 KM |
| Garden Suburb Junior School | Community School | Good | 0.60 KM |
| Brookland Junior School | Community School | Outstanding | 0.76 KM |
| Brookland Infant And Nursery School | Community School | Outstanding | 0.76 KM |
| Christ'S College Finchley | Academy Converter | Good | 0.89 KM |
Images
Nearby Streets
| Name | Average Price | Average Sqft | Distance |
|---|---|---|---|
| Monkville Avenue | £ 0 | 0 | 0.00 KM |
| Alberon Gardens | £ 750,000 | 0 | 0.00 KM |
| Eger Close | £ 374,975 | 0 | 0.00 KM |
| Anatoolpad | £ 0 | 0 | 0.00 KM |
| Hendon Park Row | £ 0 | 0 | 0.00 KM |
Nearby Transport
| Name | NLC | TLC | Distance |
|---|---|---|---|
| Cricklewood | 1519 | CRI | 3.99 KM |
| Finchley Road And Frognal | 1445 | FNY | 4.60 KM |
| West Hampstead Thameslink | 1525 | WHP | 4.62 KM |
| West Hampstead | 1421 | WHD | 4.74 KM |
| Hendon | 1522 | HEN | 4.93 KM |
Nearby Listings
| Address | Price | Type | Score | Distance |
|---|---|---|---|---|
| Edgewood Mews, Finchley Central, London, N3 | £ 650,000 | BUY | 6 / 10 | 0.00 KM |
| Edgewood Mews, Finchley | £ 550,000 | BUY | 6 / 10 | 0.04 KM |
| Edgewood Mews, Finchley, N3 | £ 600,000 | BUY | 7 / 10 | 0.04 KM |
| Edgewood Mews, London, N3 | £ 540,000 | BUY | 6 / 10 | 0.06 KM |
| Plot 17J The London Mews | £ 700,000 | BUY | 6 / 10 | 0.09 KM |
Nearby Properties
| Address | Price | Distance |
|---|---|---|
| 132 Beaufort Park | £ 120,000 | 0.07 KM |
| 105 Beaufort Park | £ 320,000 | 0.07 KM |
| 106 Beaufort Park | £ 460,000 | 0.07 KM |
| 111 Beaufort Park | £ 250,000 | 0.07 KM |
| 107 Beaufort Park | £ 215,000 | 0.07 KM |