Yopa says ..
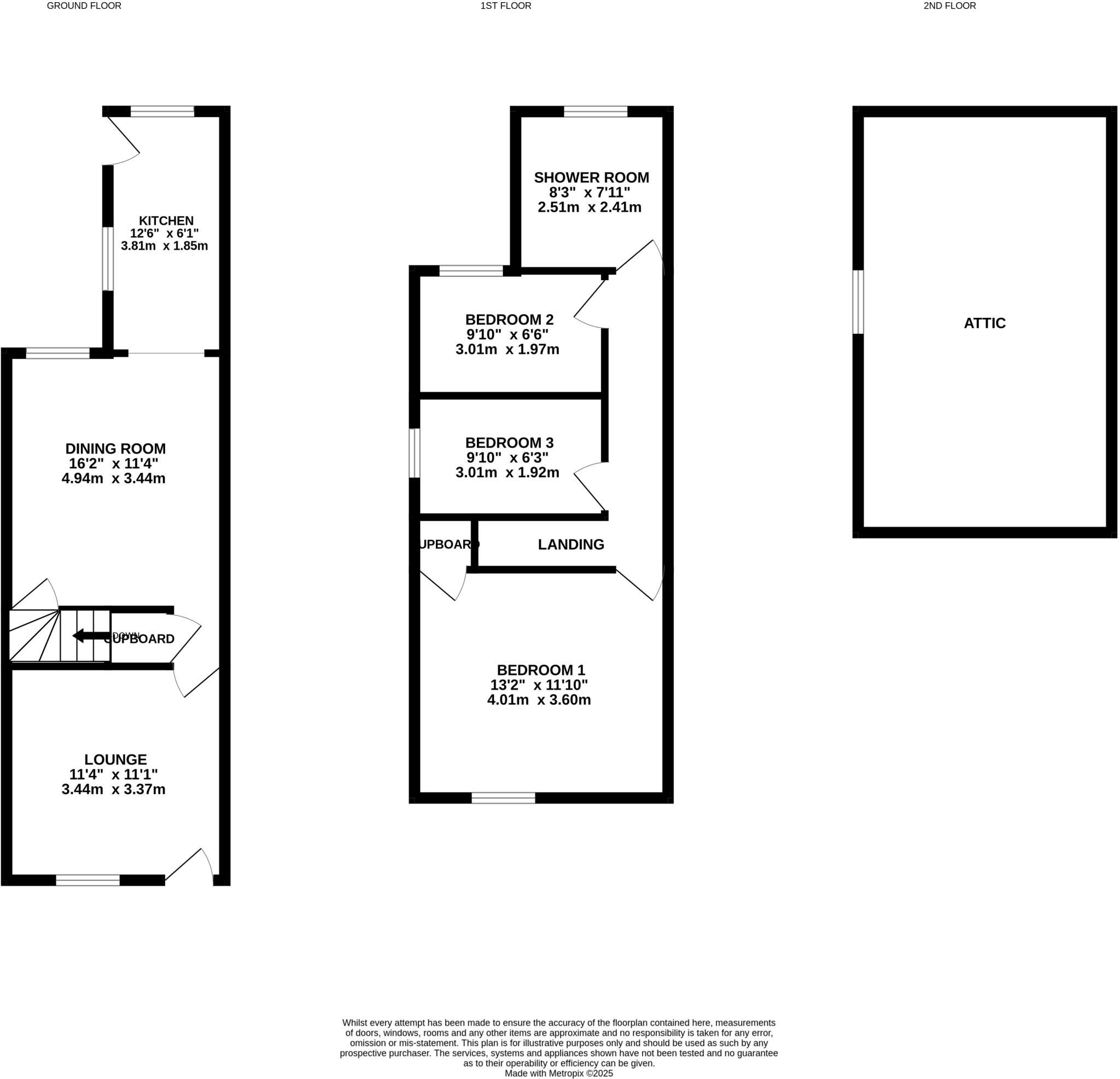
OFFERED WITH NO CHAIN IS THIS RENOVATION OPPORTUNITY IN DERBY CITY CENTRE. Having two reception rooms, generous sized kitchen, formerly a two bedroom property but currently offering three bedrooms and private rear garden. Walking distance to all amenities within the city centre.
Property Oracle says ..
This end-of-terrace property on Great Northern Road in Derby presents a renovation opportunity. While the location offers convenient access to schools and transportation, the property’s condition requires significant investment to modernize. The presence of a garden is a plus, but it needs landscaping. The asking price of £130,000 reflects the property’s condition, making it an attractive option for buyers willing to undertake a renovation project. The property is an end of terrace.
Therefore, we give this property 5 / 10. *Disclaimer: This is our option and does constitute a recommendation or financial advice. Do your own research. *
- Price
- 7
- Condition
- 4
- Location
- 6
- Land
- 6
- Bedrooms
- 2
- Bathrooms
- 1
- Sqft (est)
- 824.00
The heatmap indicates the level of crime in the area. The color of the heatmap indicates the crime severity and recency.
Metrics Year-on-Year
- Average area value
- 350,323.00 £Decreased by 1.18 %
- Est sale value
- 355,144.00 £Increased by 20.73 %
- Average area rental value
- 1,334.00 £/moDecreased by 2.49 %
- Est letting value
- 824.00 £/moUnchanged by 0.00 %
- Est rental Yield
- 4.57 %Decreased by 1.30 %
- Crime Rate
- 2.00 %Unchanged by 0.00 %
Agent Activity
Yopa created the listing.
Nearby Schools
| Name | Type | Ofsted | Distance |
|---|---|---|---|
| Derby Cathedral School | Free Schools | 0.22 KM | |
| Ashgate Nursery School | Local Authority Nursery School | Good | 0.40 KM |
| Jasmine Hall School | Other Independent Special School | 0.57 KM | |
| Ashgate Primary School | Community School | Good | 0.65 KM |
| Firs Primary School | Academy Sponsor Led | 0.87 KM |
Images
Nearby Streets
| Name | Average Price | Average Sqft | Distance |
|---|---|---|---|
| Stepping Close | £ 0 | 0 | 0.00 KM |
| Boundary Road | £ 140,000 | 0 | 0.00 KM |
| Freehold Street | £ 175,000 | 0 | 0.00 KM |
| Percy Street | £ 0 | 0 | 0.00 KM |
| Summerbrook Court | £ 120,000 | 0 | 0.00 KM |
Nearby Transport
| Name | NLC | TLC | Distance |
|---|---|---|---|
| Derby | 1823 | DBY | 3.41 KM |
| Peartree | 1687 | PEA | 3.48 KM |
| Duffield | 1691 | DFI | 7.60 KM |
| Spondon | 1699 | SPO | 9.21 KM |
Nearby Listings
| Address | Price | Type | Score | Distance |
|---|---|---|---|---|
| Great Northern Road, Derby, DE1 | £ 130,000 | BUY | 5 / 10 | 0.00 KM |
| College Mews, Great Northern Road, Derby | £ 180,000 | BUY | 7 / 10 | 0.03 KM |
| Great Northern Road, Derby | £ 190,000 | BUY | 6 / 10 | 0.08 KM |
| 166 Uttoxeter New Road, Derby DE22 3JB | £ 225,000 | BUY | Unknown | 0.14 KM |
| Sudbury Street, Derby, Derbyshire, DE1 | £ 180,000 | BUY | 7 / 10 | 0.19 KM |
Nearby Properties
| Address | Price | Distance |
|---|---|---|
| 56 Great Northern Road | £ 75,000 | 0.01 KM |
| 57 Great Northern Road | £ 109,000 | 0.01 KM |
| 66 Great Northern Road | £ 82,550 | 0.01 KM |
| 63 Great Northern Road | £ 175,000 | 0.01 KM |
| 60 Great Northern Road | £ 108,000 | 0.01 KM |