TO
Green Street, Eastbourne
By Town Property/Town Flats/Town Rentals
£ 525,000
Reviews
3 out of 5 stars
Town Property/Town Flats/Town Rentals says ..
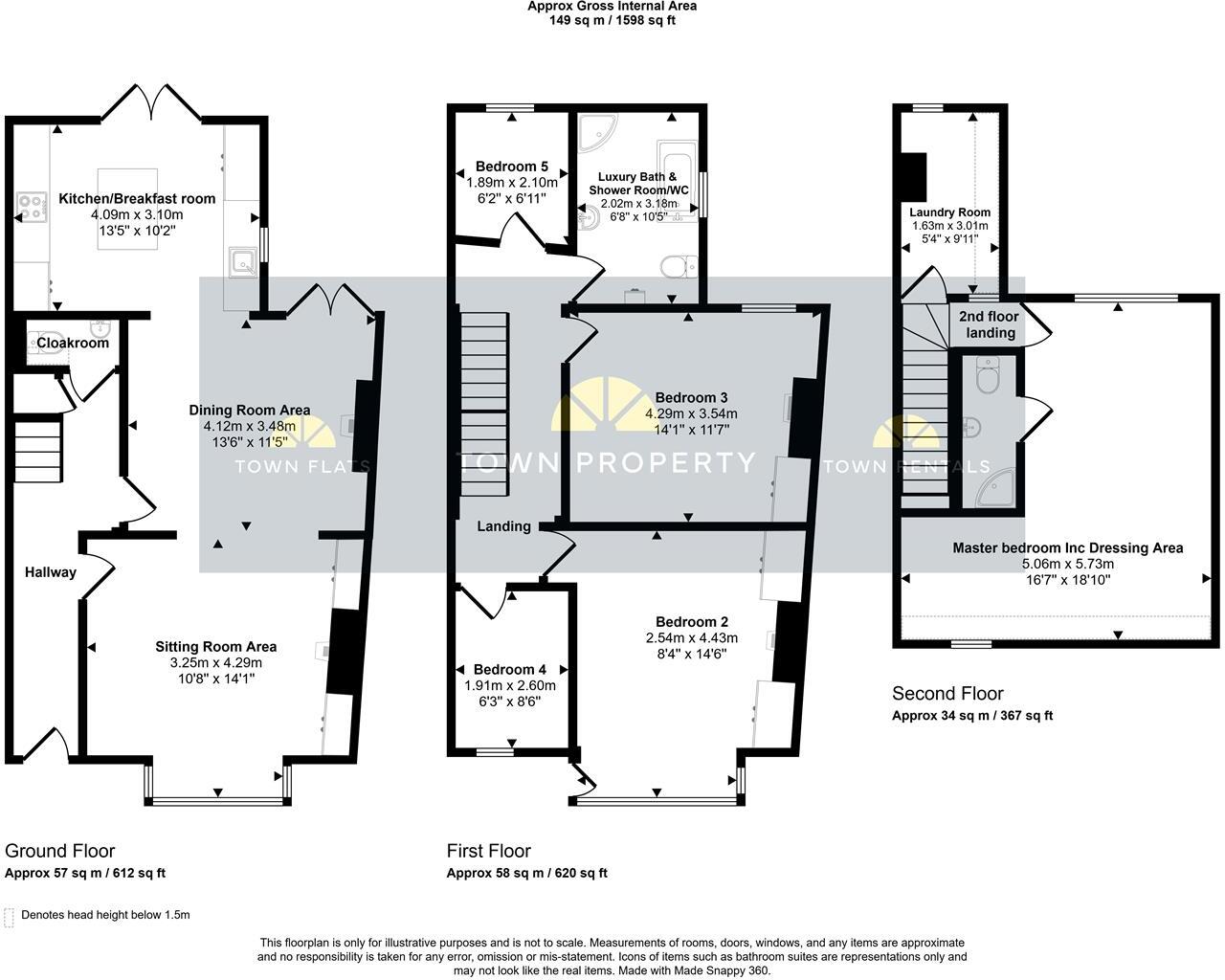
A truly exceptional period home in Old Town. Undoubtedly one of the finest period properties we’ve had the pleasure to present, this stunning end of terrace residence in Old Town has undergone an extensive and beautifully executed renovation. Offering five generously sized bedrooms, the home is d...
Property Oracle says ..
Therefore, we give this property 6 / 10. *Disclaimer: This is our option and does constitute a recommendation or financial advice. Do your own research. *
- Price
- 4
- Condition
- 8
- Location
- 7
- Land
- 6
- Bedrooms
- 5
- Bathrooms
- 2
The heatmap indicates the level of crime in the area. The color of the heatmap indicates the crime severity and recency.
Metrics Year-on-Year
- Average area value
- 364,023.00 £Increased by 8.60 %
- Average area rental value
- 1,137.00 £/moDecreased by 2.15 %
- Est rental Yield
- 3.75 %Decreased by 9.86 %
- Crime Rate
- 8.00 %Unchanged by 0.00 %
from 335,191.00 £
from 1,162.00 £/mo
from 4.16 %
from 8.00 %
Agent Activity
Town Property/Town Flats/Town Rentals created the listing.
Nearby Schools
| Name | Type | Ofsted | Distance |
|---|---|---|---|
| Motcombe Infants' School | Community School | Good | 0.41 KM |
| The Cavendish School | Academy Converter | Good | 0.55 KM |
| The South Downs School | Academy Special Converter | Outstanding | 0.55 KM |
| Pashley Down Infant School | Community School | Good | 0.76 KM |
| Ocklynge Junior School | Academy Sponsor Led | 1.06 KM |
Images
Nearby Streets
| Name | Average Price | Average Sqft | Distance |
|---|---|---|---|
| Wessex Place | £ 0 | 0 | 0.00 KM |
| Upwick Mews | £ 499,950 | 0 | 0.00 KM |
| Vicarage Lane | £ 365,000 | 0 | 0.00 KM |
| Cavalry Crescent | £ 0 | 0 | 0.00 KM |
| Church Lane | £ 0 | 0 | 0.00 KM |
Nearby Transport
| Name | NLC | TLC | Distance |
|---|---|---|---|
| Eastbourne | 5448 | EBN | 2.75 KM |
| Hampden Park (Sussex) | 5450 | HMD | 3.28 KM |
| Polegate | 5455 | PLG | 5.15 KM |
| Pevensey And Westham | 5461 | PEV | 8.64 KM |
Nearby Listings
| Address | Price | Type | Score | Distance |
|---|---|---|---|---|
| Green Street, Eastbourne | £ 525,000 | BUY | 6 / 10 | 0.00 KM |
| Green Street, Eastbourne | £ 450,000 | BUY | 7 / 10 | 0.01 KM |
| Green Street, Old Town, Eastbourne, BN21 | £ 115,000 | BUY | 8 / 10 | 0.08 KM |
| Green Street, Old Town, Eastbourne, East Sussex, BN21 | £ 115,000 | BUY | 7 / 10 | 0.08 KM |
| Birling Street, Eastbourne, East Sussex, BN21 | £ 325,000 | BUY | 7 / 10 | 0.11 KM |
Nearby Properties
| Address | Price | Distance |
|---|---|---|
| 129 Green Street | £ 189,950 | 0.01 KM |
| 119 Green Street | £ 342,500 | 0.01 KM |
| 123 Green Street | £ 196,000 | 0.01 KM |
| 131 Green Street | £ 249,950 | 0.01 KM |
| 125 Green Street | £ 445,000 | 0.01 KM |