Ranelagh Road, Redhill
By Robert Leech Estate Agents
£ 695,000
Reviews
3 out of 5 stars
Robert Leech Estate Agents says ..
One of three fantastic new build properties on Ranelagh Road, a highly sought after location due to its convenience for both Reigate and Redhill town centres, Redhill train station, and many of the local schools. The property benefits from off road parking, air conditioning, 10 year new ...
Property Oracle says ..
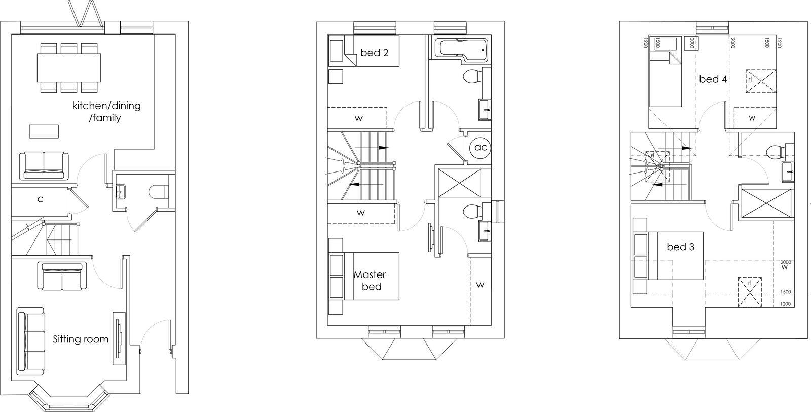
This end-of-terrace property on Shrewsbury Road, Redhill, offers a substantial living space of 1,710 sqft, featuring four bedrooms and three bathrooms. The property’s modern design and excellent condition are evident in the images, showcasing a recently renovated interior with contemporary fixtures and fittings. The presence of a garden adds to its appeal, providing outdoor space. Located in a well-connected area, the house is within proximity to local schools and transportation links, with Earlswood and Redhill train stations approximately 1.5km away. While the asking price of £695,000 is higher than the local average, the property’s size, condition, and modern amenities justify the premium. The price per square foot is significantly below the local average.
Therefore, we give this property 7 / 10. *Disclaimer: This is our option and does constitute a recommendation or financial advice. Do your own research. *
- Price
- 7
- Condition
- 9
- Location
- 7
- Land
- 6
- Bedrooms
- 4
- Bathrooms
- 3
- Sqft (est)
- 1,710.00
The heatmap indicates the level of crime in the area. The color of the heatmap indicates the crime severity and recency.
Metrics Year-on-Year
- Average area value
- 611,111.00 £Decreased by 6.31 %
- Est sale value
- 1,279,080.00 £Increased by 38.26 %
- Average area rental value
- 1,850.00 £/moIncreased by 3.24 %
- Est letting value
- 3,420.00 £/moIncreased by 100.00 %
- Est rental Yield
- 3.63 %Increased by 10.00 %
- Crime Rate
- 12.00 %Unchanged by 0.00 %
Agent Activity
Robert Leech Estate Agents created the listing.
Nearby Schools
| Name | Type | Ofsted | Distance |
|---|---|---|---|
| Hatchlands Primary | Free Schools | 0.26 KM | |
| St Joseph'S Catholic Primary School, Redhill | Voluntary Aided School | Good | 0.52 KM |
| Wray Common Primary School | Academy Converter | 0.66 KM | |
| Dunottar School | Other Independent School | 0.91 KM | |
| St John'S Primary School | Academy Converter | 0.93 KM |
Images
Nearby Streets
| Name | Average Price | Average Sqft | Distance |
|---|---|---|---|
| Linkfield Corner (Refell's Bridge) | £ 0 | 0 | 0.00 KM |
| Radnor Court | £ 0 | 0 | 0.00 KM |
| Millway | £ 1,850,000 | 0 | 0.00 KM |
| Highlands Road | £ 2,450,000 | 0 | 0.00 KM |
| Ridgeway Court | £ 270,000 | 0 | 0.00 KM |
Nearby Transport
| Name | NLC | TLC | Distance |
|---|---|---|---|
| Earlswood (Surrey) | 5414 | ELD | 1.53 KM |
| Redhill | 5478 | RDH | 1.56 KM |
| Reigate | 5480 | REI | 2.70 KM |
| Merstham | 5475 | MHM | 4.40 KM |
| Salfords (Surrey) | 5380 | SAF | 4.44 KM |
Nearby Listings
| Address | Price | Type | Score | Distance |
|---|---|---|---|---|
| JUST LAUNCHED - The Showhome at Ranelagh Mews | £ 895,000 | BUY | 7 / 10 | 0.00 KM |
| Ranelagh Road, Redhill | £ 695,000 | BUY | 7 / 10 | 0.00 KM |
| Coming Soon - Ranelagh Mews, Redhill | £ 775,000 | BUY | 7 / 10 | 0.00 KM |
| Shrewsbury Road, RH1 | £ 835,000 | BUY | 7 / 10 | 0.00 KM |
| Ranelagh Road, Redhill | £ 650,000 | BUY | 7 / 10 | 0.04 KM |
Nearby Properties
| Address | Price | Distance |
|---|---|---|
| 32 Shrewsbury Road | £ 565,000 | 0.01 KM |
| 36 Shrewsbury Road | £ 615,000 | 0.01 KM |
| 24 Shrewsbury Road | £ 440,000 | 0.01 KM |
| 10 Shrewsbury Road | £ 630,000 | 0.01 KM |
| 16 Shrewsbury Road | £ 657,000 | 0.01 KM |