Dunholme Road, Edmonton
By Castles Estate Agents
£ 475,000
Reviews
2 out of 5 stars
Castles Estate Agents says ..
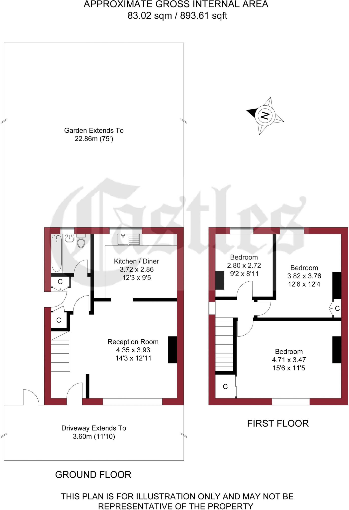
A three bedroom semi detached property situated within 1/4 mile of Pymmes Park and Latymer School. The property comprises of Reception, kitchen/diner and bathroom to ground floor, with a further three bedrooms to first floor, It also has features to include: 75ft rear garden, gas central heating...
Property Oracle says ..
This three-bedroom semi-detached house on Dunholme Road, Edmonton, offers a comfortable family home with potential for improvement. The property is conveniently located near Edmonton Green station, providing easy access to central London via the Overground. The surrounding area benefits from several schools, including well-regarded primary and secondary options. The interior of the house, as shown in the photos, is in fair condition but would benefit from modernisation. The kitchen and bathroom, in particular, appear dated. The garden is present but needs some landscaping and maintenance. The property’s list price of £475,000 seems relatively fair, considering comparable properties in the area and the property’s size, although a precise price-per-square-foot comparison is hindered by the lack of detailed information on nearby properties. Potential buyers should factor in the cost of renovations and improvements when making their offer. Overall, this property is a decent investment with potential for capital appreciation once upgraded.
Therefore, we give this property 5 / 10. *Disclaimer: This is our option and does constitute a recommendation or financial advice. Do your own research. *
- Price
- 7
- Condition
- 5
- Location
- 7
- Land
- 3
- Bedrooms
- 3
- Bathrooms
- 1
- Sqft (est)
- 893.62
The heatmap indicates the level of crime in the area. The color of the heatmap indicates the crime severity and recency.
Metrics Year-on-Year
- Average area value
- 341,429.00 £Increased by 11.44 %
- Est sale value
- 428,043.98 £Increased by 10.88 %
- Average area rental value
- 1,969.00 £/moIncreased by 14.41 %
- Est letting value
- 1,787.24 £/moUnchanged by 0.00 %
- Est rental Yield
- 6.92 %Increased by 2.67 %
- Crime Rate
- 3.00 %Unchanged by 0.00 %
Agent Activity
Castles Estate Agents created the listing.
Nearby Schools
| Name | Type | Ofsted | Distance |
|---|---|---|---|
| Latymer All Saints Cofe Primary School | Voluntary Aided School | Good | 0.26 KM |
| The Latymer School | Voluntary Aided School | Outstanding | 0.66 KM |
| Hazelbury Children'S Centre | Children's Centre | 0.70 KM | |
| Hazelbury Primary School | Academy Converter | Good | 0.75 KM |
| Churchfield Primary School | Academy Converter | 0.76 KM |
Images
Nearby Streets
| Name | Average Price | Average Sqft | Distance |
|---|---|---|---|
| Briary Lane | £ 525,000 | 0 | 0.00 KM |
| Maldon Road | £ 0 | 0 | 0.00 KM |
| Warriner Drive | £ 230,000 | 0 | 0.00 KM |
| Wimborne Road | £ 0 | 0 | 0.00 KM |
| West Mall | £ 280,000 | 0 | 0.00 KM |
Nearby Transport
| Name | NLC | TLC | Distance |
|---|---|---|---|
| Edmonton Green | 6941 | EDR | 0.87 KM |
| Silver Street | 6972 | SLV | 0.99 KM |
| Bush Hill Park | 6913 | BHK | 2.02 KM |
| White Hart Lane | 6956 | WHL | 2.06 KM |
| Angel Road | 6909 | AGR | 2.53 KM |
Nearby Listings
| Address | Price | Type | Score | Distance |
|---|---|---|---|---|
| Dunholme Road, Edmonton | £ 475,000 | BUY | 5 / 10 | 0.00 KM |
| Dunholme Road, Edmonton, N9 | £ 520,000 | BUY | Unknown | 0.09 KM |
| West Close, London, N9 | £ 295,000 | BUY | 6 / 10 | 0.13 KM |
| West Close, London, N9 | £ 285,000 | BUY | 7 / 10 | 0.18 KM |
| West Close, London, N9 | £ 295,000 | BUY | 5 / 10 | 0.18 KM |
Nearby Properties
| Address | Price | Distance |
|---|---|---|
| 51 Dunholme Road | £ 430,000 | 0.01 KM |
| 49 Dunholme Road | £ 390,000 | 0.01 KM |
| 59 Dunholme Road | £ 250,000 | 0.01 KM |
| 67 Dunholme Road | £ 340,000 | 0.01 KM |
| 56a Dunholme Road | £ 132,500 | 0.05 KM |