Pendas Park, Penley.
Halls Estate Agents logo

Pendas Park, Penley.

By Halls Estate Agents

£ 195,000

Reviews

4 out of 5 stars

Halls Estate Agents says ..

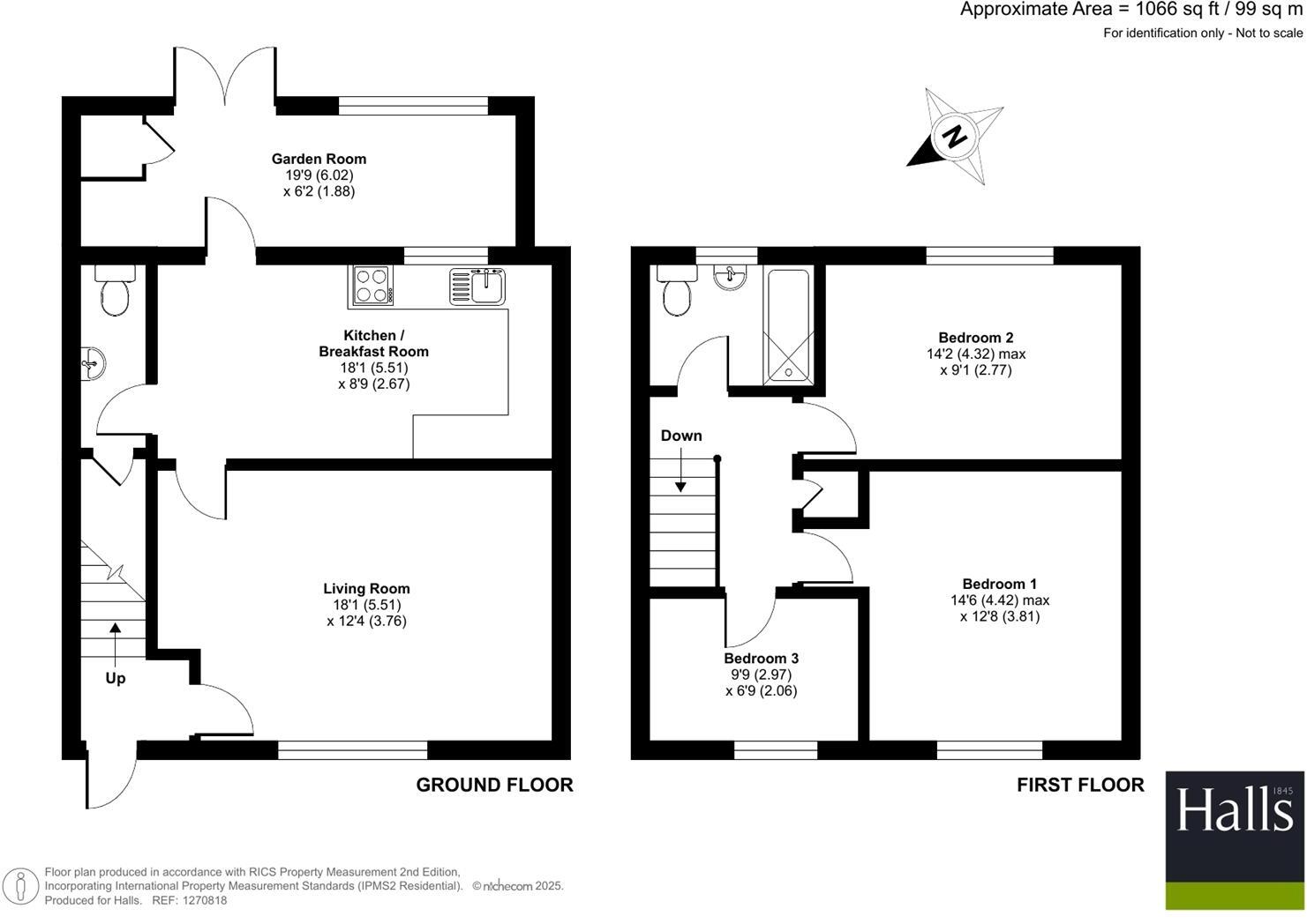
An extended and very smartly presented three-bedroom family home boasting front and rear gardens, stylishly appointed living accommodation, and open green space to the fore, pleasingly situated within a popular development in the village of Penley.

Property Oracle says ..

This three-bedroom terraced house in Pendas Park, Penley is located close to local schools, including The Maelor School (0.22km) and Madras Primary School (1.04km). The property itself appears to be in good condition, with recent renovations or updates evident in the kitchen and bathroom. Images show a modern, well-maintained interior and a nicely landscaped garden. The list price of £195,000 is slightly below the average price of £228,440 for the area, and considering the property’s condition and the inclusion of a garden, it could represent good value. However, a direct comparison is difficult due to the lack of square footage data for comparable properties. The property benefits from a conservatory and a garden shed, adding to its appeal.

Therefore, we give this property 8 / 10. *Disclaimer: This is our option and does constitute a recommendation or financial advice. Do your own research. *

Price
8
Condition
9
Location
8
Land
7
Bedrooms
3
Bathrooms
1
Sqft (est)
1,066.00

The heatmap indicates the level of crime in the area. The color of the heatmap indicates the crime severity and recency.

Metrics Year-on-Year

Average area value
356,495.00 £
Increased by 22.65 %
from 290,659.00 £
Est sale value
299,546.00 £
Decreased by 11.08 %
from 336,856.00 £
Average area rental value
1,098.00 £/mo
Increased by 54.65 %
from 710.00 £/mo
Est letting value
0.00 £/mo
from 0.00 £/mo
Est rental Yield
3.70 %
Increased by 26.28 %
from 2.93 %
Crime Rate
416.00 %
Unchanged by 0.00 %
from 416.00 %

Agent Activity

  • Halls Estate Agents created the listing.

Nearby Schools

NameTypeOfstedDistance
The Maelor SchoolWelsh Establishment0.22 KM
Madras Primary SchoolWelsh Establishment1.04 KM
Borderbrook SchoolWelsh Establishment5.25 KM
Welshampton Cofe Primary SchoolVoluntary Controlled SchoolOutstanding5.50 KM
St Chad'S Church In Wales Voluntary Aided Primary SchoolWelsh Establishment5.85 KM

Images

1270818 (1).JPG 1270818 (16).JPG 1270818 (6).JPG 1270818 (9).JPG 1270818 (12).JPG 1270818 (2).JPG 1270818 (17).JPG 1270818 (10).JPG 1270818 (5).JPG 1270818 (3).JPG 1270818 (14).JPG

Nearby Streets

NameAverage PriceAverage SqftDistance
Green Farm Court £ 000.00 KM

Nearby Listings

AddressPriceTypeScoreDistance
Pendas Park, Penley. £ 195,000BUY8 / 100.00 KM
Pendas Park, Penley. £ 159,995BUY6 / 100.00 KM
Pendas Park, Penley, Wrexham, LL13 £ 100,000BUY5 / 100.01 KM
Lane End, Wrexham £ 150,000BUY5 / 100.11 KM
Oakwood Park, Penley. £ 240,000BUY7 / 100.13 KM

Nearby Properties

AddressPriceDistance
33 Pendas Park £ 45,0000.01 KM
32 Pendas Park £ 130,0000.01 KM
24 Pendas Park £ 170,0000.01 KM
29 Pendas Park £ 100,0000.01 KM
3 Pendas Park £ 71,5000.01 KM