AB
Kilburn Lane, Kensal Rise, W10
By Abacus Estates
£ 425,000
Abacus Estates says ..
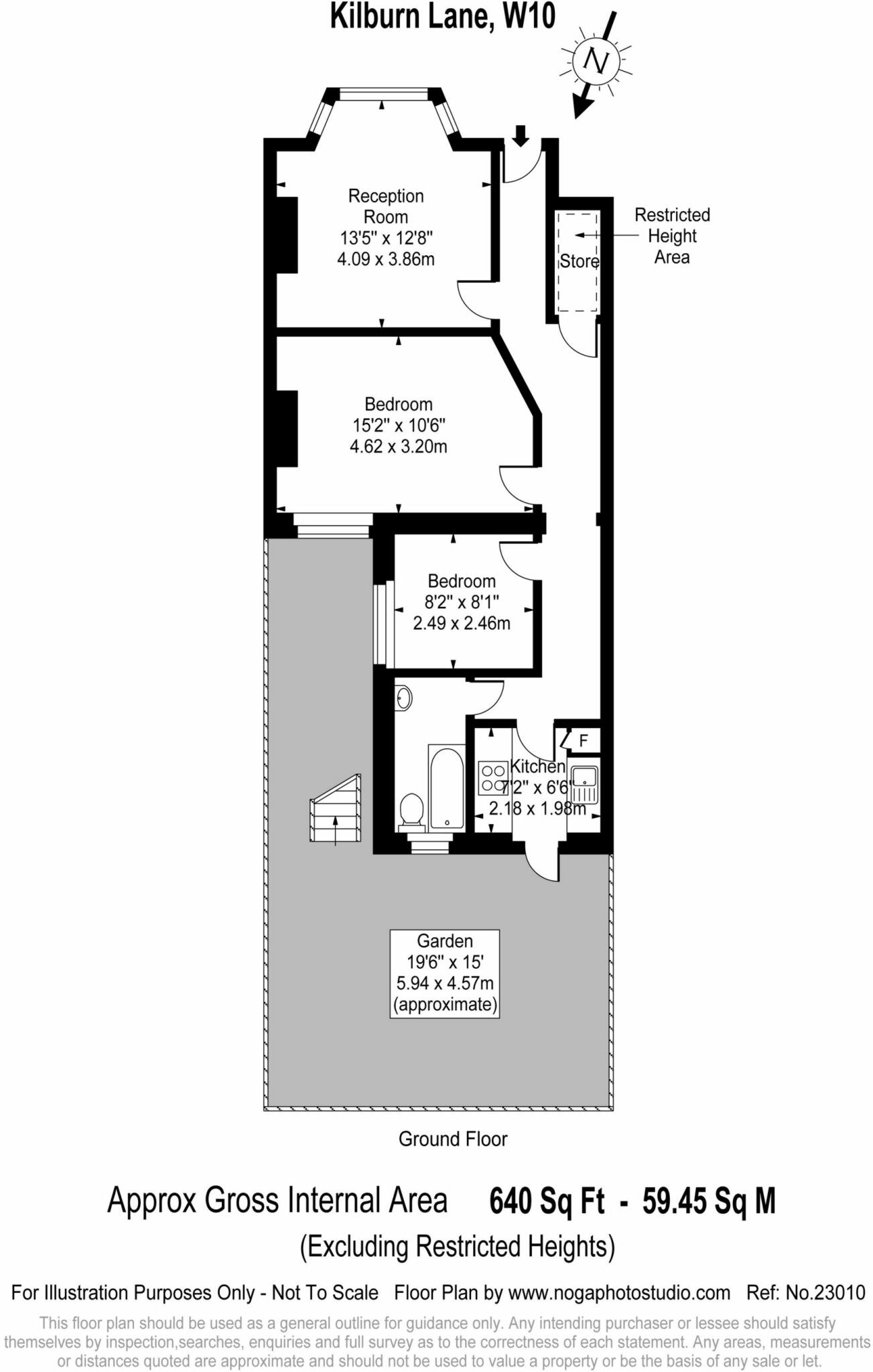
A neat and tidy 2 bedroom garden flat set on the ground floor of this purpose built maisonette. Occupying 640 SQFT and boasting its own entrance, a shared garden, modern kitchen & bathroom and no chain. Located within close proximity to Chamberlayne Road and Salusbury Road with their selectio...
- Bedrooms
- 2
- Bathrooms
- 1
The heatmap indicates the level of crime in the area. The color of the heatmap indicates the crime severity and recency.
Metrics Year-on-Year
- Average area value
- 392,498.00 £Decreased by 19.21 %
- Average area rental value
- 1,784.00 £/moDecreased by 5.61 %
- Est rental Yield
- 5.45 %Increased by 16.70 %
- Crime Rate
- 6.00 %Unchanged by 0.00 %
from 485,835.00 £
from 1,890.00 £/mo
from 4.67 %
from 6.00 %
Agent Activity
Abacus Estates created the listing.
Nearby Schools
| Name | Type | Ofsted | Distance |
|---|---|---|---|
| Bales College | Other Independent School | 0.38 KM | |
| Ark Franklin Primary Academy | Academy Sponsor Led | Good | 0.40 KM |
| Wilberforce Primary | Academy Sponsor Led | Good | 0.67 KM |
| Ark Brunel Primary Academy | Academy Sponsor Led | Outstanding | 0.70 KM |
| Three Trees Children'S Centre | Children's Centre | 0.82 KM |
Images
Nearby Streets
| Name | Average Price | Average Sqft | Distance |
|---|---|---|---|
| Brunel Mews | £ 747,500 | 0 | 0.00 KM |
| Allington Road | £ 550,000 | 0 | 0.00 KM |
| Rowan Walk | £ 0 | 0 | 0.00 KM |
| Ladbroke Grove | £ 699,950 | 0 | 0.00 KM |
| Kensal Road | £ 475,000 | 0 | 0.00 KM |
Nearby Transport
| Name | NLC | TLC | Distance |
|---|---|---|---|
| Kensal Rise | 1448 | KNR | 0.71 KM |
| Queens Park (London) | 1419 | QPW | 1.05 KM |
| Brondesbury Park | 1438 | BSP | 1.10 KM |
| Kensal Green | 1447 | KNL | 1.21 KM |
| Brondesbury | 1437 | BSY | 2.00 KM |
Nearby Listings
| Address | Price | Type | Score | Distance |
|---|---|---|---|---|
| Kilburn Lane, Kensal Rise | £ 500,000 | BUY | 7 / 10 | 0.01 KM |
| Kilburn Lane, London, W10 | £ 375,000 | BUY | Unknown | 0.01 KM |
| Kilburn Lane, Kensal Rise, London, W10 | £ 675,000 | BUY | 6 / 10 | 0.01 KM |
| Kilburn Lane, Kensal Rise, London, W10 | £ 650,000 | BUY | 6 / 10 | 0.02 KM |
| Kilburn Lane, Kensal Rise | £ 499,000 | BUY | 6 / 10 | 0.02 KM |
Nearby Properties
| Address | Price | Distance |
|---|---|---|
| 95a Kilburn Lane | £ 547,500 | 0.01 KM |
| 131a Kilburn Lane | £ 115,000 | 0.01 KM |
| 109 Kilburn Lane | £ 380,000 | 0.01 KM |
| 129 Kilburn Lane | £ 67,000 | 0.01 KM |
| 125 Kilburn Lane | £ 195,000 | 0.01 KM |