Wharf Road, Whaley Bridge, High Peak
By Gascoigne Halman
£ 275,000
Reviews
3 out of 5 stars
Gascoigne Halman says ..
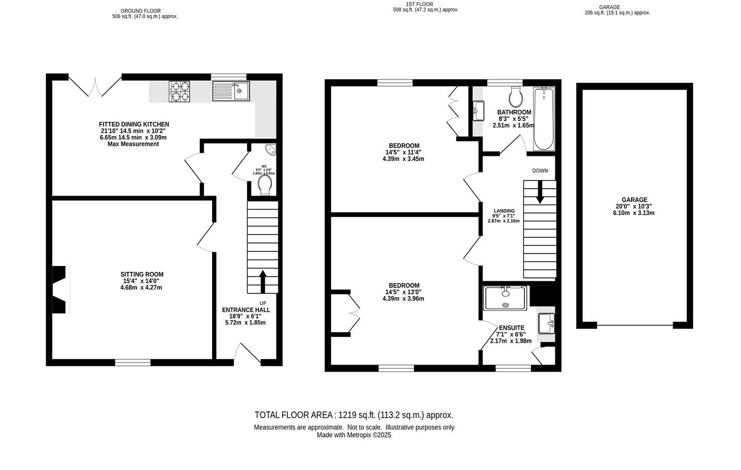
A MODERN STYLE MEWS PROPERTY located within a quiet backwater in Whaley Bridge. Offering surprisingly spacious accommodation with excellent living and dining kitchen spaces and TWO DOUBLE BEDROOMS and TWO bathrooms. The property has an enclosed garden to the rear and a DETACHED GARAGE.
Property Oracle says ..
This two-bedroom, two-bathroom terraced property in Whaley Bridge, Derbyshire, is presented as a modern style mews property located in a quiet area. The property offers surprisingly spacious accommodation with excellent living and dining kitchen spaces. The property benefits from an enclosed rear garden and a detached garage (this detail is important for buyers).
The photographs show a property that is generally clean and tidy. The decor is somewhat dated, with potential for modernising to increase appeal. The kitchen and bathrooms appear functional but could benefit from upgrades. The property’s condition appears to be good, with no obvious major structural problems.
The location in Whaley Bridge is a positive aspect, with proximity to local amenities and Whaley Bridge train station providing links to other areas. The nearby schools are a plus for families. However, the exact square footage of the property and comparable properties is not clearly provided, making a precise price per square foot analysis difficult.
Overall, this is a reasonably priced property in a convenient location suitable for a range of buyers. The size and layout will be appealing to many, but potential buyers should consider the property’s age and the potential for updating the interior decoration to match their tastes.
Therefore, we give this property 6 / 10. *Disclaimer: This is our option and does constitute a recommendation or financial advice. Do your own research. *
- Price
- 7
- Condition
- 6
- Location
- 7
- Land
- 4
- Bedrooms
- 2
- Bathrooms
- 2
- Sqft (est)
- 1,218.47
The heatmap indicates the level of crime in the area. The color of the heatmap indicates the crime severity and recency.
Metrics Year-on-Year
- Average area value
- 334,167.00 £Increased by 24.23 %
- Est sale value
- 313,146.79 £Decreased by 19.44 %
- Average area rental value
- 1,252.00 £/moIncreased by 4.33 %
- Est letting value
- 0.00 £/moDecreased by 100.00 %
- Est rental Yield
- 4.50 %Decreased by 15.89 %
- Crime Rate
- 54.00 %Unchanged by 0.00 %
Agent Activity
Gascoigne Halman created the listing.
Nearby Schools
| Name | Type | Ofsted | Distance |
|---|---|---|---|
| Whaley Bridge Primary School | Community School | Requires improvement | 0.18 KM |
| Taxal And Fernilee Cofe Primary School | Voluntary Controlled School | Good | 0.71 KM |
| Furness Vale Primary And Nursery School | Community School | Good | 2.25 KM |
| Buxworth Primary School | Community School | Good | 2.26 KM |
| Kettleshulme St James Cofe (Va) Primary School | Voluntary Aided School | Good | 4.11 KM |
Images
Nearby Streets
| Name | Average Price | Average Sqft | Distance |
|---|---|---|---|
| Williamson Crescent | £ 0 | 0 | 0.00 KM |
| Dale View | £ 602,500 | 0 | 0.00 KM |
| The Paddock | £ 235,000 | 0 | 0.00 KM |
| Overton Lane | £ 0 | 0 | 0.00 KM |
| Manor Road | £ 0 | 0 | 0.00 KM |
Nearby Transport
| Name | NLC | TLC | Distance |
|---|---|---|---|
| Whaley Bridge | 2772 | WBR | 0.22 KM |
| Furness Vale | 2952 | FNV | 2.31 KM |
| New Mills Newtown | 2769 | NMN | 4.34 KM |
| New Mills Central | 2974 | NMC | 4.66 KM |
| Chinley | 2823 | CLY | 4.75 KM |
Nearby Listings
| Address | Price | Type | Score | Distance |
|---|---|---|---|---|
| Wharf Road, Whaley Bridge, High Peak | £ 275,000 | BUY | 6 / 10 | 0.00 KM |
| Wharf Road, Whaley Bridge, SK23 | £ 45,000 | BUY | Unknown | 0.07 KM |
| Reservoir Road, Whaley Bridge, SK23 | £ 585,000 | BUY | 7 / 10 | 0.10 KM |
| Reservoir Road, Whaley Bridge, High Peak | £ 515,000 | BUY | 6 / 10 | 0.11 KM |
| Dickson Wharf, Wharf Road, Whaley Bridge, High Peak | £ 247,500 | BUY | 6 / 10 | 0.12 KM |
Nearby Properties
| Address | Price | Distance |
|---|---|---|
| 14 Wharf Road | £ 187,000 | 0.01 KM |
| 3 Wharf Road | £ 99,000 | 0.01 KM |
| 4 Wharf Road | £ 173,000 | 0.01 KM |
| 9 Wharf Road | £ 137,500 | 0.01 KM |
| 11 Wharf Road | £ 159,500 | 0.01 KM |