Maybury Close, Frimley, Camberley, Surrey, GU16
By Bridges Estate Agents
£ 180,000
Reviews
3 out of 5 stars
Bridges Estate Agents says ..
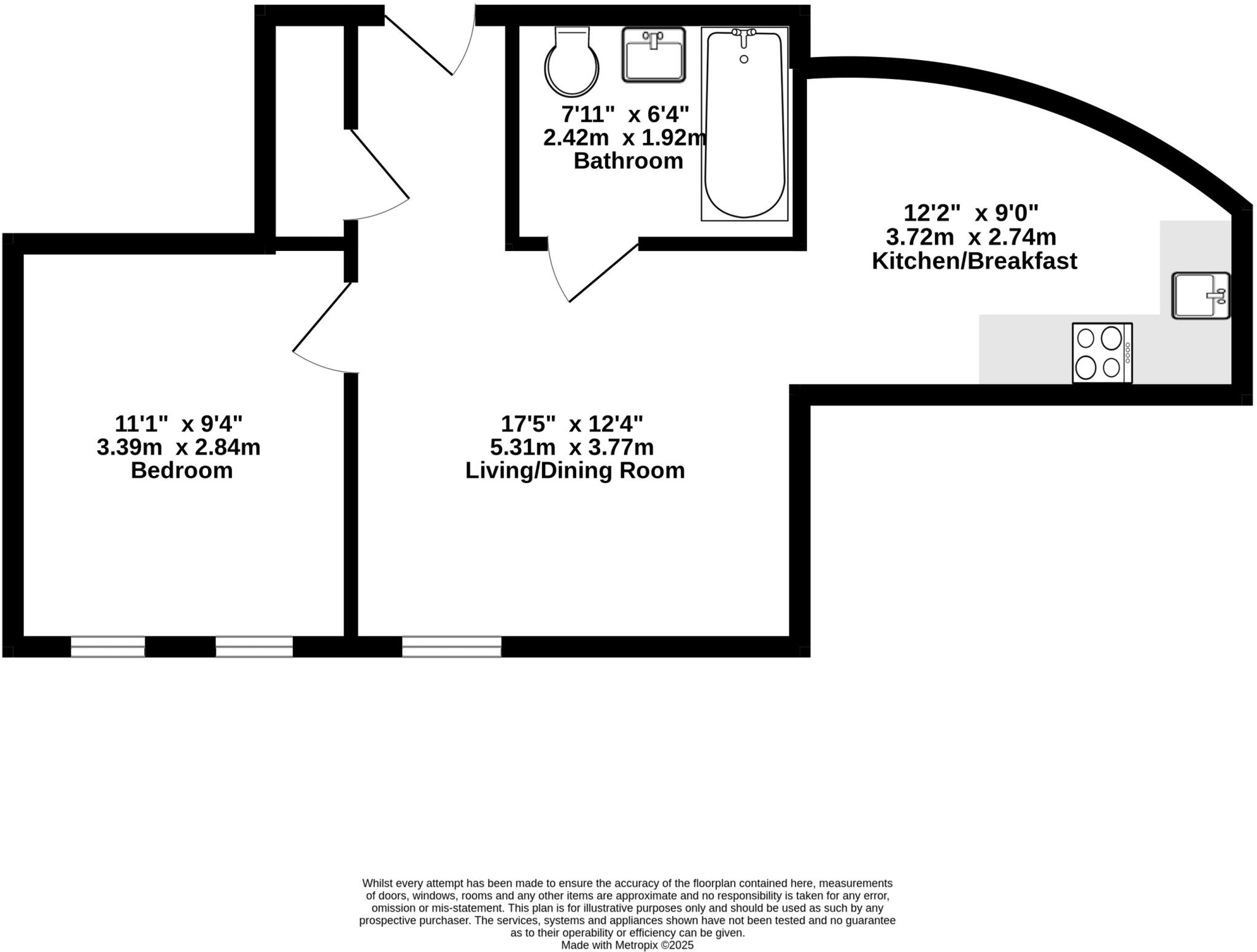
Converted and designed to a high specification, and located in the heart of Frimley, is this well presented one double bedroom second floor apartment set within the sought after Wyvern House development. The property is conveniently located within walking distance of local amenities and great com...
Property Oracle says ..
This is a one-bedroom flat in Frimley, Surrey. The property appears to be in good, modern condition, with a recently updated bathroom and kitchen. It is located close to transport links and schools. The asking price of £180,000 seems reasonable compared to the average property price in the area. The lack of private outdoor space might be a drawback for some buyers. Overall, this property presents a good opportunity for first-time buyers or investors.
Therefore, we give this property 6 / 10. *Disclaimer: This is our option and does constitute a recommendation or financial advice. Do your own research. *
- Price
- 8
- Condition
- 8
- Location
- 7
- Land
- 3
- Bedrooms
- 1
- Bathrooms
- 1
- Sqft (est)
- 478.78
The heatmap indicates the level of crime in the area. The color of the heatmap indicates the crime severity and recency.
Metrics Year-on-Year
- Average area value
- 362,500.00 £Decreased by 23.04 %
- Est sale value
- 194,863.46 £Increased by 10.00 %
- Average area rental value
- 2,625.00 £/moIncreased by 52.17 %
- Est letting value
- 957.56 £/moIncreased by 100.00 %
- Est rental Yield
- 8.69 %Increased by 97.95 %
- Crime Rate
- 14.00 %Unchanged by 0.00 %
Agent Activity
Bridges Estate Agents created the listing.
Nearby Schools
| Name | Type | Ofsted | Distance |
|---|---|---|---|
| Kings International College | Foundation School | Good | 1.14 KM |
| Henry Tyndale School | Community Special School | Outstanding | 1.24 KM |
| The Orchard Sure Start Children'S Centre | Children's Centre | 1.33 KM | |
| South Camberley Primary And Nursery School | Academy Converter | 1.36 KM | |
| The Sixth Form College Farnborough | Academy 16-19 Converter | Outstanding | 1.49 KM |
Images
Nearby Streets
| Name | Average Price | Average Sqft | Distance |
|---|---|---|---|
| Footpath 197 | £ 0 | 0 | 0.00 KM |
| Portsmouth Road | £ 562,500 | 0 | 0.00 KM |
| Gilbert Road Footpath | £ 0 | 0 | 0.00 KM |
| The Grove | £ 0 | 0 | 0.00 KM |
| Kirkby Court | £ 0 | 0 | 0.00 KM |
Nearby Transport
| Name | NLC | TLC | Distance |
|---|---|---|---|
| Frimley | 5683 | FML | 0.22 KM |
| Farnborough North | 5688 | FNN | 1.29 KM |
| Farnborough (Main) | 5521 | FNB | 2.17 KM |
| Camberley | 5682 | CAM | 2.56 KM |
| Blackwater | 5625 | BAW | 4.00 KM |
Nearby Listings
| Address | Price | Type | Score | Distance |
|---|---|---|---|---|
| Maybury Close, Frimley, Camberley, Surrey, GU16 | £ 180,000 | BUY | 6 / 10 | 0.00 KM |
| Maybury Close, Frimley, Camberley, Surrey, GU16 | £ 190,000 | BUY | 6 / 10 | 0.00 KM |
| High Street, Frimley, Camberley, Surrey, GU16 | £ 219,950 | BUY | 4 / 10 | 0.06 KM |
| The Close, Frimley, Camberley, Surrey, GU16 | £ 525,000 | BUY | 7 / 10 | 0.08 KM |
| Maybury Close, Frimley, Surrey, GU16 | £ 675,000 | BUY | Unknown | 0.09 KM |
Nearby Properties
| Address | Price | Distance |
|---|---|---|
| 64b Frimley High Street | £ 66,320 | 0.01 KM |
| 64a Frimley High Street | £ 95,000 | 0.01 KM |
| 64c Frimley High Street | £ 150,000 | 0.01 KM |
| 70a Frimley High Street | £ 131,000 | 0.01 KM |
| 19 Maybury Close | £ 260,000 | 0.08 KM |