Malet Close, Longlevens, Gloucester
By Martin & Co
£ 195,000
Reviews
3 out of 5 stars
Martin & Co says ..
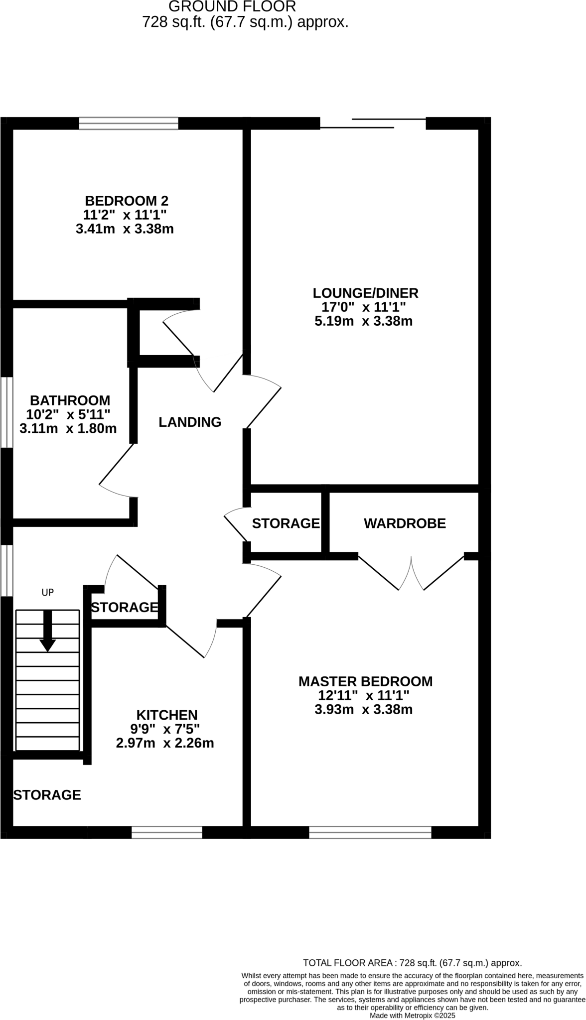
Beautifully presented 2 double bedroom, first floor maisonette situated in the popular Longlevens. The property offers a modern fully fitted kitchen with utility cupboard, modern bathroom, a bright and welcoming lounge/diner with balcony, 2 double bedrooms., UPVC double glazing, gas central heat...
Property Oracle says ..
This maisonette is located in Longlevens, Gloucester, a suburb with a mix of housing types. The property itself is a two-bedroom maisonette with one bathroom. Based on the images, the property appears to be in good condition and has recently been updated with a modern kitchen and bathroom. There is a small balcony/patio area. The property benefits from a garage. Longlevens has a number of schools nearby, including Longlevens Junior School and Longlevens Infant School, both rated as “Good” by Ofsted. Gloucester city centre is approximately 3km away, providing access to further amenities and transport links. The list price of £195,000 is significantly lower than the average house price in the area (£337,041), but this is likely due to the property being a maisonette rather than a detached or semi-detached house. The average price per sqft in the area is £289, while this property is listed at approximately £335 per sqft. Considering its condition, location, and features, the price may represent good value for money, especially for first-time buyers or those looking for a smaller, more manageable property.
Therefore, we give this property 6 / 10. *Disclaimer: This is our option and does constitute a recommendation or financial advice. Do your own research. *
- Price
- 8
- Condition
- 8
- Location
- 7
- Land
- 3
- Bedrooms
- 2
- Bathrooms
- 1
- Sqft (est)
- 582.10
- Lot (est)
- 728.00
The heatmap indicates the level of crime in the area. The color of the heatmap indicates the crime severity and recency.
Metrics Year-on-Year
- Average area value
- 290,495.00 £Decreased by 11.63 %
- Est sale value
- 189,182.50 £Increased by 0.31 %
- Average area rental value
- 1,124.00 £/moIncreased by 4.46 %
- Est letting value
- 582.10 £/moUnchanged by 0.00 %
- Est rental Yield
- 4.64 %Increased by 18.07 %
- Crime Rate
- 4.00 %Unchanged by 0.00 %
Agent Activity
Martin & Co created the listing.
Nearby Schools
| Name | Type | Ofsted | Distance |
|---|---|---|---|
| Longlevens Junior School | Community School | Good | 0.67 KM |
| The Milestone School | Academy Special Converter | 0.99 KM | |
| Innsworth Junior School | Community School | Good | 0.99 KM |
| Longlevens Infant School | Community School | Good | 1.08 KM |
| Longford Park Primary Academy | Free Schools | 1.33 KM |
Images
Nearby Streets
| Name | Average Price | Average Sqft | Distance |
|---|---|---|---|
| Kenton Drive | £ 485,000 | 0 | 0.00 KM |
| Alder Close | £ 0 | 0 | 0.00 KM |
| Ashmead | £ 0 | 0 | 0.00 KM |
| Woodcote | £ 335,000 | 0 | 0.00 KM |
| Old Cheltenham Road | £ 0 | 0 | 0.00 KM |
Nearby Transport
| Name | NLC | TLC | Distance |
|---|---|---|---|
| Gloucester | 4760 | GCR | 2.99 KM |
Nearby Listings
| Address | Price | Type | Score | Distance |
|---|---|---|---|---|
| Malet Close, Longlevens, Gloucester | £ 195,000 | BUY | 6 / 10 | 0.00 KM |
| Beaumont Road, Longlevens | £ 339,950 | BUY | Unknown | 0.03 KM |
| Beaumont Road, Longlevens, Gloucester | £ 325,000 | BUY | 7 / 10 | 0.04 KM |
| Mowberry Close, Longlevens | £ 350,000 | BUY | Unknown | 0.10 KM |
| Beaumont Road, Longlevens, Gloucester | £ 335,000 | BUY | 6 / 10 | 0.12 KM |
Nearby Properties
| Address | Price | Distance |
|---|---|---|
| 1 Mowberry Close | £ 33,500 | 0.05 KM |
| 8 Mowberry Close | £ 34,500 | 0.05 KM |
| 8 Malet Close | £ 132,500 | 0.08 KM |
| 12 Malet Close | £ 132,500 | 0.08 KM |
| 4 Malet Close | £ 165,000 | 0.08 KM |