Deakin-White says ..
Located in a quiet lane location overlooking wooded open space to the front and not overlooked to the rear is this stunning extended three bedroom family home. The spacious kitchen has been tastefully decorated and recently refitted and has enough space for your dining table and four chairs.Th...
Property Oracle says ..
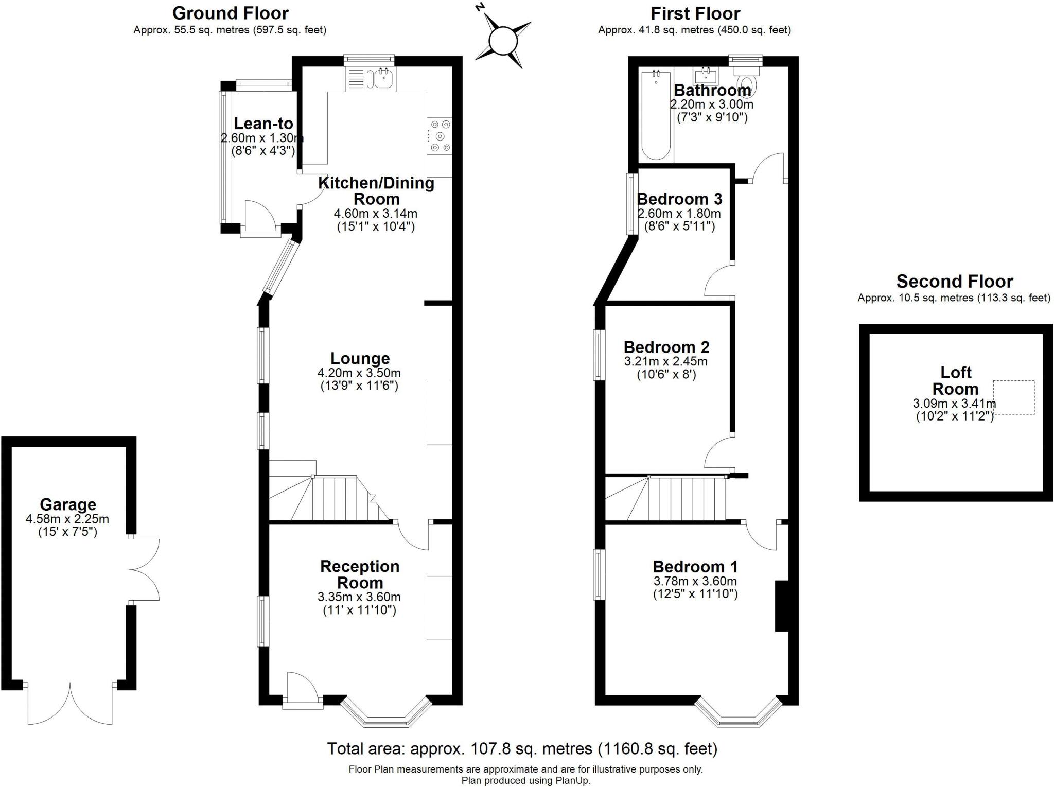
Chantry Lane is located in Hatfield South West, Welwyn Hatfield, Hertfordshire. The property is an end of terrace house with three bedrooms and one bathroom. It has a plot size of 1,160.35 sqft and is 1,084.79 sqft in size. The list price is £550,000.
The average price for a property in the area is £360,921, with an average price per sqft of £479. This property is significantly larger than average at 1,084.79 sqft compared to the average of 752 sqft.
Based on the images provided, the property appears to be in good condition and has recently been modernised. The kitchen and bathroom have been recently updated to a high standard. There is also a garden to the rear of the property, which is relatively small but well-maintained. The property also benefits from off street parking and a detached garage.
The location is good, with several outstandingly rated schools nearby, including Hatfield Community Free School and Bishop’s Hatfield Girls’ School, both within a reasonable distance. Hatfield train station is also within easy reach, providing convenient access to London and other parts of the UK.
Considering the property’s size, condition, location, and amenities, the list price of £550,000 appears to be at the higher end of the market but not unreasonable given the recent modernisation and good location. Comparable properties on Chantry Lane have sold for significantly less, suggesting that the list price may be slightly ambitious. However, the larger plot size and updated condition could justify this higher price point to some buyers.
Therefore, we give this property 7 / 10. *Disclaimer: This is our option and does constitute a recommendation or financial advice. Do your own research. *
- Price
- 7
- Condition
- 9
- Location
- 8
- Land
- 6
- Bedrooms
- 3
- Bathrooms
- 1
- Sqft (est)
- 1,084.79
- Lot (est)
- 1,160.35
The heatmap indicates the level of crime in the area. The color of the heatmap indicates the crime severity and recency.
Metrics Year-on-Year
- Average area value
- 423,750.00 £Increased by 20.30 %
- Est sale value
- 565,175.59 £Increased by 28.64 %
- Average area rental value
- 1,712.00 £/moIncreased by 1.36 %
- Est letting value
- 2,169.58 £/moIncreased by 100.00 %
- Est rental Yield
- 4.85 %Decreased by 15.65 %
- Crime Rate
- 2.00 %Unchanged by 0.00 %
Agent Activity
Deakin-White created the listing.
Nearby Schools
| Name | Type | Ofsted | Distance |
|---|---|---|---|
| University Of Hertfordshire | Higher Education Institutions | 0.52 KM | |
| Hatfield Community Free School | Free Schools | Outstanding | 1.24 KM |
| Wh6 The Runway Family Centre | Children's Centre | 1.37 KM | |
| Howe Dell Primary School | Community School | Outstanding | 1.37 KM |
| Bishop'S Hatfield Girls' School | Academy Converter | Outstanding | 1.52 KM |
Images
Nearby Streets
| Name | Average Price | Average Sqft | Distance |
|---|---|---|---|
| Cavendish Way | £ 0 | 0 | 0.00 KM |
| Jetliner Way | £ 75,625 | 0 | 0.00 KM |
| Alban Way | £ 0 | 0 | 0.00 KM |
| Sandpiper Close | £ 0 | 0 | 0.00 KM |
| Little Downs Close | £ 0 | 0 | 0.00 KM |
Nearby Transport
| Name | NLC | TLC | Distance |
|---|---|---|---|
| Hatfield (Herts) | 6070 | HAT | 2.80 KM |
| Welham Green | 6073 | WMG | 3.96 KM |
| Brookmans Park | 6074 | BPK | 5.59 KM |
| Welwyn Garden City | 6183 | WGC | 6.31 KM |
| Potters Bar | 6022 | PBR | 8.47 KM |
Nearby Listings
| Address | Price | Type | Score | Distance |
|---|---|---|---|---|
| Chantry Lane, Hatfield | £ 435,000 | BUY | Unknown | 0.00 KM |
| Chantry Lane, Hatfield | £ 550,000 | BUY | 7 / 10 | 0.00 KM |
| Chantry Lane, HATFIELD, AL10 | £ 375,000 | BUY | 7 / 10 | 0.02 KM |
| Chantry Lane, Hatfield, AL10 | £ 600,000 | BUY | 6 / 10 | 0.11 KM |
| Vigors Croft, Hatfield | £ 625,000 | BUY | 7 / 10 | 0.15 KM |
Nearby Properties
| Address | Price | Distance |
|---|---|---|
| 25 Chantry Lane | £ 342,000 | 0.01 KM |
| 17 Chantry Lane | £ 165,000 | 0.01 KM |
| 11 Chantry Lane | £ 529,950 | 0.01 KM |
| 35 Chantry Lane | £ 470,000 | 0.01 KM |
| 19 Chantry Lane | £ 295,000 | 0.01 KM |