Hare Bridge Crescent, Ingatestone
By Keith Ashton
£ 550,000
Reviews
3 out of 5 stars
Keith Ashton says ..
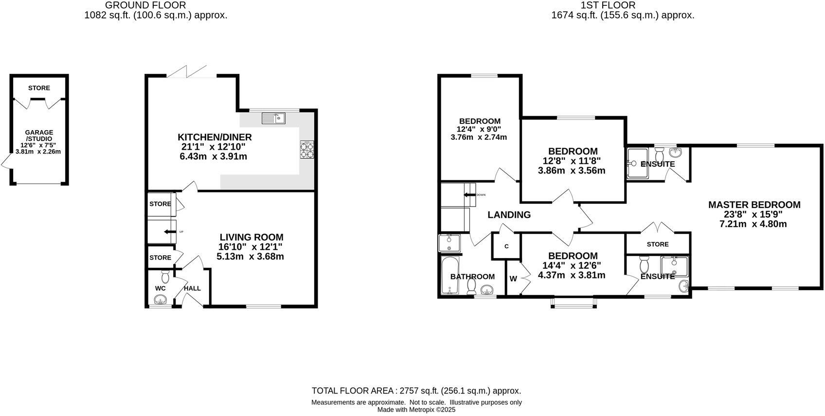
**Guide Price £550,000 - £600,000** We are pleased to present this beautifully appointed family home, nestled in the sought-after village of Ingatestone. Offering four spacious double bedrooms and three bathrooms, this charming property also benefits from a detached garage/ studio room, providing...
Property Oracle says ..
This property is a 4-bedroom, 3-bathroom house located in Ingatestone, Essex. It benefits from a good location, close to local amenities and transport links. The property appears to be in excellent condition and benefits from a good-sized garden. While the list price is slightly above the average for the area, the property’s condition and features justify the price.
Therefore, we give this property 7 / 10. *Disclaimer: This is our option and does constitute a recommendation or financial advice. Do your own research. *
- Price
- 7
- Condition
- 9
- Location
- 8
- Land
- 7
- Bedrooms
- 4
- Bathrooms
- 3
- Sqft (est)
- 1,233.38
- Lot (est)
- 2,757.00
The heatmap indicates the level of crime in the area. The color of the heatmap indicates the crime severity and recency.
Metrics Year-on-Year
- Average area value
- 651,912.00 £Decreased by 11.74 %
- Est sale value
- 901,600.78 £Increased by 53.57 %
- Average area rental value
- 2,000.00 £/moIncreased by 21.07 %
- Est letting value
- 2,466.76 £/moIncreased by 100.00 %
- Est rental Yield
- 3.68 %Increased by 37.31 %
- Crime Rate
- 55.00 %Unchanged by 0.00 %
Agent Activity
Keith Ashton created the listing.
Nearby Schools
| Name | Type | Ofsted | Distance |
|---|---|---|---|
| Ingatestone And Fryerning Church Of England Voluntary Aided Junior School | Voluntary Aided School | Good | 1.22 KM |
| Ingatestone Infant School | Community School | Outstanding | 1.67 KM |
| Mountnessing Church Of England Primary School | Academy Converter | 2.05 KM | |
| Anglo European School | Academy Converter | Good | 2.20 KM |
| Woodlands School Hutton Manor | Other Independent School | 3.73 KM |
Images
Nearby Streets
| Name | Average Price | Average Sqft | Distance |
|---|---|---|---|
| Heybridge Link | £ 0 | 0 | 0.00 KM |
| Poplar Close | £ 0 | 0 | 0.00 KM |
| Pleshey Close | £ 790,000 | 0 | 0.00 KM |
| Canon Hudson Gardens | £ 633,333 | 0 | 0.00 KM |
| Chantry Drive | £ 0 | 0 | 0.00 KM |
Nearby Transport
| Name | NLC | TLC | Distance |
|---|---|---|---|
| Ingatestone | 6882 | INT | 1.68 KM |
| Shenfield | 6888 | SNF | 5.62 KM |
| Billericay | 6871 | BIC | 6.51 KM |
| Brentwood | 6872 | BRE | 9.46 KM |
Nearby Listings
| Address | Price | Type | Score | Distance |
|---|---|---|---|---|
| Hare Bridge Crescent, Ingatestone | £ 550,000 | BUY | 7 / 10 | 0.00 KM |
| Hare Bridge Crescent, Ingatestone, CM4 | £ 525,000 | BUY | 7 / 10 | 0.02 KM |
| Hare Bridge Crescent, Ingatestone, CM4 | £ 440,000 | BUY | 7 / 10 | 0.04 KM |
| Ingatestone Grove, Roman Road, CM4 | £ 604,950 | BUY | 6 / 10 | 0.12 KM |
| Roman Road, Ingatestone, CM4 | £ 595,000 | BUY | 7 / 10 | 0.12 KM |
Nearby Properties
| Address | Price | Distance |
|---|---|---|
| 33 Hare Bridge Crescent | £ 667,500 | 0.06 KM |
| 20 Hare Bridge Crescent | £ 380,000 | 0.06 KM |
| 41 Hare Bridge Crescent | £ 326,000 | 0.06 KM |
| 4 Hare Bridge Crescent | £ 220,000 | 0.06 KM |
| 9 Hare Bridge Crescent | £ 215,000 | 0.06 KM |