Pearsons says ..
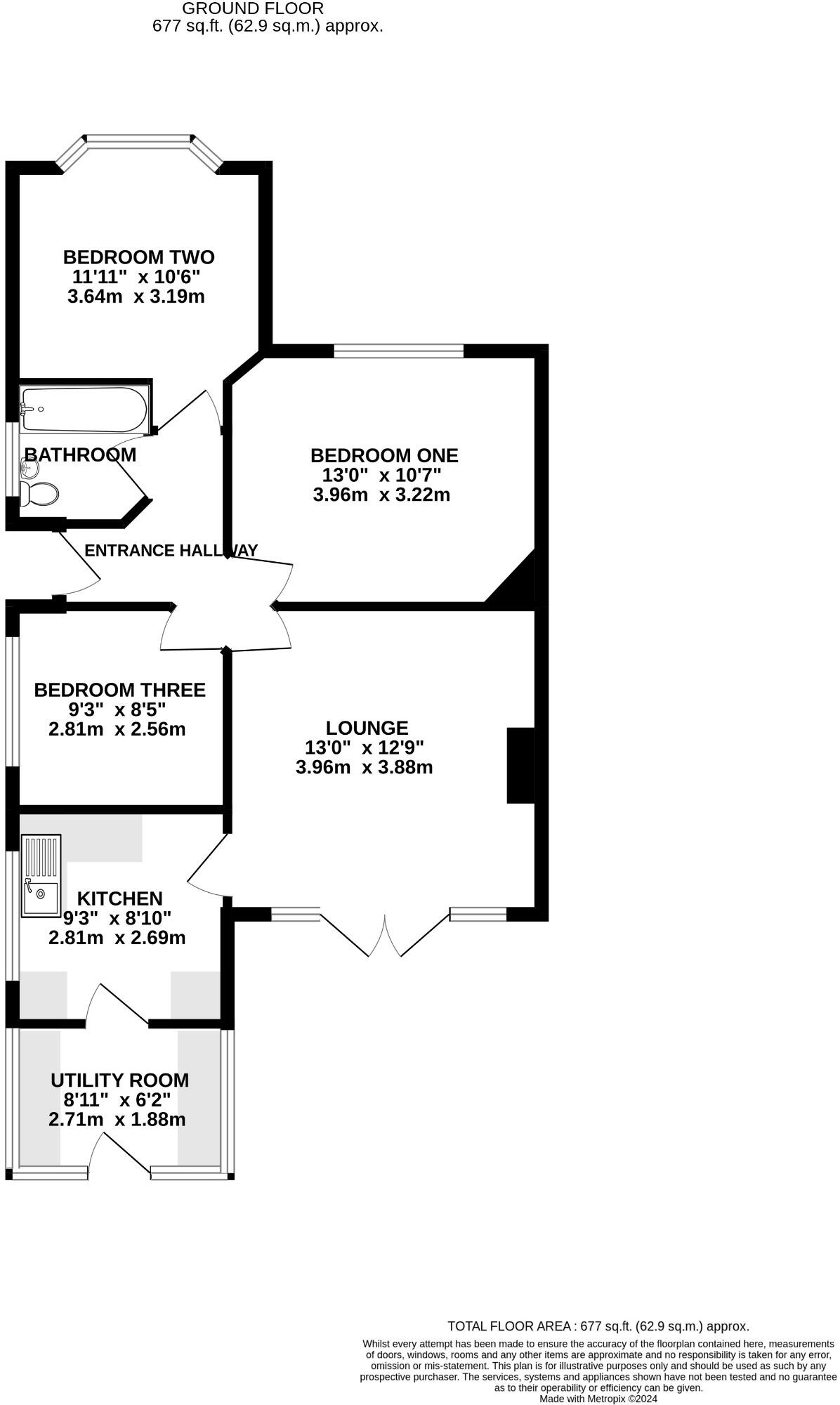
This recently redecorated semi-detached bungalow has newly fitted carpets and is offered with NO FORWARD CHAIN. The property briefly comprises; entrance hall, lounge, kitchen, utility room, three bedrooms and three piece bathroom. The property benefits from double glazing and is warmed by gas cen...
Property Oracle says ..
This three-bedroom, semi-detached bungalow in Fareham West presents a potentially attractive proposition for buyers seeking a ready-to-move-into property. The recent redecoration and new carpets are clear plus points, suggesting minimal immediate renovation needs. The location is convenient with the relatively close proximity to Fareham Train Station and several schools. Although there are some excellent schools near by the Ofsted reports are missing. The garden space is available though relatively modest in size and could benefit from some landscaping. The asking price appears to be in line with similar properties in the area, offering reasonable value, considering the overall condition and location. Potential buyers should, however, undertake a thorough survey to confirm the property’s structural condition before completion.
Therefore, we give this property 6 / 10. *Disclaimer: This is our option and does constitute a recommendation or financial advice. Do your own research. *
- Price
- 7
- Condition
- 6
- Location
- 7
- Land
- 4
- Bedrooms
- 3
- Bathrooms
- 1
- Sqft (est)
- 677.05
The heatmap indicates the level of crime in the area. The color of the heatmap indicates the crime severity and recency.
Metrics Year-on-Year
- Average area value
- 429,993.00 £Increased by 1.22 %
- Est sale value
- 259,310.15 £Increased by 9.12 %
- Average area rental value
- 1,850.00 £/moIncreased by 33.29 %
- Est letting value
- 677.05 £/moUnchanged by 0.00 %
- Est rental Yield
- 5.16 %Increased by 31.63 %
- Crime Rate
- 4.00 %Unchanged by 0.00 %
Agent Activity
Pearsons created the listing.
Nearby Schools
| Name | Type | Ofsted | Distance |
|---|---|---|---|
| St Francis Special School | Community Special School | Good | 0.59 KM |
| Heathfield Special School | Community Special School | Good | 0.70 KM |
| Ranvilles Junior School | Community School | Good | 0.79 KM |
| Ranvilles Infant School | Community School | Outstanding | 0.79 KM |
| Oak Meadow Children'S Centre | Children's Centre | 0.91 KM |
Images
Nearby Streets
| Name | Average Price | Average Sqft | Distance |
|---|---|---|---|
| Coppice Way | £ 440,000 | 0 | 0.00 KM |
| Craven Court | £ 315,000 | 0 | 0.00 KM |
| Brendon Road | £ 269,950 | 0 | 0.00 KM |
| Poppy Gardens | £ 0 | 0 | 0.00 KM |
| Sandisplatt | £ 254,975 | 0 | 0.00 KM |
Nearby Transport
| Name | NLC | TLC | Distance |
|---|---|---|---|
| Fareham | 5900 | FRM | 2.04 KM |
| Swanwick | 5920 | SNW | 6.56 KM |
| Botley | 5894 | BOE | 8.75 KM |
| Portchester | 5928 | PTC | 9.55 KM |
Nearby Listings
| Address | Price | Type | Score | Distance |
|---|---|---|---|---|
| BARNWOOD ROAD, FAREHAM | £ 320,000 | BUY | 6 / 10 | 0.00 KM |
| MEADOWBANK ROAD, FAREHAM. AUCTION GUIDE PRICE £225,000 | £ 225,000 | BUY | 6 / 10 | 0.08 KM |
| Meadowbank Road, Fareham | £ 325,000 | BUY | 6 / 10 | 0.10 KM |
| BLACKBROOK ROAD, FAREHAM | £ 275,000 | BUY | Unknown | 0.12 KM |
| Meadowbank Road, Fareham, Hampshire, PO15 | £ 475,000 | BUY | 6 / 10 | 0.13 KM |
Nearby Properties
| Address | Price | Distance |
|---|---|---|
| 22 Barnwood Road | £ 179,000 | 0.07 KM |
| 36 Barnwood Road | £ 240,000 | 0.07 KM |
| 15 Barnwood Road | £ 164,995 | 0.07 KM |
| 26 Barnwood Road | £ 299,950 | 0.07 KM |
| 39 Barnwood Road | £ 187,000 | 0.07 KM |