Lovelle says ..
Substantial five-bedroom detached home in Tetney with £30,000 PC sum to personalise – reserve off plan today.
Property Oracle says ..
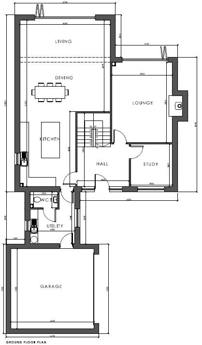
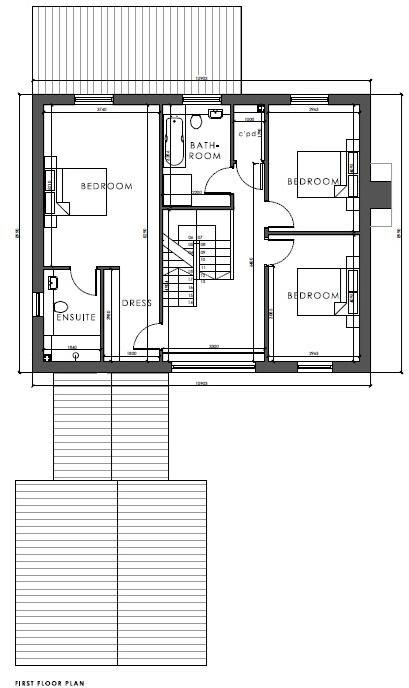
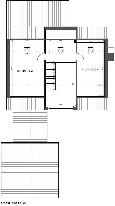
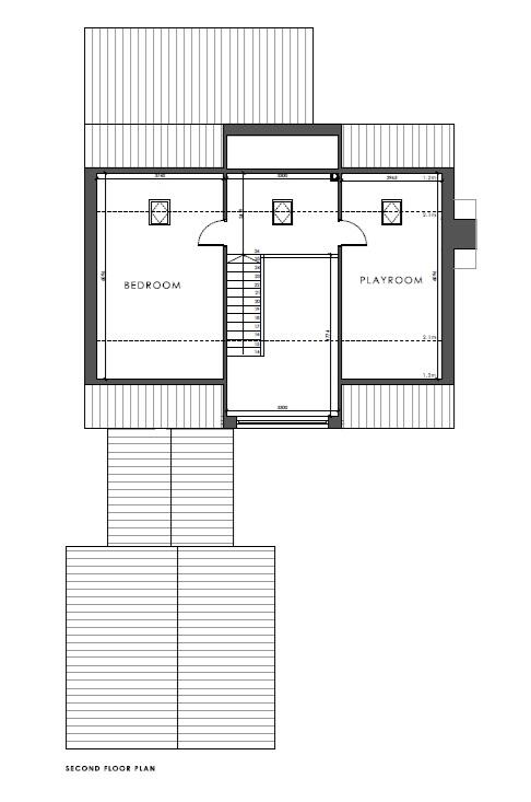
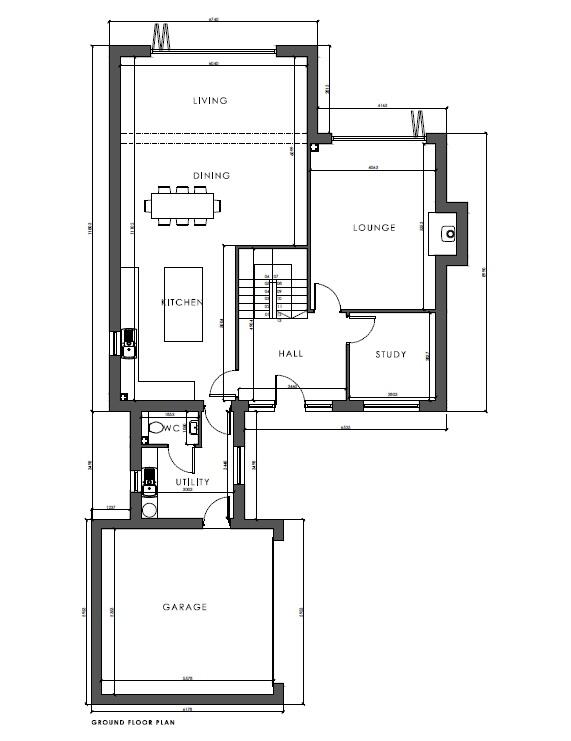
This is a substantial detached property in Tetney, Lincolnshire. The house offers five bedrooms and two bathrooms, making it suitable for families. The interior is modern and well-presented, suggesting it’s a new build or recently renovated. It benefits from a garden, driveway, and potentially a garage. The location offers a balance between rural living and accessibility to nearby towns. While the price is above the average for the area, the size and condition of the property justify the higher price point.
Therefore, we give this property 7 / 10. *Disclaimer: This is our option and does constitute a recommendation or financial advice. Do your own research. *
- Price
- 6
- Condition
- 9
- Location
- 7
- Land
- 7
- Bedrooms
- 5
- Bathrooms
- 2
- Sqft (est)
- 367.80
The heatmap indicates the level of crime in the area. The color of the heatmap indicates the crime severity and recency.
Metrics Year-on-Year
- Average area value
- 310,417.00 £Increased by 9.61 %
- Est sale value
- 134,247.00 £Increased by 32.25 %
- Average area rental value
- 695.00 £/moDecreased by 22.09 %
- Est letting value
- 0.00 £/mo
- Est rental Yield
- 2.69 %Decreased by 28.84 %
- Crime Rate
- 0.00 %
Agent Activity
Lovelle created the listing.
Nearby Schools
| Name | Type | Ofsted | Distance |
|---|---|---|---|
| Tetney Primary School | Community School | Good | 0.81 KM |
| Holton-Le-Clay Junior School | Community School | Good | 3.63 KM |
| Holton Le Clay | Children's Centre Linked Site | 3.63 KM | |
| Holton Le Clay Infant School | Community School | Good | 3.86 KM |
| Humberston Outreach | Children's Centre Linked Site | 4.28 KM |
Images
Nearby Streets
| Name | Average Price | Average Sqft | Distance |
|---|---|---|---|
| The Furows | £ 0 | 0 | 0.00 KM |
| Molinari Avenue | £ 522,983 | 0 | 0.00 KM |
| The Furows | £ 704,995 | 0 | 0.00 KM |
| Chapel Garth | £ 200,000 | 0 | 0.00 KM |
| Dixon Close | £ 0 | 0 | 0.00 KM |
Nearby Transport
| Name | NLC | TLC | Distance |
|---|---|---|---|
| Cleethorpes | 6274 | CLE | 8.06 KM |
Nearby Listings
| Address | Price | Type | Score | Distance |
|---|---|---|---|---|
| Thoresby Road, Tetney, DN36 | £ 525,000 | BUY | 7 / 10 | 0.00 KM |
| Thoresby Road, Tetney, DN36 | £ 530,000 | BUY | 7 / 10 | 0.00 KM |
| Plot 12, 24 Clyburn Close, Tetney | £ 439,950 | BUY | 5 / 10 | 0.28 KM |
| Clyburn Close, Tetney, Grimsby, DN36 5GB | £ 439,950 | BUY | 6 / 10 | 0.29 KM |
| Garcia Road, Tetney, Grimsby, N E Lincs, DN36 | £ 375,000 | BUY | 7 / 10 | 0.32 KM |
Nearby Properties
| Address | Price | Distance |
|---|---|---|
| Stanley House | £ 142,000 | 0.34 KM |
| Browning House | £ 285,000 | 0.34 KM |
| The Mount | £ 268,000 | 0.34 KM |
| 9 Town Road | £ 155,000 | 0.34 KM |
| Bellavere | £ 139,950 | 0.34 KM |