Wentworth Terrace, Wakefield, West Yorkshire
FI

Wentworth Terrace, Wakefield, West Yorkshire

By Fine & Country

£ 750,000

Reviews

3 out of 5 stars

Fine & Country says ..

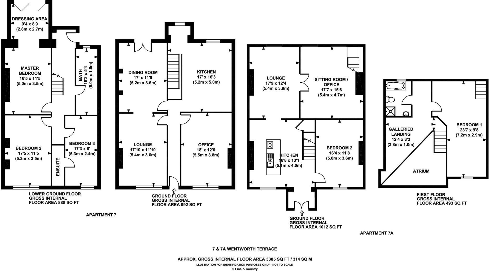
Nestled in the heart of Wakefield city, this one-of-a-kind four-floor property offers an unparalleled combination of space, versatility, and convenience. Currently divided into two distinct dwellings, it provides a rare opportunity for multi-generational living, rental income, or conversion into ...

Property Oracle says ..

This property is a 5 bedroom, 3 bathroom terraced house located in Wakefield, West Yorkshire. It is listed at £750,000 and has 4,360.57 sqft of living space. The property is situated in a desirable location close to several highly-rated schools, including Queen Elizabeth Grammar School and Wakefield Girls’ High School, and is also conveniently located near Wakefield Westgate railway station. The average house price in the area is £247,563, with an average price per sqft of £110. Considering its size, location, and proximity to amenities, the list price seems high compared to the average price in the area, but this could be justified by the property’s condition and unique features. The property appears to be in excellent condition, having undergone some modernisation while retaining traditional character. It also includes a rear garden and off-street parking.

Therefore, we give this property 7 / 10. *Disclaimer: This is our option and does constitute a recommendation or financial advice. Do your own research. *

Price
6
Condition
9
Location
9
Land
7
Bedrooms
5
Bathrooms
3
Sqft (est)
4,360.57

The heatmap indicates the level of crime in the area. The color of the heatmap indicates the crime severity and recency.

Metrics Year-on-Year

Average area value
193,327.00 £
Decreased by 28.04 %
from 268,670.00 £
Est sale value
950,604.26 £
Decreased by 13.15 %
from 1,094,503.07 £
Average area rental value
771.00 £/mo
Decreased by 4.22 %
from 805.00 £/mo
Est letting value
0.00 £/mo
from 0.00 £/mo
Est rental Yield
4.79 %
Increased by 33.06 %
from 3.60 %
Crime Rate
8.00 %
Unchanged by 0.00 %
from 8.00 %

Agent Activity

  • Fine & Country created the listing.

Nearby Schools

NameTypeOfstedDistance
Queen Elizabeth Grammar SchoolOther Independent School0.13 KM
Wakefield Girls' High SchoolOther Independent School0.21 KM
Wakefield Grammar Pre-Prepatory SchoolOther Independent School0.40 KM
Wakefield CollegeFurther EducationGood0.45 KM
Wakefield St Johns Church Of England Voluntary Aided Junior And Infant SchoolVoluntary Aided SchoolGood0.56 KM

Images

Picture No. 04 Picture No. 43 Picture No. 07 Picture No. 11 Picture No. 12 Picture No. 15 Picture No. 17 Picture No. 25 Picture No. 27 Picture No. 28 Picture No. 30 Picture No. 31 Picture No. 05 Picture No. 06 Picture No. 08 Picture No. 09 Picture No. 10 Picture No. 13 Picture No. 14 Picture No. 16 Picture No. 18 Picture No. 19 Picture No. 20 Picture No. 21 Picture No. 22 Picture No. 23 Picture No. 24 Picture No. 26 Picture No. 29 Picture No. 32 Picture No. 33 Picture No. 34 Picture No. 35 Picture No. 36 Picture No. 37 Picture No. 38 Picture No. 39 Picture No. 40 Picture No. 41 Picture No. 42 Picture No. 72 Picture No. 59 Picture No. 57 Picture No. 46 Picture No. 45 Picture No. 64 Picture No. 50 Picture No. 51 Picture No. 54

Nearby Streets

NameAverage PriceAverage SqftDistance
Hepworth Gardens £ 335,00000.00 KM
Bell Street £ 000.00 KM
Saville Street £ 000.00 KM
Back Kensington Road £ 000.00 KM
Cheapside £ 000.00 KM

Nearby Transport

NameNLCTLCDistance
Wakefield Westgate8591WKF0.67 KM
Wakefield Kirkgate8584WKK1.77 KM
Outwood8309OUT3.24 KM
Sandal And Agbrigg8358SNA3.53 KM
Normanton8528NOR8.80 KM

Nearby Listings

AddressPriceTypeScoreDistance
Wentworth Terrace, Wakefield, West Yorkshire £ 750,000BUY7 / 100.00 KM
Northgate, Wakefield £ 550,000BUY7 / 100.02 KM
Cardigan Terrace, Wakefield £ 250,000BUY6 / 100.07 KM
3, Wentworth Terrace, Wakefield £ 81,000BUY7 / 100.08 KM
Bond Street, Wakefield £ 270,000BUY4 / 100.14 KM

Nearby Properties

AddressPriceDistance
2 Wentworth Terrace £ 537,5000.05 KM
109 Northgate £ 75,0000.06 KM
107 Northgate £ 105,0000.11 KM
32 Bond Street £ 250,0000.19 KM
9 Upper York Street £ 129,5000.27 KM