Upper St Michaels Road, Aldershot
FO

Upper St Michaels Road, Aldershot

By Fosters Estate Agents

£ 750,000

Reviews

3 out of 5 stars

Fosters Estate Agents says ..

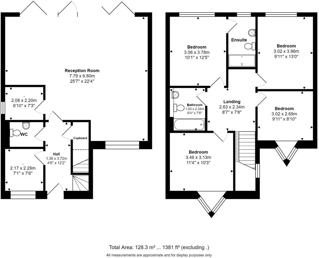
This brand new executive detached House is one of only 2 and is tucked away in a quiet traffic free location on the sought after Crown Estate, within walking distance of the Railway Station and the town centre. Traditionally constructed by HAKA Homes, the high end finish will be visible on inspec...

Property Oracle says ..

This is a modern, detached property located in Aldershot, Hampshire. The property is in excellent condition and benefits from a well-kept garden and a large paved driveway. The property is located close to local schools and amenities, including Aldershot train station. The property is listed for £750,000, which is slightly above the average price for a detached property in the area.

Therefore, we give this property 7 / 10. *Disclaimer: This is our option and does constitute a recommendation or financial advice. Do your own research. *

Price
5
Condition
9
Location
7
Land
7
Bedrooms
4
Bathrooms
2

The heatmap indicates the level of crime in the area. The color of the heatmap indicates the crime severity and recency.

Metrics Year-on-Year

Average area value
383,000.00 £
Increased by 11.30 %
from 344,107.00 £
Average area rental value
1,425.00 £/mo
Decreased by 0.90 %
from 1,438.00 £/mo
Est rental Yield
4.46 %
Decreased by 10.98 %
from 5.01 %
Crime Rate
4.00 %
Unchanged by 0.00 %
from 4.00 %

Agent Activity

  • Fosters Estate Agents created the listing.

Nearby Schools

NameTypeOfstedDistance
St Joseph'S Catholic Primary SchoolAcademy ConverterOutstanding0.43 KM
St Michael'S Church Of England Controlled Infant SchoolVoluntary Controlled SchoolOutstanding0.66 KM
St Michael'S Church Of England Controlled Junior SchoolVoluntary Controlled SchoolRequires improvement0.80 KM
Talavera Junior SchoolCommunity SchoolOutstanding1.03 KM
Talavera Infant SchoolCommunity SchoolGood1.03 KM

Images

april front 1.jpg april garden 1.jpg 20250113_103922.jpg 20250206_114512.jpg Front Aeriel view.jpg 20250113_104215.jpg Rear aeriel.jpg 20250113_104011.jpg Plot 2.jpg 20250113_104229.jpg 20250113_103828.jpg 20250113_103949.jpg 20250113_103916.jpg 20250113_103930.jpg Aeriel view 1.jpg 20250113_103940.jpg 20250113_104106.jpg 20250113_104135.jpg 20250113_104157.jpg 20250113_104219.jpg 20250113_104244.jpg 20250206_114515.jpg 20250206_114920.jpg 20250206_114927.jpg

Nearby Streets

NameAverage PriceAverage SqftDistance
Croft Road £ 000.00 KM
Station Road £ 000.00 KM
Larkspur Close £ 000.00 KM
St Benedict'S Close £ 210,00000.00 KM
Victoria Road £ 000.00 KM

Nearby Transport

NameNLCTLCDistance
Aldershot5623AHT0.49 KM
Farnham5545FNH4.83 KM
North Camp5636NCM5.00 KM
Ash5641ASH5.41 KM
Ash Vale5547AHV5.50 KM

Nearby Listings

AddressPriceTypeScoreDistance
Upper St Michaels Road, Aldershot £ 750,000BUY7 / 100.00 KM
Upper St Michaels Road, Aldershot £ 800,000BUY7 / 100.02 KM
Church Lane East, Aldershot £ 500,000BUYUnknown0.11 KM
Church Lane East, Aldershot, Hampshire, GU11 £ 260,000BUYUnknown0.12 KM
Church Lane East, Aldershot, Hampshire £ 390,000BUYUnknown0.12 KM

Nearby Properties

AddressPriceDistance
25 Upper St Michaels Road £ 335,0000.05 KM
7 Upper St Michaels Road £ 418,0000.05 KM
16 Upper St Michaels Road £ 395,0000.05 KM
12 Upper St Michaels Road £ 490,0000.05 KM
15 Upper St Michaels Road £ 299,9500.05 KM