Firacre Road, Ash Vale, Guildford, Surrey, GU12
By Mackenzie Smith
£ 450,000
Reviews
3 out of 5 stars
Mackenzie Smith says ..
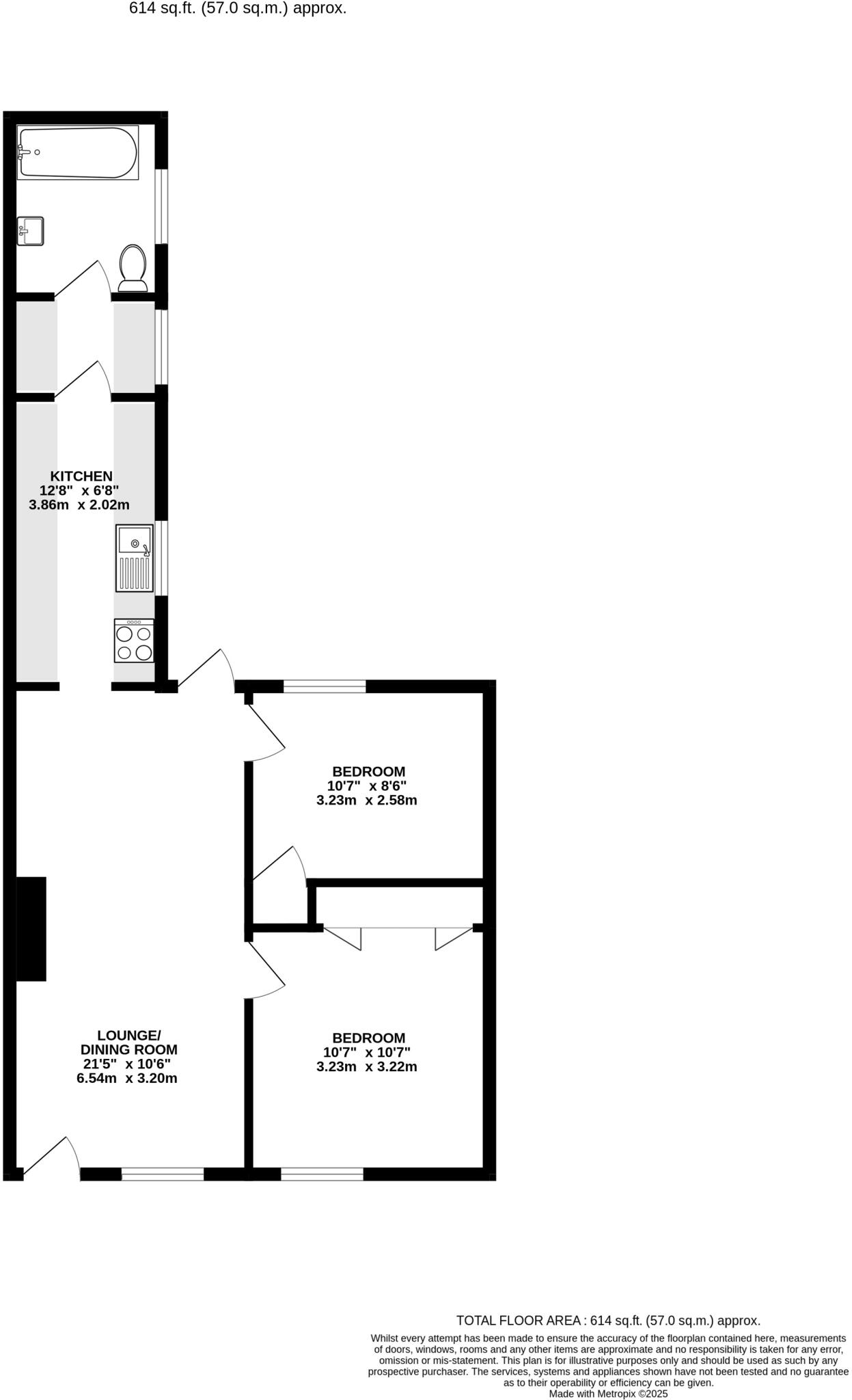
Offered with NO ONWARD CHAIN and recently renovated to a high standard, this semi-detached bungalow presents an excellent opportunity in a desirable residential area of Ash Vale.
Property Oracle says ..
Therefore, we give this property 6 / 10. *Disclaimer: This is our option and does constitute a recommendation or financial advice. Do your own research. *
- Price
- 4
- Condition
- 9
- Location
- 7
- Land
- 7
- Bedrooms
- 2
- Bathrooms
- 1
- Sqft (est)
- 510.74
The heatmap indicates the level of crime in the area. The color of the heatmap indicates the crime severity and recency.
Metrics Year-on-Year
- Average area value
- 325,000.00 £Increased by 41.85 %
- Est sale value
- 152,711.26 £Increased by 32.30 %
- Average area rental value
- 473.00 £/moDecreased by 55.08 %
- Est letting value
- 0.00 £/moDecreased by 100.00 %
- Est rental Yield
- 1.75 %Decreased by 68.30 %
- Crime Rate
- 0.00 %
from 229,118.00 £
from 115,427.24 £
from 1,053.00 £/mo
from 510.74 £/mo
from 5.52 %
from 0.00 %
Agent Activity
Mackenzie Smith created the listing.
Nearby Schools
| Name | Type | Ofsted | Distance |
|---|---|---|---|
| Shawfield Primary School | Community School | Good | 1.32 KM |
| Holly Lodge Primary Academy | Academy Converter | Good | 1.47 KM |
| Ash Grange Nursery And Primary School | Community School | Good | 2.00 KM |
| Ash Grange Sure Start Children'S Centre | Children's Centre | 2.11 KM | |
| Walsh Cofe Junior School | Voluntary Controlled School | Requires improvement | 2.45 KM |
Images
Nearby Streets
| Name | Average Price | Average Sqft | Distance |
|---|---|---|---|
| Newfield Road | £ 0 | 0 | 0.00 KM |
| Stirling Close | £ 475,000 | 0 | 0.00 KM |
| Heather Close | £ 550,000 | 0 | 0.00 KM |
| Station Approach | £ 238,333 | 0 | 0.00 KM |
| Enterprise Estate | £ 0 | 0 | 0.00 KM |
Nearby Transport
| Name | NLC | TLC | Distance |
|---|---|---|---|
| Ash Vale | 5547 | AHV | 0.65 KM |
| North Camp | 5636 | NCM | 1.43 KM |
| Ash | 5641 | ASH | 2.15 KM |
| Farnborough North | 5688 | FNN | 4.58 KM |
| Aldershot | 5623 | AHT | 4.71 KM |
Nearby Listings
| Address | Price | Type | Score | Distance |
|---|---|---|---|---|
| Firacre Road, Ash Vale, Guildford, Surrey, GU12 | £ 450,000 | BUY | 6 / 10 | 0.00 KM |
| Firacre Road, Ash Vale, Guildford, Surrey, GU12 | £ 500,000 | BUY | Unknown | 0.03 KM |
| Firacre Road, Ash Vale, Surrey, GU12 | £ 600,000 | BUY | 7 / 10 | 0.05 KM |
| Penrose Gardens, Ash Vale, Guildford, Surrey, GU12 | £ 500,000 | BUY | 7 / 10 | 0.11 KM |
| Firacre Road, Ash Vale, Guildford, Surrey, GU12 | £ 725,000 | BUY | 7 / 10 | 0.17 KM |
Nearby Properties
| Address | Price | Distance |
|---|---|---|
| 5 Firacre Road | £ 455,000 | 0.05 KM |
| 13 Firacre Road | £ 410,000 | 0.05 KM |
| 15 Firacre Road | £ 445,000 | 0.06 KM |
| 3 Firacre Road | £ 248,000 | 0.06 KM |
| 11 Jubilee Drive | £ 340,000 | 0.06 KM |