Chandos Terrace, Roundhay, LS8
By The Home Movement
£ 300,000
Reviews
3 out of 5 stars
The Home Movement says ..
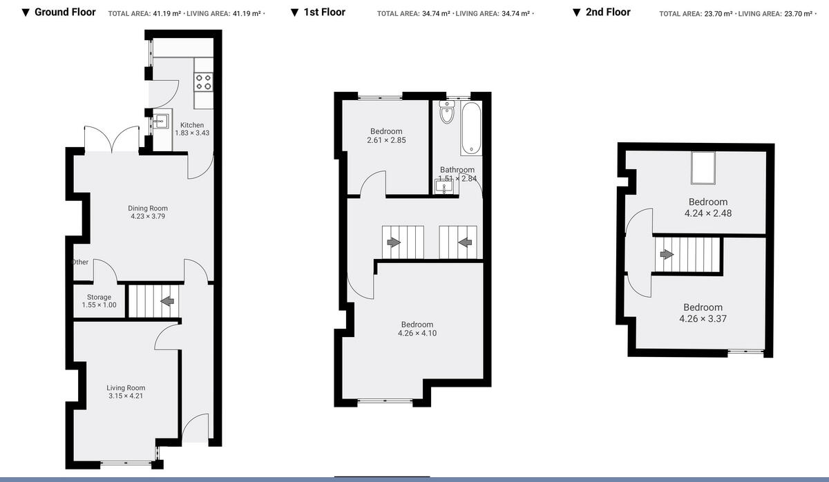
A spacious four bedroom with two reception rooms and a South facing rear garden
Property Oracle says ..
This property is a 4-bedroom terraced house located in Roundhay, Leeds. The location is desirable, with good schools and transport links nearby. The property itself appears well-maintained, although the kitchen shows some signs of needing updating. The small garden is a positive feature. Compared to other properties in the area, the price seems reasonable, although slightly below the average price per square foot.
Therefore, we give this property 6 / 10. *Disclaimer: This is our option and does constitute a recommendation or financial advice. Do your own research. *
- Price
- 7
- Condition
- 7
- Location
- 8
- Land
- 4
- Bedrooms
- 4
- Bathrooms
- 1
- Sqft (est)
- 856.81
The heatmap indicates the level of crime in the area. The color of the heatmap indicates the crime severity and recency.
Metrics Year-on-Year
- Average area value
- 428,500.00 £Increased by 0.70 %
- Est sale value
- 340,153.57 £Increased by 47.58 %
- Average area rental value
- 977.00 £/moDecreased by 11.74 %
- Est letting value
- 0.00 £/mo
- Est rental Yield
- 2.74 %Decreased by 12.18 %
- Crime Rate
- 5.00 %Unchanged by 0.00 %
Agent Activity
The Home Movement created the listing.
Nearby Schools
| Name | Type | Ofsted | Distance |
|---|---|---|---|
| Gledhow Primary School | Community School | Good | 0.40 KM |
| Moor Allerton Hall Primary School | Community School | Good | 0.43 KM |
| Roundhay Children'S Centre | Children's Centre | 0.55 KM | |
| Allerton Grange School | Community School | Good | 0.64 KM |
| Moortown Children'S Centre | Children's Centre | 0.75 KM |
Images
Nearby Streets
| Name | Average Price | Average Sqft | Distance |
|---|---|---|---|
| Denton Grove | £ 0 | 0 | 0.00 KM |
| Larkhill Road | £ 0 | 0 | 0.00 KM |
| Southfield Avenue | £ 650,000 | 0 | 0.00 KM |
| St Margarets Avenue | £ 0 | 0 | 0.00 KM |
| Back Shaftesbury Avenue | £ 0 | 0 | 0.00 KM |
Nearby Transport
| Name | NLC | TLC | Distance |
|---|---|---|---|
| Leeds | 8487 | LDS | 5.32 KM |
| Burley Park | 8500 | BUY | 6.73 KM |
| Headingley | 8498 | HDY | 8.25 KM |
| Cross Gates | 8473 | CRG | 8.48 KM |
Nearby Listings
| Address | Price | Type | Score | Distance |
|---|---|---|---|---|
| Chandos Terrace, Roundhay, LS8 | £ 300,000 | BUY | 6 / 10 | 0.00 KM |
| Chandos Terrace, Leeds | £ 325,000 | BUY | 7 / 10 | 0.03 KM |
| Chandos Place, Leeds, LS8 | £ 350,000 | BUY | 8 / 10 | 0.05 KM |
| Chandos Place, Leeds | £ 425,000 | BUY | 7 / 10 | 0.05 KM |
| Chandos Place, Leeds | £ 400,000 | BUY | 7 / 10 | 0.09 KM |
Nearby Properties
| Address | Price | Distance |
|---|---|---|
| 15 Chandos Terrace | £ 38,250 | 0.04 KM |
| 31 Chandos Terrace | £ 325,000 | 0.04 KM |
| 4 Chandos Terrace | £ 234,000 | 0.04 KM |
| 39 Chandos Terrace | £ 57,500 | 0.04 KM |
| 21 Chandos Terrace | £ 178,000 | 0.04 KM |