Earlham Road, Norwich
Gilson Bailey logo

Earlham Road, Norwich

By Gilson Bailey

£ 425,000

Reviews

2 out of 5 stars

Gilson Bailey says ..

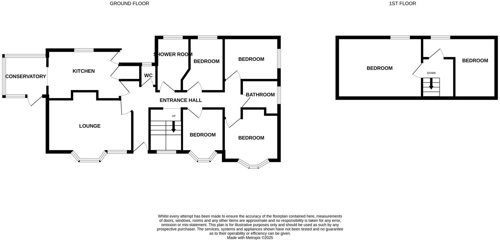
** GUIDE PRICE £425,000 - £450,000 - RARELY AVAILABLE DETACHED CHALET BUNGALOW ON A SPACIOUS CORNER PLOT ** Prominently positioned on a spacious corner plot along the prestigious Earlham Road to the west of Norwich, this substantial six-bedroom detached chalet bungalow offers versatile and genero...

Property Oracle says ..

This chalet-style property on Earlham Road, Norwich, offers considerable potential but requires substantial renovation. Its location in the University area, close to schools and amenities, is a strong selling point. The property boasts six bedrooms and three bathrooms, making it suitable for a large family or those seeking ample space. The presence of a garden and shed adds to its appeal. However, the internal condition is a significant drawback, with many rooms in need of modernization and repair. While the asking price of £425,000 is within the average range for the area, the cost of renovation should be carefully considered by potential buyers. Overall, this property presents an opportunity for those willing to invest time and money into transforming it into a desirable family home.

Therefore, we give this property 5 / 10. *Disclaimer: This is our option and does constitute a recommendation or financial advice. Do your own research. *

Price
6
Condition
3
Location
7
Land
7
Bedrooms
6
Bathrooms
3
Sqft (est)
1,575.00

The heatmap indicates the level of crime in the area. The color of the heatmap indicates the crime severity and recency.

Metrics Year-on-Year

Average area value
265,714.00 £
Increased by 17.36 %
from 226,418.00 £
Est sale value
568,575.00 £
Increased by 28.93 %
from 441,000.00 £
Average area rental value
1,105.00 £/mo
Decreased by 15.71 %
from 1,311.00 £/mo
Est letting value
1,575.00 £/mo
Unchanged by 0.00 %
from 1,575.00 £/mo
Est rental Yield
4.99 %
Decreased by 28.20 %
from 6.95 %
Crime Rate
27.00 %
Unchanged by 0.00 %
from 27.00 %

Agent Activity

  • Gilson Bailey created the listing.

Nearby Schools

NameTypeOfstedDistance
City Academy NorwichAcademy Sponsor LedRequires improvement0.19 KM
Bluebell Primary SchoolAcademy Converter0.60 KM
West Earlham Junior SchoolCommunity SchoolGood0.80 KM
West Earlham Infant And Nursery SchoolCommunity SchoolOutstanding0.80 KM
Henderson Green Primary SchoolAcademy Sponsor LedGood0.89 KM

Images

IMG_6092-2.jpg IMG_6083-2.jpg IMG_6071-2.jpg IMG_6091-2.jpg IMG_6075-2.jpg IMG_6078-2.jpg IMG_6081-2.jpg IMG_6085-2.jpg IMG_6088-2.jpg IMG_6094-2.jpg IMG_6072-2.jpg IMG_6090-2.jpg IMG_6074-2.jpg IMG_6087-2.jpg IMG_6093-2.jpg IMG_6073-2.jpg

Nearby Streets

NameAverage PriceAverage SqftDistance
Hanbury Close £ 000.00 KM
George Dance Place £ 000.00 KM
Gunton Road £ 000.00 KM
Jamieson Place £ 000.00 KM
Gunton Lane £ 000.00 KM

Nearby Transport

NameNLCTLCDistance
Norwich7309NRW6.39 KM

Nearby Listings

AddressPriceTypeScoreDistance
Earlham Road, Norwich £ 425,000BUY5 / 100.00 KM
Gipsy Lane, West Norwich £ 185,000BUY7 / 100.05 KM
Gipsy Lane, Norwich £ 250,000BUY6 / 100.09 KM
Gipsy Lane, Close To The UEA, NR5 £ 175,000BUY5 / 100.10 KM
Gipsy Lane, West Norwich, NR5 £ 240,000BUY6 / 100.10 KM

Nearby Properties

AddressPriceDistance
143 Gipsy Lane £ 125,0000.09 KM
152 Gipsy Lane £ 180,0000.09 KM
142 Gipsy Lane £ 137,0000.10 KM
512 Earlham Road £ 335,0000.12 KM
518 Earlham Road £ 465,0000.12 KM