Ridgewater says ..
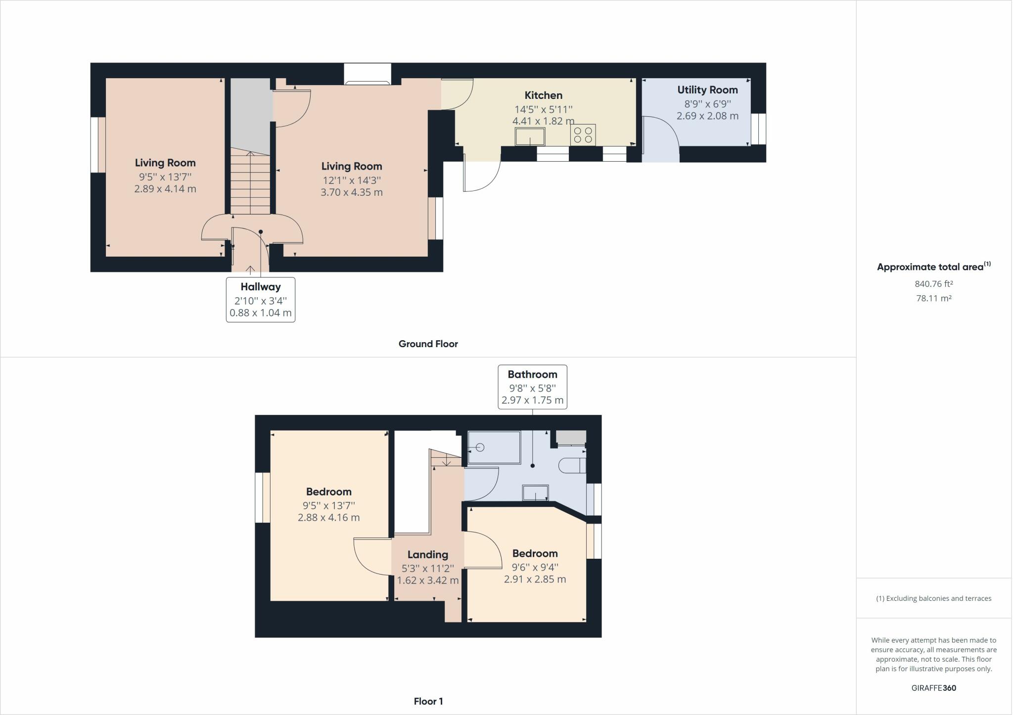
This well-presented 2 bedroom, 2 reception character cottage with parking space, offers a warm and inviting atmosphere, with accommodation set over two levels. The property boasts a reception hallway, a versatile dining room/bedroom three, a comfortable sitting room, and a separate kitchen. Upsta...
Property Oracle says ..
This 2-bedroom, 1-bathroom property located on Torquay Road, Paignton, offers a convenient location near Paignton train station and several schools. The property appears to be in generally good condition, although some cosmetic updates might be desirable. The interior photos reveal a clean and habitable interior with functional spaces, but the design elements are a bit dated. The property includes a small garden that is more of a patio and manageable garden area. The asking price seems reasonable for the location and type of property, although the absence of comparative data makes an entirely conclusive valuation impossible. Potential buyers should carefully consider the property’s age and potential for upgrades, and check the average price per sqft for nearby properties to confirm the price is in line with the market value of properties with similar features.
Therefore, we give this property 5 / 10. *Disclaimer: This is our option and does constitute a recommendation or financial advice. Do your own research. *
- Price
- 7
- Condition
- 6
- Location
- 7
- Land
- 3
- Bedrooms
- 2
- Bathrooms
- 1
- Sqft (est)
- 840.77
The heatmap indicates the level of crime in the area. The color of the heatmap indicates the crime severity and recency.
Metrics Year-on-Year
- Average area value
- 376,395.00 £Decreased by 3.15 %
- Est sale value
- 287,543.34 £Decreased by 0.87 %
- Average area rental value
- 1,667.00 £/moDecreased by 3.31 %
- Est letting value
- 840.77 £/moUnchanged by 0.00 %
- Est rental Yield
- 5.31 %Decreased by 0.19 %
- Crime Rate
- 11.00 %Unchanged by 0.00 %
Agent Activity
Ridgewater marked this listing as sold.
Ridgewater created the listing.
Nearby Schools
| Name | Type | Ofsted | Distance |
|---|---|---|---|
| The Brunel Academy | Academy Special Sponsor Led | Requires improvement | 0.13 KM |
| Preston Bridge School | Other Independent Special School | 0.35 KM | |
| Oldway Primary School | Academy Converter | 0.54 KM | |
| Sacred Heart Catholic School | Academy Converter | Good | 0.64 KM |
| Paignton & Brixham Children'S Centre | Children's Centre | 0.64 KM |
Images
Nearby Streets
| Name | Average Price | Average Sqft | Distance |
|---|---|---|---|
| Mead Close | £ 141,650 | 0 | 0.00 KM |
| Mead Lane | £ 0 | 0 | 0.00 KM |
| Kings Avenue | £ 0 | 0 | 0.00 KM |
| Cecil Avenue | £ 0 | 0 | 0.00 KM |
| Hyde Road | £ 250,000 | 0 | 0.00 KM |
Nearby Transport
| Name | NLC | TLC | Distance |
|---|---|---|---|
| Paignton | 3427 | PGN | 0.92 KM |
| Torquay | 3434 | TQY | 3.09 KM |
| Torre | 3432 | TRR | 3.90 KM |
Nearby Listings
| Address | Price | Type | Score | Distance |
|---|---|---|---|---|
| Torquay Road, Paignton | £ 200,000 | BUY | 5 / 10 | 0.00 KM |
| Torquay Road, Preston | £ 225,000 | BUY | 7 / 10 | 0.01 KM |
| Torquay Road, Preston, Paignton | £ 230,000 | BUY | 7 / 10 | 0.01 KM |
| Torquay Road, Paignton, TQ3 | £ 230,000 | BUY | 7 / 10 | 0.01 KM |
| Pegasus Court, Torquay Road, Paignton | £ 99,950 | BUY | 5 / 10 | 0.03 KM |
Nearby Properties
| Address | Price | Distance |
|---|---|---|
| 176 Torquay Road | £ 190,000 | 0.01 KM |
| 172 Torquay Road | £ 175,000 | 0.01 KM |
| 164 Torquay Road | £ 145,000 | 0.01 KM |
| 168 Torquay Road | £ 48,000 | 0.01 KM |
| 183 Torquay Road | £ 327,500 | 0.09 KM |