WI
Oak Street, Deal, Kent, CT14 6JG
By Wilson Real Estate
£ 425,000
Reviews
3 out of 5 stars
Wilson Real Estate says ..
Step back in time without compromising on comfort in this unique Grade II listed terraced home. Built in 1723, this captivating property was originally two cottages, one of which once operated as a bo...
Property Oracle says ..
Therefore, we give this property 6 / 10. *Disclaimer: This is our option and does constitute a recommendation or financial advice. Do your own research. *
- Price
- 7
- Condition
- 6
- Location
- 8
- Land
- 5
- Bedrooms
- 4
- Bathrooms
- 1
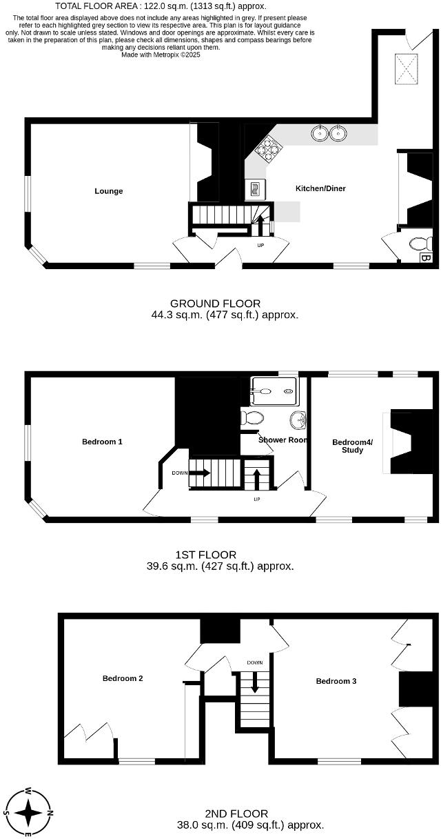
- Sqft (est)
- 1,313.20
The heatmap indicates the level of crime in the area. The color of the heatmap indicates the crime severity and recency.
Metrics Year-on-Year
- Average area value
- 505,375.00 £Increased by 53.39 %
- Est sale value
- 648,720.80 £Increased by 26.99 %
- Average area rental value
- 1,085.00 £/moDecreased by 20.22 %
- Est letting value
- 1,313.20 £/moUnchanged by 0.00 %
- Est rental Yield
- 2.58 %Decreased by 47.88 %
- Crime Rate
- 21.00 %Unchanged by 0.00 %
from 329,468.00 £
from 510,834.80 £
from 1,360.00 £/mo
from 1,313.20 £/mo
from 4.95 %
from 21.00 %
Agent Activity
Wilson Real Estate created the listing.
Nearby Schools
| Name | Type | Ofsted | Distance |
|---|---|---|---|
| Sandown School | Academy Converter | 0.62 KM | |
| Brewood Secondary School | Other Independent Special School | Good | 1.40 KM |
| Deal Parochial Church Of England Primary School | Academy Converter | 1.64 KM | |
| Goodwin Academy | Academy Sponsor Led | 1.66 KM | |
| The Downs Church Of England Primary School | Academy Converter | 2.47 KM |
Images
Nearby Streets
| Name | Average Price | Average Sqft | Distance |
|---|---|---|---|
| Brewer Street | £ 950,000 | 0 | 0.00 KM |
| Chapel Street | £ 0 | 0 | 0.00 KM |
| King Street | £ 0 | 0 | 0.00 KM |
| Coach Yard | £ 0 | 0 | 0.00 KM |
| Five Step Alley | £ 0 | 0 | 0.00 KM |
Nearby Transport
| Name | NLC | TLC | Distance |
|---|---|---|---|
| Deal | 5011 | DEA | 0.62 KM |
| Walmer | 5041 | WAM | 3.40 KM |
| Sandwich | 5026 | SDW | 8.36 KM |
| Martin Mill | 5040 | MTM | 8.68 KM |
Nearby Listings
| Address | Price | Type | Score | Distance |
|---|---|---|---|---|
| Oak Street, Deal, Kent, CT14 6JG | £ 425,000 | BUY | 6 / 10 | 0.00 KM |
| Middle Street, Deal, CT14 | £ 295,000 | BUY | 5 / 10 | 0.01 KM |
| Oak Street, Deal, CT14 | £ 400,000 | BUY | 5 / 10 | 0.02 KM |
| The Woodyard, Oak Street, Deal, Kent, CT14 | £ 295,000 | BUY | 6 / 10 | 0.03 KM |
| Beach Street, Deal, Kent | £ 900,000 | BUY | Unknown | 0.03 KM |
Nearby Properties
| Address | Price | Distance |
|---|---|---|
| 5 Oak Street | £ 280,000 | 0.00 KM |
| 9 Oak Street | £ 260,000 | 0.00 KM |
| 11 Oak Street | £ 328,000 | 0.00 KM |
| 93 Beach Street | £ 430,000 | 0.03 KM |
| 101 Beach Street | £ 500,000 | 0.03 KM |