Oxford Way, Basingstoke, Hampshire, RG24
By Bridges Estate Agents
£ 235,000
Reviews
4 out of 5 stars
Bridges Estate Agents says ..
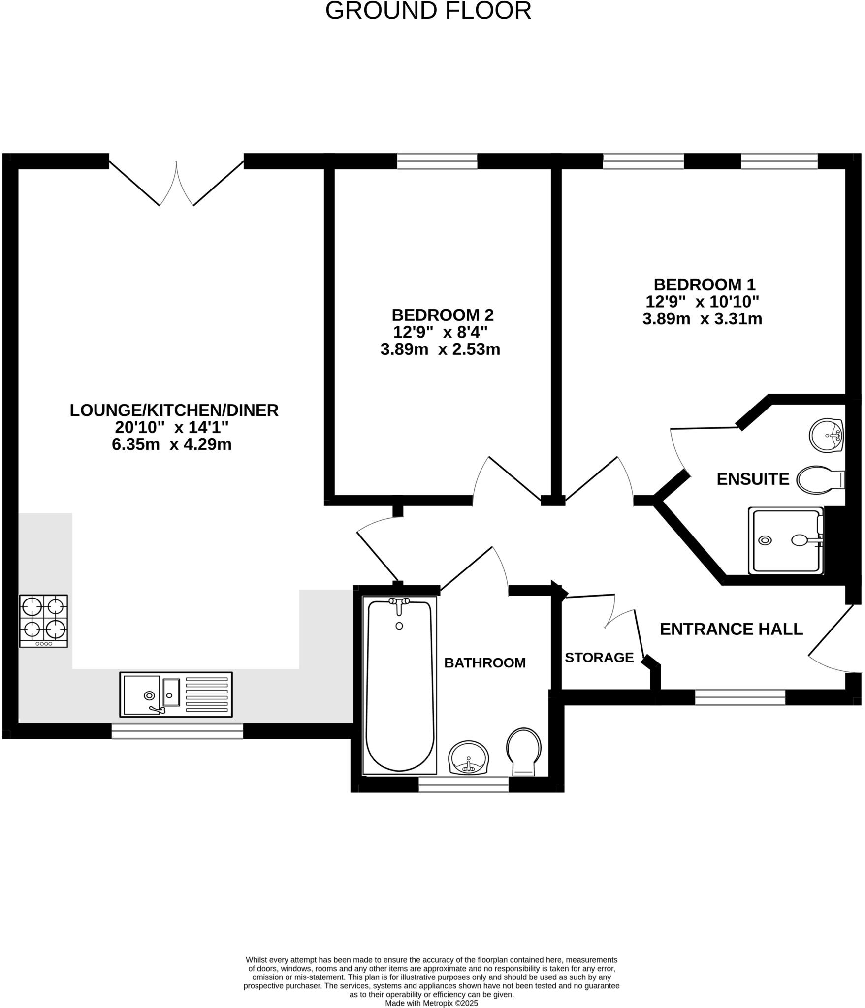
Bridges Estate Agents are pleased to present this ground floor apartment, meticulously maintained and in superb condition. Built just 5 years ago, it boasts an additional 5 year NHBC guarantee. The property features two generously sized double bedrooms - as well as a spacious open plan living/din...
Property Oracle says ..
The property is a modern 2-bedroom, 2-bathroom flat in a convenient location close to good schools and transport links. It appears to be in excellent condition and well-maintained, suggesting minimal need for renovation. The list price may represent good value compared to the average area price, though confirmation requires the property’s square footage. Nearby comparable properties are limited in the provided data.
Therefore, we give this property 8 / 10. *Disclaimer: This is our option and does constitute a recommendation or financial advice. Do your own research. *
- Price
- 8
- Condition
- 10
- Location
- 8
- Land
- 0
- Bedrooms
- 2
- Bathrooms
- 2
The heatmap indicates the level of crime in the area. The color of the heatmap indicates the crime severity and recency.
Metrics Year-on-Year
- Average area value
- 339,353.00 £Decreased by 35.35 %
- Average area rental value
- 1,419.00 £/moIncreased by 8.32 %
- Est rental Yield
- 5.02 %Increased by 67.89 %
- Crime Rate
- 16.00 %Unchanged by 0.00 %
Agent Activity
Bridges Estate Agents created the listing.
Nearby Schools
| Name | Type | Ofsted | Distance |
|---|---|---|---|
| Everest Community Academy | Academy Sponsor Led | Good | 0.19 KM |
| Merton Junior School | Community School | Good | 0.43 KM |
| Merton Infant School | Community School | Good | 0.53 KM |
| St Bede'S Catholic Primary School | Voluntary Aided School | Good | 0.87 KM |
| Oakridge Infant School | Community School | Good | 0.95 KM |
Images
Nearby Streets
| Name | Average Price | Average Sqft | Distance |
|---|---|---|---|
| Wallingford Road | £ 190,000 | 0 | 0.00 KM |
| Abbey Court | £ 0 | 0 | 0.00 KM |
| Aldermaston Road Roundabout | £ 0 | 0 | 0.00 KM |
| Foster Close | £ 425,000 | 0 | 0.00 KM |
| Austen Court | £ 0 | 0 | 0.00 KM |
Nearby Transport
| Name | NLC | TLC | Distance |
|---|---|---|---|
| Basingstoke | 5520 | BSK | 2.09 KM |
| Bramley (Hampshire) | 5500 | BMY | 6.56 KM |
Nearby Listings
| Address | Price | Type | Score | Distance |
|---|---|---|---|---|
| Oxford Way, Basingstoke, Hampshire, RG24 | £ 235,000 | BUY | 8 / 10 | 0.00 KM |
| Oxford Way, Basingstoke, Hampshire, RG24 | £ 205,000 | BUY | 5 / 10 | 0.01 KM |
| Wallingford Road, Basingstoke | £ 190,000 | BUY | 6 / 10 | 0.06 KM |
| Wallingford Road, Basingstoke | £ 225,000 | BUY | 6 / 10 | 0.06 KM |
| Don Allen Drive, Basingstoke, Hampshire, RG24 | £ 325,000 | BUY | 6 / 10 | 0.08 KM |
Nearby Properties
| Address | Price | Distance |
|---|---|---|
| 37 Buckfast Close | £ 270,000 | 0.25 KM |
| 28 Buckfast Close | £ 275,000 | 0.25 KM |
| 30 Buckfast Close | £ 210,000 | 0.25 KM |
| 22 Buckfast Close | £ 153,000 | 0.25 KM |
| 5 Buckfast Close | £ 127,500 | 0.25 KM |