Smart Move says ..
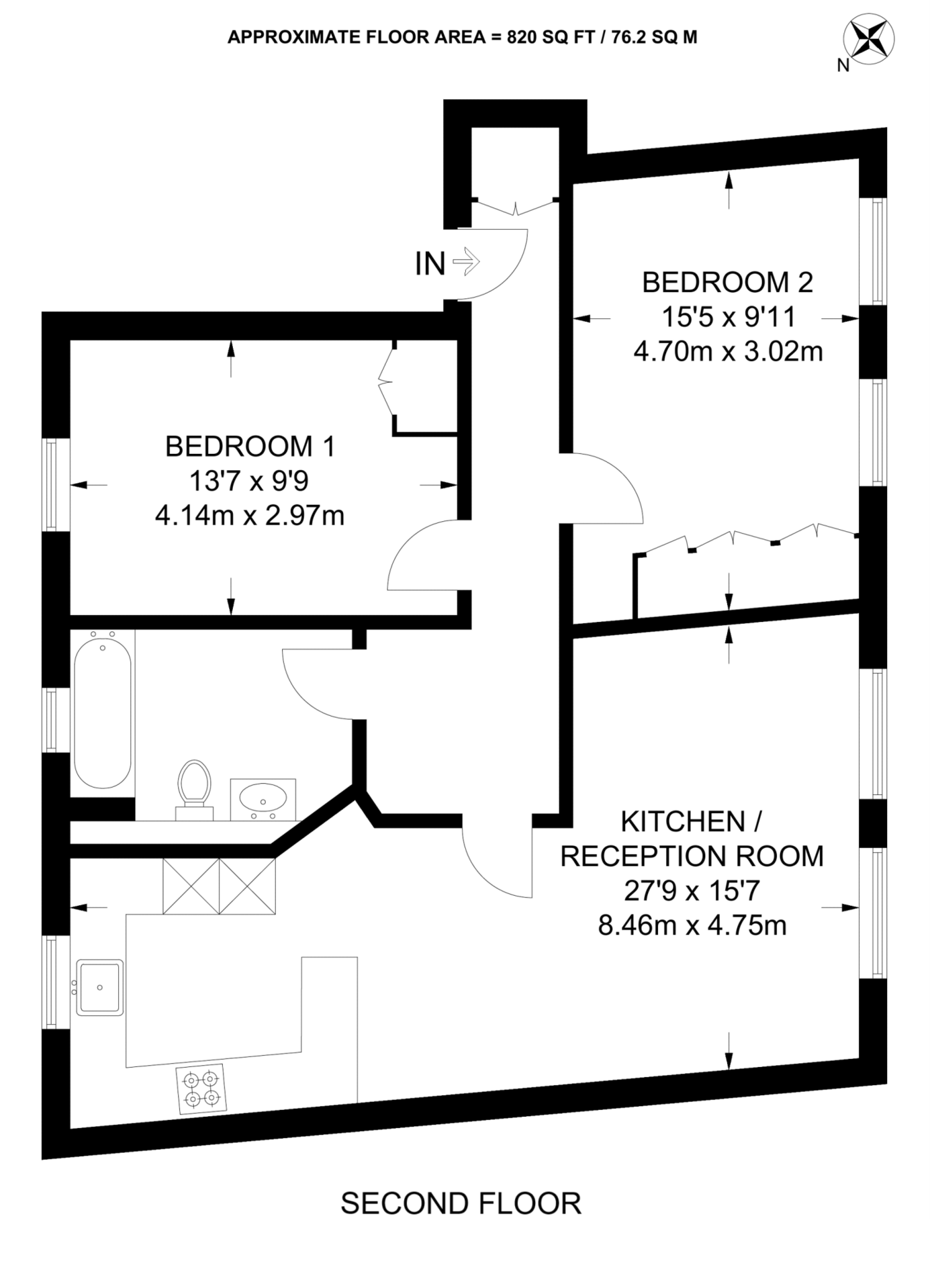
Situated in a highly sought-after location close to Angel Station, this impressive two bedroom apartment is presented in excellent condition and boasts ample living space with neutral décor throughout.
Property Oracle says ..
Therefore, we give this property 6 / 10. *Disclaimer: This is our option and does constitute a recommendation or financial advice. Do your own research. *
- Price
- 6
- Condition
- 8
- Location
- 8
- Land
- 3
- Bedrooms
- 2
- Bathrooms
- 1
- Sqft (est)
- 820.00
The heatmap indicates the level of crime in the area. The color of the heatmap indicates the crime severity and recency.
Metrics Year-on-Year
- Average area value
- 489,766.00 £Increased by 6.36 %
- Est sale value
- 568,260.00 £Increased by 54.34 %
- Average area rental value
- 2,264.00 £/moIncreased by 11.14 %
- Est letting value
- 2,460.00 £/moIncreased by 200.00 %
- Est rental Yield
- 5.55 %Increased by 4.52 %
- Crime Rate
- 4.00 %Unchanged by 0.00 %
from 460,462.00 £
from 368,180.00 £
from 2,037.00 £/mo
from 820.00 £/mo
from 5.31 %
from 4.00 %
Agent Activity
Smart Move created the listing.
Nearby Schools
| Name | Type | Ofsted | Distance |
|---|---|---|---|
| Moreland Children'S Centre | Children's Centre | 0.27 KM | |
| Hanover Primary School | Community School | Good | 0.29 KM |
| Moreland Primary School | Community School | Good | 0.31 KM |
| City University | Higher Education Institutions | 0.42 KM | |
| Nas Vanguard School | Free Schools Special | 0.53 KM |
Images
Nearby Streets
| Name | Average Price | Average Sqft | Distance |
|---|---|---|---|
| New Charles Street | £ 0 | 0 | 0.00 KM |
| Spencer Street | £ 0 | 0 | 0.00 KM |
| Earlstoke Street | £ 635,000 | 0 | 0.00 KM |
| Goswell Place | £ 0 | 0 | 0.00 KM |
| Saint Peter's Street | £ 0 | 0 | 0.00 KM |
Nearby Transport
| Name | NLC | TLC | Distance |
|---|---|---|---|
| Essex Road | 6004 | EXR | 1.17 KM |
| Farringdon | 577 | ZFD | 1.32 KM |
| Old Street | 6003 | OLD | 1.43 KM |
| Highbury And Islington | 6009 | HHY | 1.73 KM |
| Moorgate | 6005 | MOG | 1.88 KM |
Nearby Listings
| Address | Price | Type | Score | Distance |
|---|---|---|---|---|
| Oakley Crescent, London, EC1V | £ 650,000 | BUY | 6 / 10 | 0.00 KM |
| Oakley Crescent, City | £ 790,000 | BUY | 6 / 10 | 0.00 KM |
| Remington Street, Islington, N1 | £ 1,150,000 | BUY | Unknown | 0.04 KM |
| City Road, London, EC1V | £ 650,000 | BUY | 5 / 10 | 0.05 KM |
| Langdon Court, City Road, London, EC1V | £ 475,000 | BUY | 5 / 10 | 0.06 KM |
Nearby Properties
| Address | Price | Distance |
|---|---|---|
| 8 Oakley Crescent | £ 375,000 | 0.01 KM |
| 7 Oakley Crescent | £ 1,600,000 | 0.01 KM |
| 22 Nelson Place | £ 1,080,000 | 0.02 KM |
| 16 Nelson Place | £ 855,000 | 0.02 KM |
| 26 Remington Street | £ 625,000 | 0.04 KM |