Dryleaze Road, Bristol
Hunters logo

Dryleaze Road, Bristol

By Hunters

£ 465,000

Reviews

3 out of 5 stars

Hunters says ..

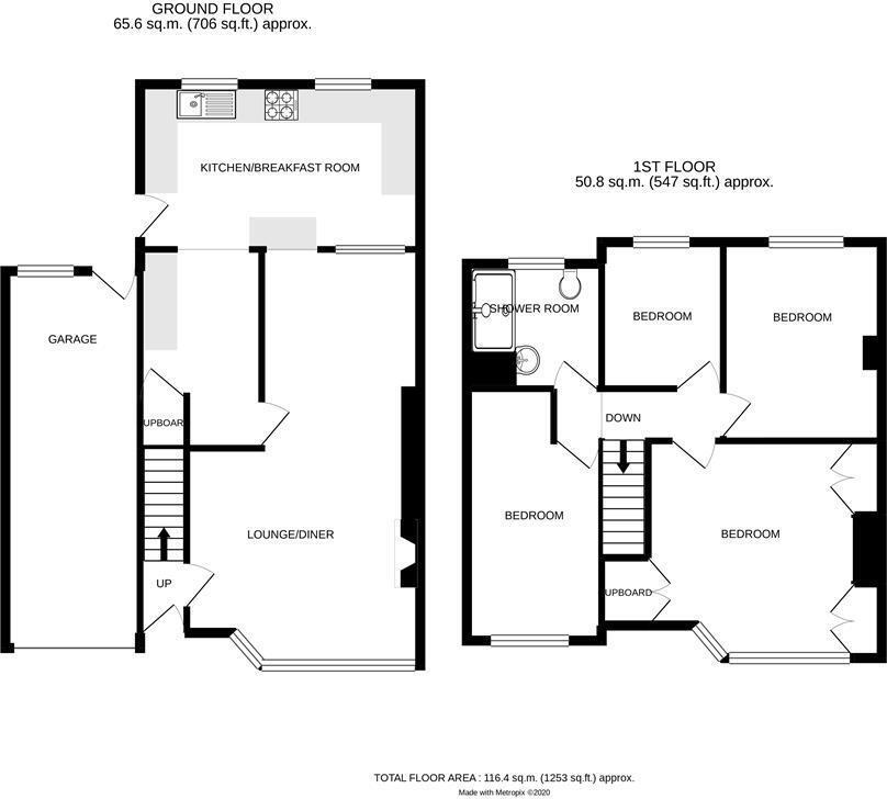
Hunters are very pleased to offer for sale, this spacious and well presented 4 bedroom semi detached extended property located in a desirable position on the Stapleton/Frenchay borders within walking distance to Begbrook primary school. This lovely home would ideally suit families and offer pract...

Property Oracle says ..

This property is a 4-bedroom semi-detached house located in Bristol, BS16 1HL. The property benefits from a good location with nearby schools, transportation links, and amenities. The house itself appears to be in good condition, with a recently updated kitchen and bathroom. There is also a good-sized garden. The list price of £465,000 seems reasonable considering the average price per square foot in the area and the property’s features.

Therefore, we give this property 7 / 10. *Disclaimer: This is our option and does constitute a recommendation or financial advice. Do your own research. *

Price
7
Condition
8
Location
8
Land
7
Bedrooms
4
Bathrooms
1
Sqft (est)
1,302.43
Lot (est)
1,252.92

The heatmap indicates the level of crime in the area. The color of the heatmap indicates the crime severity and recency.

Metrics Year-on-Year

Average area value
387,500.00 £
Increased by 9.48 %
from 353,957.00 £
Est sale value
536,601.16 £
Increased by 24.85 %
from 429,801.90 £
Average area rental value
1,149.00 £/mo
Decreased by 38.65 %
from 1,873.00 £/mo
Est letting value
1,302.43 £/mo
Unchanged by 0.00 %
from 1,302.43 £/mo
Est rental Yield
3.56 %
Decreased by 43.94 %
from 6.35 %
Crime Rate
2.00 %
Unchanged by 0.00 %
from 2.00 %

Agent Activity

  • Hunters created the listing.

Nearby Schools

NameTypeOfstedDistance
Begbrook Primary AcademyAcademy ConverterGood0.24 KM
Bristol Metropolitan AcademyAcademy Sponsor LedGood0.96 KM
Avanti Gardens SchoolFree Schools1.10 KM
Fishponds Church Of England AcademyAcademy Sponsor LedRequires improvement1.18 KM
St Matthias AcademyAcademy Alternative Provision Converter1.20 KM

Images

e20e04bc-IMG_6279.JPG 5be1a578-IMG_6303.JPG 27de41aa-IMG_6300.JPG 93e788e8-IMG_6297.JPG 089e1b8a-IMG_6286.JPG b4dc7d97-IMG_6301.JPG a52a4b4a-IMG_6302.JPG 33cd518d-IMG_6292.JPG 1f73642b-IMG_6290.JPG 60a0b335-IMG_6295.JPG 86a51f10-IMG_6294.JPG e0319390-IMG_6291.JPG 756f1220-IMG_6305.JPG 9962f2bb-IMG_6304.JPG cdd036e2-IMG_6307.JPG 1000043252.jpg edf9b5f2-IMG_6306.JPG 9f34aee3-IMG_6308.JPG 2c6abb4d-IMG_6282.JPG 9213b2cc-IMG_6283.JPG eeb6ddd4-IMG_6285.JPG 558b78ac-IMG_6289.JPG a11d8013-IMG_6287.JPG fcca2290-IMG_6284.JPG 2fa23229-rocessed-5B4D96CD-EC42-4C3A-BE50-598523BE

Nearby Streets

NameAverage PriceAverage SqftDistance
Clark Drive £ 000.00 KM
Stoke Lane £ 575,00000.00 KM
Kingfisher Drive £ 000.00 KM
Wren Drive £ 000.00 KM
Glen View £ 575,00000.00 KM

Nearby Transport

NameNLCTLCDistance
Bristol Parkway3230BPW2.79 KM
Filton Abbey Wood3235FIT3.24 KM
Stapleton Road3250SRD3.96 KM
Lawrence Hill3225LWH4.54 KM
Patchway3213PWY4.93 KM

Nearby Listings

AddressPriceTypeScoreDistance
Dryleaze Road, Bristol £ 465,000BUY7 / 100.00 KM
6 BED / 4 BATH HMO | FRENCHAY £ 475,000BUY7 / 100.06 KM
Dryleaze Road, Stapleton, Bristol £ 375,000BUY7 / 100.06 KM
Dryleaze Road, Bristol, BS16 £ 525,000BUY7 / 100.09 KM
Dryleaze Road, Stapleton, Bristol £ 500,000BUY7 / 100.13 KM

Nearby Properties

AddressPriceDistance
25 Dryleaze Road £ 72,9500.06 KM
13 Dryleaze Road £ 58,0000.06 KM
4 Ronald Road £ 260,0000.06 KM
2 Ronald Road £ 248,0000.06 KM
3 Ronald Road £ 95,0000.06 KM