Demesne Road, Wallington
By Cromwells Estate Agents
£ 600,000
Reviews
3 out of 5 stars
Cromwells Estate Agents says ..
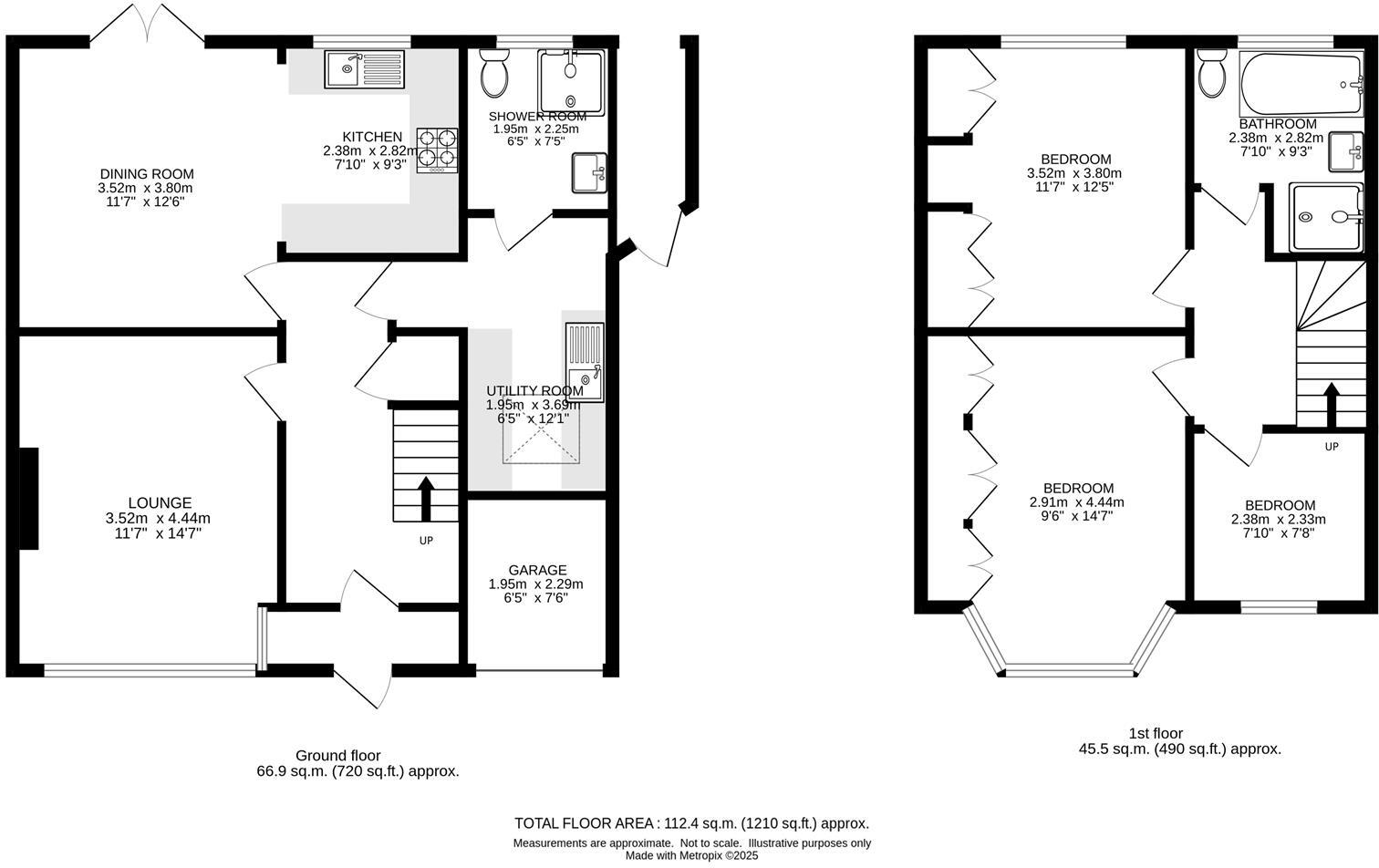
Cromwells Wallington are delighted to present this stunning three bedroom extended family home, which has been finished to a high specification and is perfect for those looking for something ready to move into! The property has a bright and airy interior and offers spacious room sizes, an open pl...
Property Oracle says ..
This is a semi-detached property on Demesne Road, Wallington, featuring three bedrooms and two bathrooms. The house appears to be in good condition, with a modern kitchen and bathrooms. It also benefits from a well-maintained garden and a garage. The property is situated in a convenient location, close to schools and transportation links. The asking price of £600,000 seems reasonable, although slightly above the average price per square foot for the area. Overall, this property would likely appeal to families and commuters seeking a comfortable and well-located home.
Therefore, we give this property 7 / 10. *Disclaimer: This is our option and does constitute a recommendation or financial advice. Do your own research. *
- Price
- 6
- Condition
- 8
- Location
- 7
- Land
- 7
- Bedrooms
- 3
- Bathrooms
- 2
- Sqft (est)
- 1,209.86
The heatmap indicates the level of crime in the area. The color of the heatmap indicates the crime severity and recency.
Metrics Year-on-Year
- Average area value
- 393,750.00 £Decreased by 16.75 %
- Est sale value
- 769,470.96 £Increased by 10.03 %
- Average area rental value
- 2,150.00 £/moIncreased by 26.03 %
- Est letting value
- 3,629.58 £/moIncreased by 50.00 %
- Est rental Yield
- 6.55 %Increased by 51.27 %
- Crime Rate
- 7.00 %Unchanged by 0.00 %
Agent Activity
Cromwells Estate Agents created the listing.
Nearby Schools
| Name | Type | Ofsted | Distance |
|---|---|---|---|
| Beddington Infants' School | Foundation School | Good | 0.53 KM |
| Sherwood Park School | Foundation Special School | Good | 0.56 KM |
| Carew Academy | Academy Special Sponsor Led | Outstanding | 0.58 KM |
| Holy Trinity Cofe Junior School | Voluntary Aided School | Good | 0.69 KM |
| Wallington County Grammar School | Academy Converter | Outstanding | 0.99 KM |
Images
Nearby Streets
| Name | Average Price | Average Sqft | Distance |
|---|---|---|---|
| Queen Elizabeth's Walk | £ 0 | 0 | 0.00 KM |
| Clifford Avenue | £ 0 | 0 | 0.00 KM |
| Paston Close | £ 0 | 0 | 0.00 KM |
| Robin Court | £ 0 | 0 | 0.00 KM |
| Sandy Lane North | £ 575,000 | 0 | 0.00 KM |
Nearby Transport
| Name | NLC | TLC | Distance |
|---|---|---|---|
| Wallington | 5394 | WLT | 1.36 KM |
| Hackbridge | 5364 | HCB | 1.92 KM |
| Waddon | 5392 | WDO | 2.56 KM |
| Carshalton | 5405 | CSH | 2.87 KM |
| Carshalton Beeches | 5406 | CSB | 3.41 KM |
Nearby Listings
| Address | Price | Type | Score | Distance |
|---|---|---|---|---|
| Demesne Road, Wallington | £ 600,000 | BUY | 7 / 10 | 0.00 KM |
| Demesne Road, Wallington, SM6 | £ 625,000 | BUY | 7 / 10 | 0.09 KM |
| Rectory Lane, Wallington | £ 390,000 | BUY | Unknown | 0.17 KM |
| Raleigh Avenue, Wallington, SM6 | £ 700,000 | BUY | 8 / 10 | 0.19 KM |
| Raleigh Avenue, Wallington, SM6 8HE | £ 700,000 | BUY | 8 / 10 | 0.19 KM |
Nearby Properties
| Address | Price | Distance |
|---|---|---|
| 133 Demesne Road | £ 230,000 | 0.05 KM |
| 87 Demesne Road | £ 317,000 | 0.05 KM |
| 135 Demesne Road | £ 320,000 | 0.05 KM |
| 111 Demesne Road | £ 500,000 | 0.05 KM |
| 81 Demesne Road | £ 452,500 | 0.05 KM |