Nursery Close, Hellesdon, Norwich, Norfolk, NR6
By Winkworth
£ 140,000
Reviews
3 out of 5 stars
Winkworth says ..
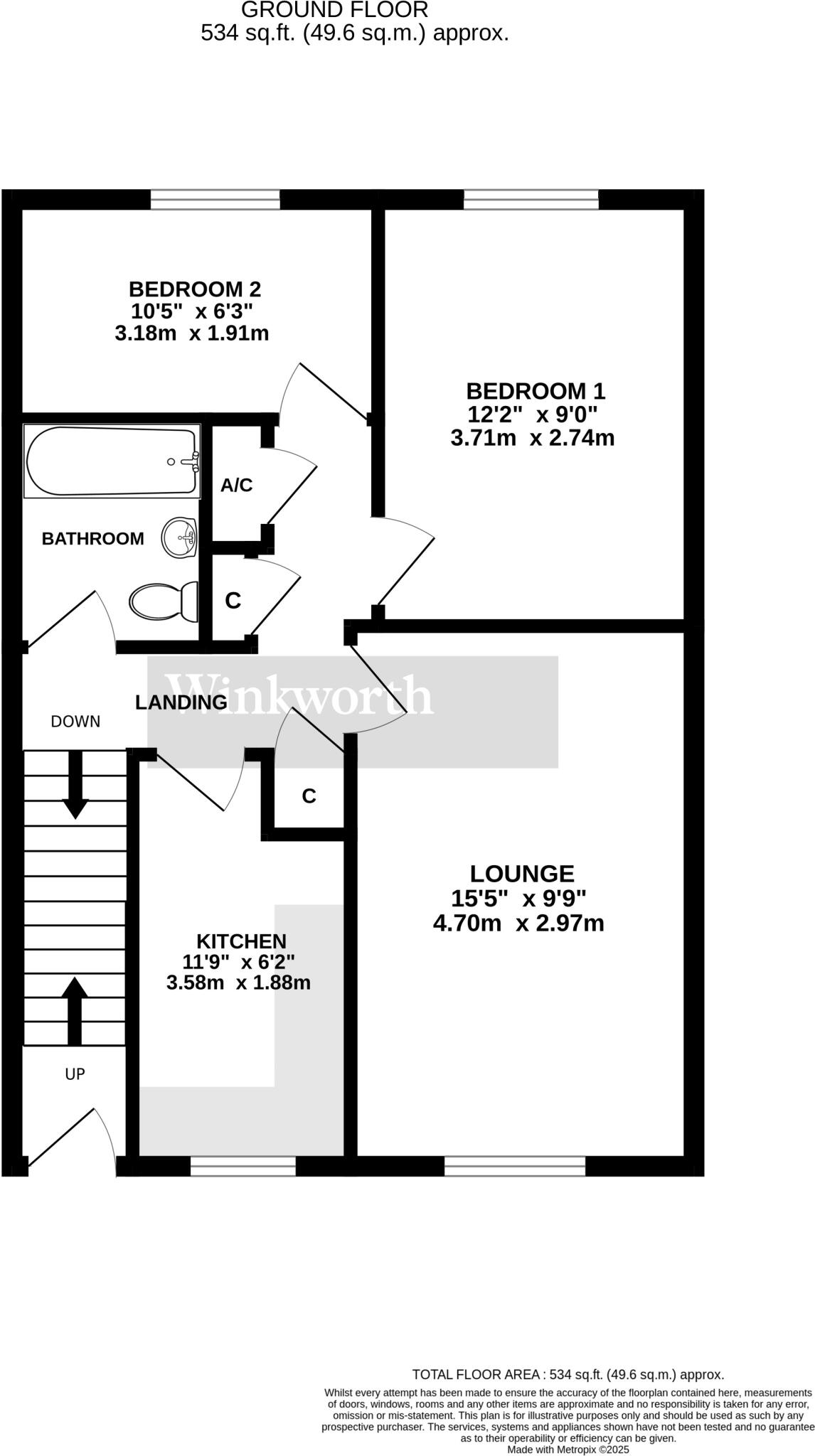
Located close to local schools and amenities is this well-positioned 2-bedroom first floor flat. This fantastic property is perfectly suited to any first-time buyer or investor and we are expecting immediate interest. The accommodation on offer consists of a private entrance hall with ...
Property Oracle says ..
This is a two-bedroom apartment in Hellesdon, Norwich. The property appears to be in good condition, with a modern kitchen and bathroom. The location is convenient, with schools and transportation options nearby. The asking price of £140,000 seems reasonable, especially when compared to the average price per square foot in the area. The property would be ideal for a small family or commuters.
Therefore, we give this property 6 / 10. *Disclaimer: This is our option and does constitute a recommendation or financial advice. Do your own research. *
- Price
- 8
- Condition
- 7
- Location
- 7
- Land
- 4
- Bedrooms
- 2
- Bathrooms
- 1
- Sqft (est)
- 550.25
The heatmap indicates the level of crime in the area. The color of the heatmap indicates the crime severity and recency.
Metrics Year-on-Year
- Average area value
- 417,969.00 £Increased by 36.61 %
- Est sale value
- 205,793.50 £Increased by 1.91 %
- Average area rental value
- 1,251.00 £/moIncreased by 48.05 %
- Est letting value
- 550.25 £/moUnchanged by 0.00 %
- Est rental Yield
- 3.59 %Increased by 8.46 %
- Crime Rate
- 7.00 %Unchanged by 0.00 %
Agent Activity
Winkworth created the listing.
Nearby Schools
| Name | Type | Ofsted | Distance |
|---|---|---|---|
| Hellesdon High School | Academy Converter | Good | 0.18 KM |
| Kinsale Infant School | Community School | Good | 0.34 KM |
| Kinsale Junior School | Academy Converter | 0.34 KM | |
| Arden Grove Infant And Nursery School | Academy Converter | Outstanding | 0.97 KM |
| Firside Junior School | Academy Converter | Good | 1.58 KM |
Images
Nearby Streets
| Name | Average Price | Average Sqft | Distance |
|---|---|---|---|
| Oak Tree Lane | £ 0 | 0 | 0.00 KM |
| Beech Close | £ 0 | 0 | 0.00 KM |
| Shrub Lane | £ 290,000 | 0 | 0.00 KM |
| Pleasant Close | £ 240,000 | 0 | 0.00 KM |
| Sycamore Court | £ 0 | 0 | 0.00 KM |
Nearby Transport
| Name | NLC | TLC | Distance |
|---|---|---|---|
| Norwich | 7309 | NRW | 6.78 KM |
Nearby Listings
| Address | Price | Type | Score | Distance |
|---|---|---|---|---|
| Nursery Close, Hellesdon, Norwich, Norfolk, NR6 | £ 140,000 | BUY | 6 / 10 | 0.00 KM |
| Nursery Close, Hellesdon, Norwich, Norfolk, NR6 | £ 140,000 | BUY | 5 / 10 | 0.01 KM |
| Nursery Close, Hellesdon, Norwich, NR6 5SL | £ 195,000 | BUY | Unknown | 0.03 KM |
| Nursery Close, Hellesdon, NR6 | £ 170,000 | BUY | 7 / 10 | 0.04 KM |
| Nursery Close, Norwich | £ 180,000 | BUY | 6 / 10 | 0.04 KM |
Nearby Properties
| Address | Price | Distance |
|---|---|---|
| 15 Nursery Close | £ 116,000 | 0.04 KM |
| 3 Nursery Close | £ 125,000 | 0.04 KM |
| 21 Nursery Close | £ 165,500 | 0.04 KM |
| 35 Nursery Close | £ 142,000 | 0.04 KM |
| 57 Nursery Close | £ 168,000 | 0.04 KM |