Sotheron Road
By Dey King and Haria Estate Agents
£ 390,000
Reviews
3 out of 5 stars
Dey King and Haria Estate Agents says ..
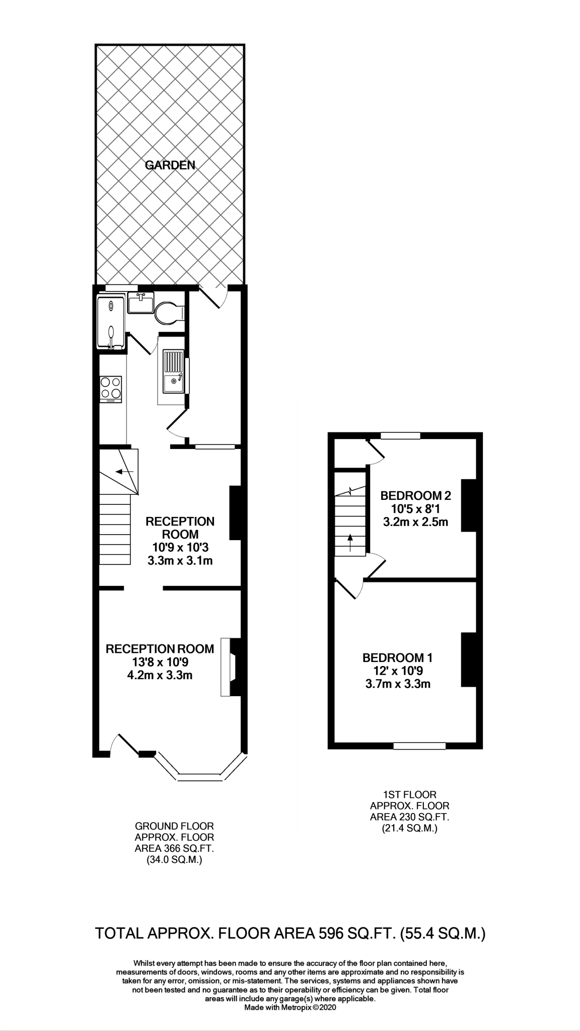
A tastefully presented two-bedroom Victorian mid-terrace house, situated in Central Watford, offered for sale with no onward chain.
Property Oracle says ..
This property is a 2 bedroom terraced house located in Watford, Hertfordshire. The property benefits from a modern interior and a small rear garden. The location is convenient, with Watford Junction train station within walking distance, providing excellent transport links to London and beyond. Several primary and secondary schools are also nearby. While the property itself is presented in good condition, the plot size is quite small. The list price of £390,000 is slightly higher than the average price for the area, but comparable to other similar properties on Cross Street and surrounding streets. However, the average price per square foot is lower than the area average which may reflect the smaller plot size.
Therefore, we give this property 6 / 10. *Disclaimer: This is our option and does constitute a recommendation or financial advice. Do your own research. *
- Price
- 7
- Condition
- 8
- Location
- 9
- Land
- 3
- Bedrooms
- 2
- Bathrooms
- 1
- Sqft (est)
- 614.73
The heatmap indicates the level of crime in the area. The color of the heatmap indicates the crime severity and recency.
Metrics Year-on-Year
- Average area value
- 487,124.00 £Increased by 94.35 %
- Est sale value
- 378,673.68 £Increased by 112.41 %
- Average area rental value
- 1,220.00 £/moIncreased by 6.46 %
- Est letting value
- 614.73 £/moUnchanged by 0.00 %
- Est rental Yield
- 3.01 %Decreased by 45.17 %
- Crime Rate
- 9.00 %Unchanged by 0.00 %
Agent Activity
Dey King and Haria Estate Agents created the listing.
Nearby Schools
| Name | Type | Ofsted | Distance |
|---|---|---|---|
| Watford St John'S Church Of England Primary School | Free Schools | Good | 0.16 KM |
| Central Primary School | Community School | Good | 0.51 KM |
| Watford Grammar School For Girls | Academy Converter | 0.78 KM | |
| Chater Junior School | Community School | Outstanding | 1.03 KM |
| The Watford Utc | University Technical College | Good | 1.06 KM |
Images
Nearby Streets
| Name | Average Price | Average Sqft | Distance |
|---|---|---|---|
| Cross Street | £ 360,000 | 0 | 0.00 KM |
| Sutton Road | £ 225,000 | 0 | 0.00 KM |
| Clarendon Road | £ 155,000 | 0 | 0.00 KM |
| Duke Street | £ 475,000 | 0 | 0.00 KM |
| Orphanage Road | £ 0 | 0 | 0.00 KM |
Nearby Transport
| Name | NLC | TLC | Distance |
|---|---|---|---|
| Watford Junction | 1402 | WFJ | 0.54 KM |
| Watford High Street | 1455 | WFH | 0.79 KM |
| Bushey | 1395 | BSH | 1.82 KM |
| Watford North | 1403 | WFN | 1.96 KM |
| Garston (Hertfordshire) | 1559 | GSN | 3.42 KM |
Nearby Listings
| Address | Price | Type | Score | Distance |
|---|---|---|---|---|
| Sotheron Road | £ 390,000 | BUY | 6 / 10 | 0.00 KM |
| Estcourt Road, Watford, Hertfordshire, WD17 | £ 525,000 | BUY | 6 / 10 | 0.07 KM |
| Estcourt Road, Watford, WD17 | £ 450,000 | BUY | 7 / 10 | 0.10 KM |
| Estcourt Road, Watford | £ 275,000 | BUY | 5 / 10 | 0.11 KM |
| Estcourt Road, Watford, WD17 | £ 250,000 | BUY | 7 / 10 | 0.11 KM |
Nearby Properties
| Address | Price | Distance |
|---|---|---|
| 1 Cross Street | £ 190,000 | 0.04 KM |
| 7 Cross Street | £ 362,000 | 0.04 KM |
| 23 Cross Street | £ 144,950 | 0.04 KM |
| 26 Cross Street | £ 119,950 | 0.04 KM |
| 13 Cross Street | £ 395,000 | 0.04 KM |