Howard Road, Walthamstow
The Stow Brothers logo

Howard Road, Walthamstow

By The Stow Brothers

£ 535,000

Reviews

3 out of 5 stars

The Stow Brothers says ..

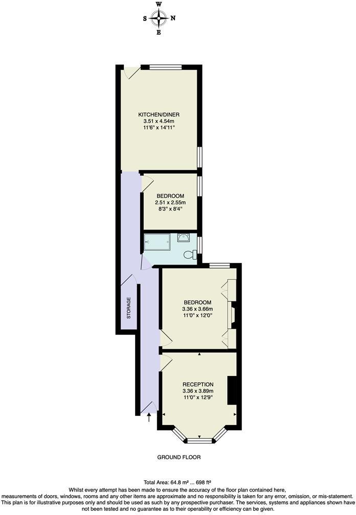
Set on the ground floor of a charming period property, this lovely two-bedroom apartment enjoys a prime location in one of the area’s most coveted neighbourhoods — just moments from Walthamstow Central, Poet’s Corner, Lloyd Park, and Walthamstow Village. Despite the vibrant surroundings, Howard R...

Property Oracle says ..

Therefore, we give this property 6 / 10. *Disclaimer: This is our option and does constitute a recommendation or financial advice. Do your own research. *

Price
5
Condition
8
Location
8
Land
6
Bedrooms
2
Bathrooms
1
Sqft (est)
513.16

The heatmap indicates the level of crime in the area. The color of the heatmap indicates the crime severity and recency.

Metrics Year-on-Year

Average area value
500,000.00 £
Decreased by 20.05 %
from 625,401.00 £
Est sale value
391,027.92 £
Increased by 0.53 %
from 388,975.28 £
Average area rental value
2,149.00 £/mo
Increased by 11.93 %
from 1,920.00 £/mo
Est letting value
1,539.48 £/mo
Increased by 50.00 %
from 1,026.32 £/mo
Est rental Yield
5.16 %
Increased by 40.22 %
from 3.68 %
Crime Rate
5.00 %
Unchanged by 0.00 %
from 5.00 %

Agent Activity

  • The Stow Brothers created the listing.

Nearby Schools

NameTypeOfstedDistance
Emmanuel Community SchoolFree SchoolsGood0.25 KM
The Lloyd Park Children CentreChildren's Centre0.37 KM
Walthamstow East Children CentreChildren's Centre0.38 KM
Walthamstow School For GirlsCommunity SchoolOutstanding0.40 KM
Church Hill Nursery SchoolLocal Authority Nursery SchoolOutstanding0.45 KM

Images

Reception-2.jpg Kitchen-1.jpg First-Bedroom-1.jpg Outside.jpg Bathroom.jpg Garden-2.jpg Reception-1.jpg Reception-3.jpg Reception-4.jpg Reception-5.jpg Kitchen-2.jpg Kitchen-5.jpg Kitchen-3.jpg Kitchen-4.jpg First-Bedroom-3.jpg First-Bedroom-2.jpg Second-Bedroom-1.jpg Second-Bedroom-2.jpg Garden-1.jpg Garden-3.jpg Garden-4.jpg Garden-5.jpg Hallway.jpg

Nearby Streets

NameAverage PriceAverage SqftDistance
Seaford Road £ 483,33300.00 KM
Howard Road £ 634,72200.00 KM
Rectory Road £ 1,225,00000.00 KM
Hawthorne Road £ 000.00 KM
Eastfield Road £ 788,75000.00 KM

Nearby Transport

NameNLCTLCDistance
Walthamstow Central6953WHC0.69 KM
Walthamstow Queen'S Road7407WMW1.11 KM
Wood Street6954WST1.54 KM
St James Street6973SJS2.00 KM
Leyton Midland Road7402LEM2.24 KM

Nearby Listings

AddressPriceTypeScoreDistance
Howard Road, Walthamstow £ 535,000BUY6 / 100.00 KM
Howard Road, Walthamstow, London, E17 £ 575,000BUY7 / 100.04 KM
Howard Road, Walthamstow, London, E17 £ 550,000BUY6 / 100.04 KM
Howard Road, Walthamstow, London, E17 £ 550,000BUYUnknown0.04 KM
Aubrey Road, Walthamstow £ 750,000BUY8 / 100.04 KM

Nearby Properties

AddressPriceDistance
133 Howard Road £ 505,0000.06 KM
79 Howard Road £ 385,0000.06 KM
117 Howard Road £ 536,2400.06 KM
105 Howard Road £ 410,0000.06 KM
151b Howard Road £ 205,0000.06 KM