33 (Flat 7) Eyre Place, , New Town
By Murray & Currie
£ 425,000
Reviews
3 out of 5 stars
Murray & Currie says ..
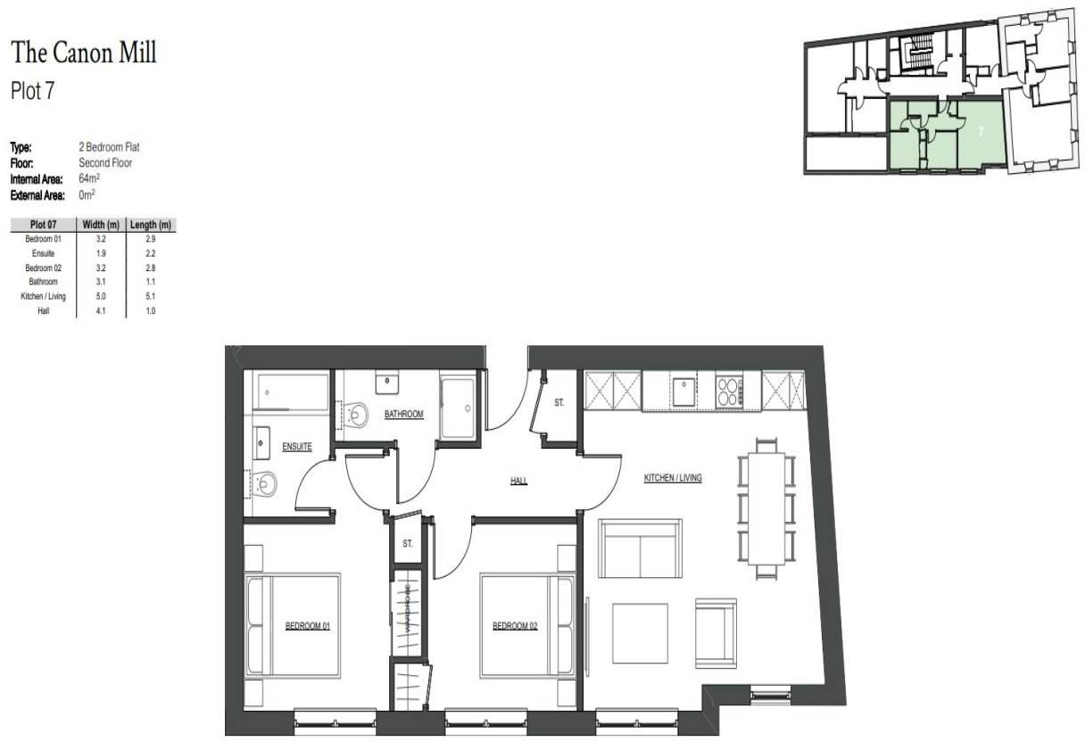
Situated on the second floor, 33 (Flat 7) Eyre Place is a lovely and well-proportioned two double bedroom apartment.
Property Oracle says ..
This two-bedroom, two-bathroom flat at 33 (Flat 7) Eyre Place in Edinburgh’s New Town presents a modern and stylish living space. The property boasts a contemporary design with high-quality finishes throughout. The images show a bright, open-plan living area with access to a small balcony, a well-equipped kitchen, and modern bathrooms. The location in the New Town is a significant advantage, offering proximity to Edinburgh’s city center and its various amenities. The lack of detailed information on the size of the plot and the absence of a substantial garden are noteworthy considerations. While the list price seems reasonable given the location and condition, a more comprehensive comparison with similar properties in the area would be beneficial for a more precise evaluation. The lack of detailed information regarding nearby schools and shops makes a complete assessment of the location difficult. However, the reputation of the New Town area suggests a good location score. Overall, the property presents a well-maintained and modern living space in a prime Edinburgh location.
Therefore, we give this property 6 / 10. *Disclaimer: This is our option and does constitute a recommendation or financial advice. Do your own research. *
- Price
- 7
- Condition
- 9
- Location
- 8
- Land
- 2
- Bedrooms
- 2
- Bathrooms
- 2
- Sqft (est)
- 688.89
The heatmap indicates the level of crime in the area. The color of the heatmap indicates the crime severity and recency.
Metrics Year-on-Year
- Average area value
- 375,000.00 £Decreased by 14.92 %
- Est sale value
- 376,822.83 £Increased by 42.08 %
- Average area rental value
- 1,564.00 £/moDecreased by 5.95 %
- Est letting value
- 1,377.78 £/moIncreased by 100.00 %
- Est rental Yield
- 5.00 %Increased by 10.38 %
- Crime Rate
- 0.00 %
Agent Activity
Murray & Currie created the listing.
Nearby Schools
| Name | Type | Ofsted | Distance |
|---|---|---|---|
| Merchiston Castle School | Offshore Schools | 8.27 KM |
Images
Nearby Streets
| Name | Average Price | Average Sqft | Distance |
|---|---|---|---|
| Canon Lane | £ 0 | 0 | 0.00 KM |
| Eyre Place Lane | £ 0 | 0 | 0.00 KM |
| Huntly Street | £ 0 | 0 | 0.00 KM |
| Rodney Street Tunnel | £ 0 | 0 | 0.00 KM |
| Logie Green Loan | £ 0 | 0 | 0.00 KM |
Nearby Transport
| Name | NLC | TLC | Distance |
|---|---|---|---|
| Edinburgh | 9328 | EDB | 1.48 KM |
| Haymarket | 9419 | HYM | 2.87 KM |
| Slateford | 9236 | SLA | 6.36 KM |
| Kingsknowe | 9217 | KGE | 8.81 KM |
Nearby Listings
| Address | Price | Type | Score | Distance |
|---|---|---|---|---|
| 33 (Flat 7) Eyre Place, , New Town | £ 425,000 | BUY | 6 / 10 | 0.00 KM |
| 33 (Flat 3) Eyre Place, , New Town | £ 595,000 | BUY | 6 / 10 | 0.00 KM |
| 33 (Flat 4) Eyre Place, , New Town | £ 425,000 | BUY | 7 / 10 | 0.00 KM |
| 33 (Flat 5) Eyre Place, , New Town | £ 495,000 | BUY | 7 / 10 | 0.00 KM |
| 33 (Flat 2) Eyre Place, , New Town | £ 495,000 | BUY | 7 / 10 | 0.00 KM |