London Road, Ashford
By S J Smith Estate Agents
£ 325,000
Reviews
3 out of 5 stars
S J Smith Estate Agents says ..
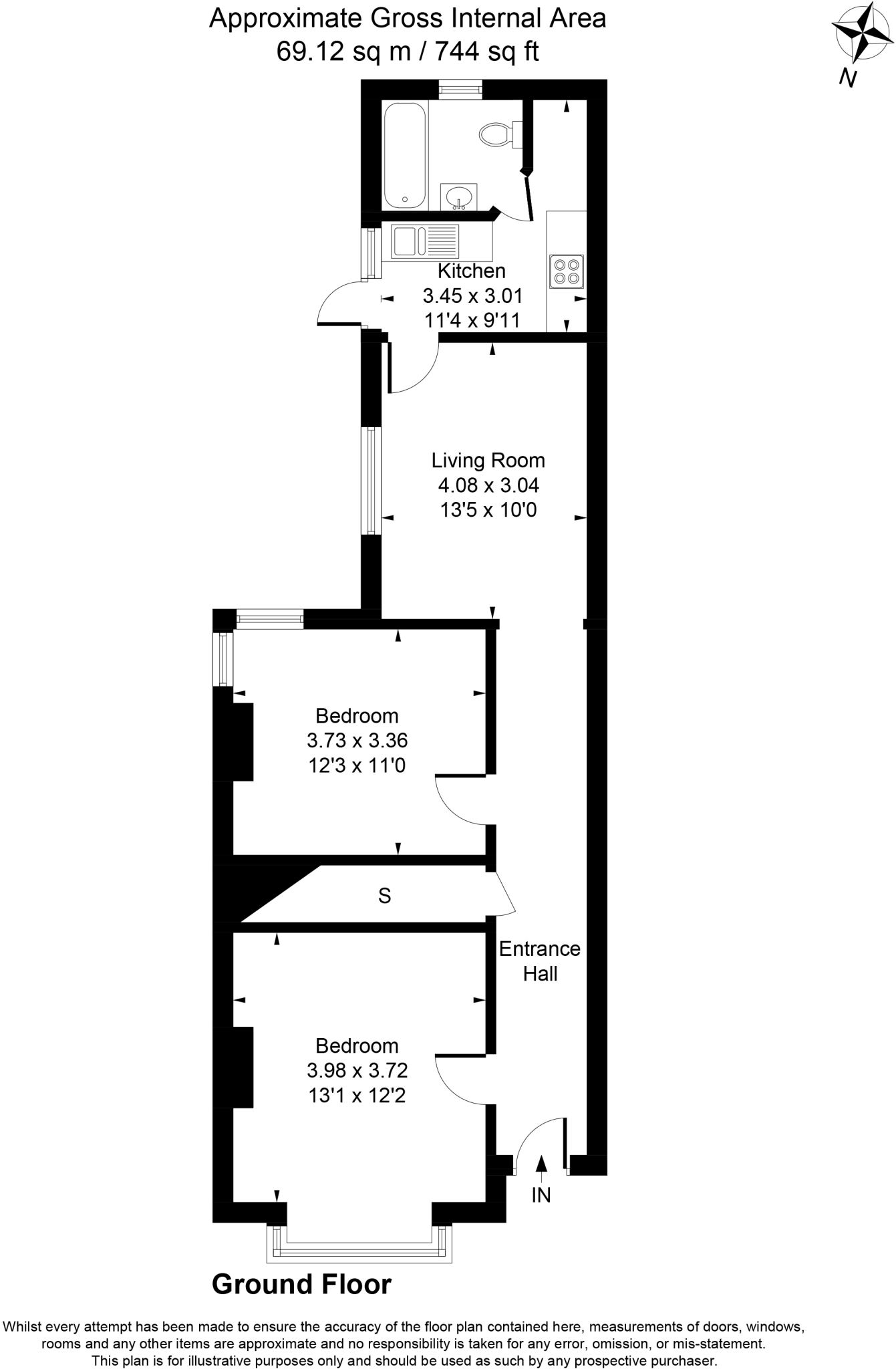
VIDEO TOUR AVAILABLE! Contact us for more information. Offered with no onward chain is this very well presented two-bedroom ground floor maisonette that has been renovated over recent years and allows easy access to both Ashford and Staines town centres as well as the M25. The property has it...
Property Oracle says ..
Therefore, we give this property 7 / 10. *Disclaimer: This is our option and does constitute a recommendation or financial advice. Do your own research. *
- Price
- 7
- Condition
- 7
- Location
- 8
- Land
- 6
- Bedrooms
- 2
- Bathrooms
- 1
- Sqft (est)
- 529.69
- Lot (est)
- 744.00
The heatmap indicates the level of crime in the area. The color of the heatmap indicates the crime severity and recency.
Metrics Year-on-Year
- Average area value
- 459,000.00 £Increased by 3.89 %
- Est sale value
- 237,301.12 £Decreased by 7.25 %
- Average area rental value
- 1,736.00 £/moDecreased by 7.31 %
- Est letting value
- 529.69 £/moDecreased by 50.00 %
- Est rental Yield
- 4.54 %Decreased by 10.81 %
- Crime Rate
- 8.00 %Unchanged by 0.00 %
from 441,794.00 £
from 255,840.27 £
from 1,873.00 £/mo
from 1,059.38 £/mo
from 5.09 %
from 8.00 %
Agent Activity
S J Smith Estate Agents created the listing.
Nearby Schools
| Name | Type | Ofsted | Distance |
|---|---|---|---|
| Thomas Knyvett College | Academy Converter | Good | 0.60 KM |
| Ashford Park Primary School | Community School | Good | 0.60 KM |
| Fordway Centre | Academy Alternative Provision Converter | 0.70 KM | |
| St James Senior Boys' School | Other Independent School | 0.99 KM | |
| Stanwell Sure Start Children'S Centre | Children's Centre | 1.20 KM |
Images
Nearby Streets
| Name | Average Price | Average Sqft | Distance |
|---|---|---|---|
| A30 | £ 0 | 0 | 0.00 KM |
| Portland Road | £ 568,333 | 0 | 0.00 KM |
| Connaught Avenue | £ 325,000 | 0 | 0.00 KM |
| Hanover Close | £ 0 | 0 | 0.00 KM |
| Vernon Close | £ 0 | 0 | 0.00 KM |
Nearby Transport
| Name | NLC | TLC | Distance |
|---|---|---|---|
| Ashford (Surrey) | 5667 | AFS | 1.11 KM |
| Staines | 5670 | SNS | 3.13 KM |
| Heathrow Terminal 5 | 9846 | HWV | 3.50 KM |
| Heathrow Terminal 4 | 7091 | HAF | 3.89 KM |
| Heathrow Terminals 2 And 3 (Rail Station Only) | 7090 | HXX | 4.10 KM |
Nearby Listings
| Address | Price | Type | Score | Distance |
|---|---|---|---|---|
| London Road, Ashford | £ 325,000 | BUY | 7 / 10 | 0.00 KM |
| Kenilworth Road, Ashford, TW15 | £ 600,000 | BUY | 7 / 10 | 0.06 KM |
| Kenilworth Road, Ashford, Surrey, TW15 | £ 600,000 | BUY | Unknown | 0.06 KM |
| Kenilworth Road, Ashford, TW15 | £ 550,000 | BUY | 7 / 10 | 0.12 KM |
| Ashcombe Close, Ashford | £ 525,000 | BUY | 7 / 10 | 0.13 KM |
Nearby Properties
| Address | Price | Distance |
|---|---|---|
| 514 London Road | £ 265,000 | 0.00 KM |
| 500 London Road | £ 250,000 | 0.00 KM |
| 512 London Road | £ 300,000 | 0.00 KM |
| 526 London Road | £ 370,000 | 0.00 KM |
| 512a London Road | £ 264,500 | 0.00 KM |