Lulworth Drive, Hindley Green, Wigan, WN2 4QS
JO

Lulworth Drive, Hindley Green, Wigan, WN2 4QS

By Jones Potts Taylor

£ 230,000

Reviews

3 out of 5 stars

Jones Potts Taylor says ..

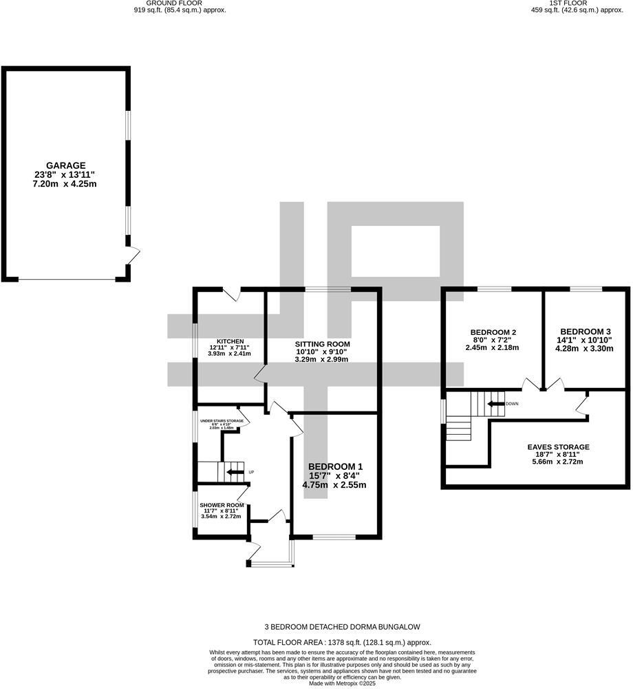
JonesPottsTaylor are delighted to present FOR SALE this three-bedroom semi-detached dormer bungalow. Situated in a popular residential location in Hindley, close to transport and network links, schools, shops and amenities. The property briefly comprises of; entrance porch, hallway, sitting room,...

Property Oracle says ..

Therefore, we give this property 7 / 10. *Disclaimer: This is our option and does constitute a recommendation or financial advice. Do your own research. *

Price
8
Condition
6
Location
7
Land
7
Bedrooms
3
Bathrooms
1
Sqft (est)
1,378.00

The heatmap indicates the level of crime in the area. The color of the heatmap indicates the crime severity and recency.

Metrics Year-on-Year

Average area value
180,000.00 £
Decreased by 19.86 %
from 224,620.00 £
Est sale value
378,950.00 £
Increased by 38.19 %
from 274,222.00 £
Average area rental value
795.00 £/mo
Decreased by 29.83 %
from 1,133.00 £/mo
Est letting value
1,378.00 £/mo
Unchanged by 0.00 %
from 1,378.00 £/mo
Est rental Yield
5.30 %
Decreased by 12.40 %
from 6.05 %
Crime Rate
0.00 %
from 0.00 %

Agent Activity

  • Jones Potts Taylor created the listing.

Nearby Schools

NameTypeOfstedDistance
Oakfield High School And CollegeCommunity Special SchoolOutstanding0.36 KM
St John'S Church Of England Primary School, Hindley GreenAcademy ConverterGood0.83 KM
Sacred Heart Catholic Primary School, Hindley GreenVoluntary Aided SchoolGood0.92 KM
Hindley Sure Start Children'S CentreChildren's Centre Linked Site0.92 KM
Hindley Nursery SchoolLocal Authority Nursery SchoolOutstanding0.93 KM

Images

LulworthDrive-60.JPG LulworthDrive-32.JPG LulworthDrive-44.JPG LulworthDrive-47.JPG LulworthDrive-38.JPG LulworthDrive-33.JPG LulworthDrive-36.JPG LulworthDrive-45.JPG LulworthDrive-39.JPG LulworthDrive-42.JPG LulworthDrive-56.JPG LulworthDrive-28.JPG LulworthDrive-31.JPG LulworthDrive-19.JPG LulworthDrive-20.JPG LulworthDrive-22.JPG LulworthDrive-26.JPG LulworthDrive-24.JPG LulworthDrive-25.JPG LulworthDrive-17.JPG LulworthDrive-14.JPG LulworthDrive-2.JPG LulworthDrive-4 - Copy.JPG LulworthDrive-6.JPG LulworthDrive-9.JPG LulworthDrive-7.JPG LulworthDrive-10 - Copy.JPG LulworthDrive-46.JPG LulworthDrive-49.JPG LulworthDrive-50.JPG LulworthDrive-51.JPG LulworthDrive-53.JPG LulworthDrive-63.JPG LulworthDrive-64.JPG LulworthDrive-62.JPG LulworthDrive-58.JPG Lulworth FP.jpg

Nearby Streets

NameAverage PriceAverage SqftDistance
Long Lane £ 000.00 KM
Ashfield Avenue £ 140,00000.00 KM
Ashdale Road £ 190,00000.00 KM
Cedar Avenue £ 000.00 KM
Castleway £ 000.00 KM

Nearby Transport

NameNLCTLCDistance
Hindley2398HIN2.68 KM
Daisy Hill2777DSY4.52 KM
Westhoughton2619WHG4.59 KM
Horwich Parkway8720HWI5.74 KM
Ince (Manchester)2236INC6.31 KM

Nearby Listings

AddressPriceTypeScoreDistance
Lulworth Drive, Hindley Green, Wigan, WN2 4QS £ 230,000BUY7 / 100.00 KM
Lulworth Drive, Hindley Green, Wigan £ 265,000BUY7 / 100.03 KM
Tintagel Road, Hindley Green, Wigan £ 240,000BUY6 / 100.12 KM
Tavistock Road, Hindley Green, WN2 £ 180,000BUY5 / 100.12 KM
Ludlow Avenue, Hindley Green, WN2 £ 210,000BUY7 / 100.12 KM

Nearby Properties

AddressPriceDistance
48 Long Lane £ 110,0000.07 KM
52 Long Lane £ 108,0000.07 KM
59 Long Lane £ 70,0000.07 KM
44 Long Lane £ 86,0000.07 KM
Birch Farm £ 59,9500.07 KM