KN
Coates Crescent, Edinburgh, EH3
By Knight Frank
£ 1,750,000
Reviews
3 out of 5 stars
Knight Frank says ..
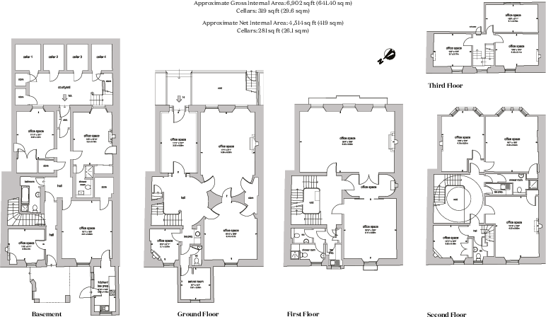
A substantial Georgian townhouse opportunity with potential to convert from an existing office to a residential property. This townhouse provides an exceptional opportunity for change of use/redevelopment potential subject to planning. • Elegant and substantial Georgian townhouse with tradition...
Property Oracle says ..
Therefore, we give this property 6 / 10. *Disclaimer: This is our option and does constitute a recommendation or financial advice. Do your own research. *
- Price
- 8
- Condition
- 6
- Location
- 9
- Land
- 3
- Bedrooms
- 0
- Bathrooms
- 0
- Sqft (est)
- 6,902.00
The heatmap indicates the level of crime in the area. The color of the heatmap indicates the crime severity and recency.
Metrics Year-on-Year
- Average area value
- 322,952.00 £Decreased by 27.89 %
- Est sale value
- 2,374,288.00 £Decreased by 6.52 %
- Average area rental value
- 1,604.00 £/moDecreased by 7.50 %
- Est letting value
- 6,902.00 £/moUnchanged by 0.00 %
- Est rental Yield
- 5.96 %Increased by 28.17 %
- Crime Rate
- 0.00 %
from 447,880.00 £
from 2,539,936.00 £
from 1,734.00 £/mo
from 6,902.00 £/mo
from 4.65 %
from 0.00 %
Agent Activity
Knight Frank created the listing.
Nearby Schools
| Name | Type | Ofsted | Distance |
|---|---|---|---|
| Merchiston Castle School | Offshore Schools | 6.05 KM | |
| Cargilfield School | Offshore Schools | 9.91 KM |
Images
Nearby Streets
| Name | Average Price | Average Sqft | Distance |
|---|---|---|---|
| William Street North East Lane | £ 0 | 0 | 0.00 KM |
| Torphichen Place Lane | £ 0 | 0 | 0.00 KM |
| Lynedoch Place Lane | £ 0 | 0 | 0.00 KM |
| Palmerston Place Lane | £ 0 | 0 | 0.00 KM |
| Rutland Court | £ 0 | 0 | 0.00 KM |
Nearby Transport
| Name | NLC | TLC | Distance |
|---|---|---|---|
| Haymarket | 9419 | HYM | 0.67 KM |
| Edinburgh | 9328 | EDB | 2.78 KM |
| Slateford | 9236 | SLA | 4.15 KM |
| Kingsknowe | 9217 | KGE | 6.62 KM |
| Wester Hailes | 9231 | WTA | 8.75 KM |
Nearby Listings
| Address | Price | Type | Score | Distance |
|---|---|---|---|---|
| Coates Crescent, Edinburgh, EH3 | £ 1,750,000 | BUY | 6 / 10 | 0.00 KM |
| Walker Street, Edinburgh | £ 475,000 | BUY | 6 / 10 | 0.03 KM |
| 3F/17 Coates Crescent, West End, EH3 7AF | £ 400,000 | BUY | Unknown | 0.04 KM |
| 18B Coates Crescent, West End, Edinburgh, EH3 7AF | £ 440,000 | BUY | 7 / 10 | 0.05 KM |
| Walker Street, Edinburgh | £ 490,000 | BUY | Unknown | 0.08 KM |